Курсовой проект по дисциплине светотехника
Курсовая работа
- формат cdw, docx
- размер 165.25 КБ
- добавлен 03 октября 2011 г.
Вариант 1
ФГОУ ВПО РГАТУ
Светотехническая часть
Расчет освещенности методом коэффициента использования
Расчет освещенности точечным методом
Электротехническая часть
Графическая часть
Похожие разделы
- Академическая и специальная литература
- Дизайн
- Дизайн архитектурной среды
Световой дизайн (светодизайн)
- Академическая и специальная литература
- Промышленное и гражданское строительство
- Архитектурно-строительная физика
- Архитектурная и строительная светотехника
- Академическая и специальная литература
- Топливно-энергетический комплекс
- Периодика по ТЭК
- Residential Lighting
- Стандарты
- Межгосударственные стандарты (МС)
- МС (ГОСТ) Топливно-энергетический комплекс
- МС (ГОСТ) Светотехника и источники света
- Стандарты
- Стандарты России
- ГОСТ Р МЭК
- ГОСТ Р МЭК Светотехника и источники света
Смотрите также
- формат pdf
размер 546.
45 КБ- добавлен 21 июля 2008 г.
Тамбовский государственный технический университет (ТГТУ), 2003. – 32 с. Методические указания содержат пояснения и пример выполнения основных разделов курсовой работы по дисциплинам Светотехника и электротехнология, Электроснабжение. Предназначены для студентов 4, 5 курсов дневного и заочного отделений специальностей 311400, 100400,101600 и могут быть полезны студентам дипломникам других технических специальностей.
Контрольная работа
- формат txt
- размер 105.86 КБ
- добавлен 20 октября 2010 г.
Светотехника – Способы освещения и виды освещения. Материал для Колледжа механизации сельского хозяйства, пятого курса заочного отделения.
По теме Светотехника и Электротехнология.rn
Курсовая работа
- формат doc
- размер 410 КБ
- добавлен 04 января 2010 г.
Курсовой проект 53 стр. Вступ Теоретична частина Принцип роботи Особливості конструкції Характеристика матеріалів Технологічна частина Технологія виготовлення основних деталей Технологія складання Контроль якості в процесі виробництва Контроль та випробування готового виробу Заходи безпеки під час виробництва Нормування витрат Нормування трудових витрат Нормування матеріальних витрат Розробка технологічної документації Висновки Література Додатки…
Статья
- формат exe
- размер 1.
91 МБ - добавлен 30 декабря 2009 г.
Издательство: Объединение “Друзья” Год издания: 2009 Страниц: 32 Язык: русский Формат: EXE Конспект лекций по предмету “Электропривод и светотехника ПСХТ 4-1 2009” составлен на основе лекций по предмету “Электропривод и светотехника” Псковского сельскохозяйственного техникума за 2008/2009 учебный год. В конспекте рассмотрены такие темы, как: – Лучи видимого света – Источники лучей видимого света – Устройство и работа люминесцентной лампы – Схем…
- формат djvu
- размер 912.88 КБ
- добавлен 08 декабря 2008 г.
М.:: Энергоатомиздат, 1990г. — 112 с. Библиотека светотехника. Выпуск 20. Содержит в форме таблиц, иллюстраций и текстовых пояснений грамотные рекомендации по проектированию электрического освещения автогаражей, вентиляционных установок, ремонтных цехов, электропомещений, складов, котельных и т.
- формат pdf
- размер 587.7 КБ
- добавлен 14 апреля 2011 г.
Тамбов: Изд-во Тамб. гос. техн. ун-та, 2005. 32 с. Даны сведения, необходимые для изучения теоретического материала и выполнения лабораторных работ по дисциплине «Светотехника и электротехнология», «Электротехнологические промышленные установки». Предназначены для студентов 4, 5 курсов специальностей 311400, 100400, 101600 всех форм обучения.
- формат doc
- размер 159 КБ
- добавлен 02 апреля 2009 г.
Х. И. РИХТЕР Trilux-Lenze GmbH + Co KG, Germany* D-59759 Arnsberg, Germany Перевод с немецкого Л.
П. Варфоломеева, технический консультант Компании «Точка опоры» Публикуется по материалам из журнала «Светотехника»
- формат djvu
- размер 2.02 МБ
- добавлен 25 мая 2009 г.
М.: Энергоатомиздат, 1985. — 88 с, ил. — (Библиотекака светотехника; Вып. 15) Рассмотрено местное освещение и определена его роль в улучшении качества и повышении экономичности промышленных осветительных установок. Сформулирован комплекс требований, предъявляемых как к осветительным установкам, так и к светильникам местного освещения. Приведены примеры рекомендуемых решений осветительных установок для рабочих мест в промышленности
- формат djvu
- размер 2.72 МБ
- добавлен 12 января 2012 г.
Библиотека светотехника.
Выпуск 24. М.: Энергоатомиздат, 1992 – 128 с., ил. ISBN 5-283-00829- 0. Рассмотрены роль люменесцентных ламп в балансе световой энергии, генерируемой электрическими источниками света, принципы их действия, способ производства и его влияние на параметры ламп, классификация ламп, области применения, особенности эксплуатации и утилизации выходящих из строя ламп. Для инженеров и техников-светотехников, электротехников и энер…
Практикум
- формат pdf
- размер 374.16 КБ
- добавлен 19 августа 2011 г.
Томск: Изд. ТПУ, 2007. – 14 с. Методические указания для выполнения курсовых работ по дисциплине «Проектирование осветительных установок». Методические указания подготовлены на кафедре «Лазерная и световая техника» ТПУ и предназначены для студентов по направлению 200200 «Оптотехника», специальностей 200203 «Оптико-электронные приборы и системы» 210102 «Светотехника и источники света».![]()
Проектирование электрического освещения производственного помещения
Краткое сожержание материала:
Размещено на
Размещено на
КУРСОВАЯ РАБОТА
Тема:
Проектирование электрического освещения производственного помещения
СОДЕРЖАНИЕ:
ВВЕДЕНИЕ
ГЛАВА 1. СВЕТОТЕХНИЧЕСКАЯ ЧАСТЬ
1.1 Характеристика помещения
1.2 Расчет освещения помещения КРОСС
1.2.1 Методом удельной мощности
1.2.2 Методом коэффициента использования светового потока
1.
2.3 Точеным методом
1.3 Расчет освещения
1.4 сводная электротехническая ведомость
ГЛАВА 2. ЭЛЕКТРОТЕХНИЧЕСКАЯ ЧАСТЬ
2.1 Расчет электропроводки и защитной аппаратуры
2.2 Выбор автоматических выключателей и вводной аппаратуры
Заключение
Приложение
Список литературы
ВВЕДЕНИЕ
Светотехника — область науки и техники, предметом которой являются исследование принципов и разработка способов генерирования, пространственного перераспределения и измерения характеристик оптического излучения, а также преобразование его энергии в другие виды энергии и использование в различных целях.
Современное человеческое общество немыслимо без повсеместного использования света. Осветительные установки создают необходимые условия освещения, которые обеспечивают зрительное восприятие, дающее около 90% информации, получаемой человеком от окружающею его мира.
Свет создает нормальные условия для работы и учебы, улучшает наш быт.
Эффективное использование света с помощью достижений современной светотехники — важнейший резерв повышения производительности труда и качества продукции, снижения травматизма и сохранения здоровья людей.
Усталость органов зрения зависит от степени напряженности процессов, сопровождающих зрительное восприятие.
Основная задача освещения в производственных помещениях состоит в обеспечении оптимальных условий для видения. Эта задача решается выбором наиболее рациональной системы освещения и источников света.
ГЛАВА 1. СВЕТОТЕХНИЧЕСКАЯ ЧАСТЬ
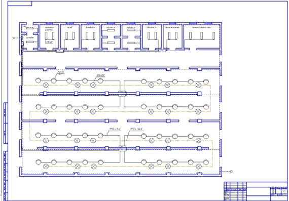
1.1 Характеристика помещения
В помещении находится телефонная станция
Общая площадь производственного объекта составляет 120 мІ. Высота потолка – 3 м.
Коэффициенты отражения составляют: pn = 50%, pст =50%, pp.n. =30%
Помещение разделено на 4 комнаты и коридор:
1 – аппаратный зал: S = 34 мІ (Енорм = 200 лк)
2 – КРОСС: S = 60 мІ (Енорм = 300 лк)
3 – кабинет инженера (работа с ЭВМ): S = 15 мІ ( Енорм = 200 лк)
4 – служебная комната: S = 2,4 мІ ( Енорм = 30 лк)
Освещенность указана в соответствии со СНиП 23-05-95.
Размещено на
Размещено на
10
Рис. 1. Общий план производственного помещения.
1.2 Расчет освещения помещения КРОСС
1.2.1 Методом удельной мощности
Размещено на
Размещено на
Размещено на
Размещено на
Рис. 2. План установки светильников в помещении КРОСС
1. Выбираем 6 светильников типа АPS/R 4x36W встроенные в подвесной потолок и располагаем их как показано на рис. 2.
2. Определяем расчетную высоту:
hрас = H – hp.n.- hcв =3,0 – 0,8 – 0 = 2,2 м., где:
Н – высота помещения,
hp.n – высота подъема рабочей поверхности,
hcв – длина свисания светильника.
3. По таблице (Прил. 1) находим значение удельной мощности:
при Енорм = 300 лк, h = 2,2 м, S = 60 мІ.
Руд = 15 Вт/мІ.
4. Определяем расчетную мощность одной лампы:
;
где n – количество ламп.
5. По каталогу выбираем лампу, так чтобы выполнялось условие:
0,9·Рл ? Рл.н. ? 1,2·Рл. Выбираем – PHILIPS TLґD Standard 36 W.
0,9·37,5 ? 36 ? 1,2·37,5; 33,75 ? 36 ? 45 – условие выполняется.
6. Полная установленная мощность ламп Р = n· Рл.н. = 24·36 = 864 Вт.
1.2.2. Методом коэффициента использования светового потока 1. Определяем расчетную высоту:
hрас = H – hp.n.- hcв =3,0-0,8-0 = 2,2 м.,
где: Н – высота помещения,
hp.n – высота подъема рабочей поверхности,
hcв – длина свисания светильника.
2. Определяем индекс помещения:
3. По таблице находим коэффициент использования для светильника APS/R 4х36W.
При pn = 50%, pст =50%, pp.
n. =30%, i =1,7
U = 0,59
4. Определяем число ламп PHILIPS TLґD Standard 36W, необходимое для обеспечения нормированной освещенности Енорм = 300 лк.
Световой поток лампы находим по таблице: Фл = 2850 лм.
Коэффициент запаса принимаем равным 1,5.
Коэффициент неравномерности распределения освещения равен 1,15
Фактическая освещенность:
Так как в одном светильнике установлено 4 лампы, то принимаем 20 ламп.
= 300 = 324 лк
= = 1,08, что допустимо (СНиП 23-05-95).
1.2.3 Точеным методом
Размещено на
Размещено на
10
1,5 А
Рис. 3
1. Выбираем 6 светильников типа АPS/R 4x36W встроенные в подвесной потолок и располагаем их как показано на рис. 3.
2. Выбираем точку А освещенность которой требуется установить.
Освещенность в т. А от линейных светящихся элементов расположенных параллельно расчетной плоскости:
ЕА = , где
Ia — среднее значение силы света с единицы длины светящей части светильника в направлении под углом б к плоскости расположения светильника;
г — угол, под которым видна светящая линия из точки расчета;
hр — высота расположения светящей линии над освещаемой поверхностью.
Ia =, где
Фл — суммарный световой поток ламп в светильнике;
l — длина линии.
Ia = =963,5 (Кд) – один светильник.
ЕА1 ==655(Лк) – освещенность первого ряда.
ЕА2 = 531(Лк) – освещенность второго ряда.
Ер = ,
Где Кз – коэффициент запаса,
м – отраженная составляющая.
Ер = = 316(Лм)
3. Рассчитываем отклонение фактической освещенности от номинальной:
, что допустимо (СНиП 23-05-95).
1.3 Расчет освещения остальных помещений
Аппаратный зал методом удельной мощности, так как он рекомендуется для предварительного определения осветительной нагрузки на начальной стадии проектирования.
Размещено на
Размещено на
7
Рис. 4. аппаратный зал: S = 34 мІ (Енорм = 200 лк)
1. Предварительно выбираем 3 светильника типа АPS/R 4x36W встроенные в подвесной потолок и располагаем их как показано на рис. 4.
2. Определяем расчетную высоту:
hрас = H – hp.n.- hcв =3,0 – 0,8 – 0 = 2,2 м., где:
Н – высота помещения,
hp.n – высота подъема рабочей поверхности,
hcв – длина свисания светильника.
3. По таблице (Прил. 1) находим значение удельной мощности:
при Енорм = 200 лк, h = 2,2 м, S = 34 мІ.
Руд = 12 Вт/мІ.
4. Определяем расчетную мощность одной лампы:
;
где n – количество ламп.
5. По каталогу выбираем лампу, так чтобы выполнялось условие:
0,9·Рл ? Рл.н. ? 1,2·Рл. Выбираем – PHILIPS TLґD Standard 36 W.
0,9·34 ? 36 ? 1,2·34; 30,6 ? 36 ? 40,8 – условие выполняется.
6. Полная установленная мощность ламп Р = n· Рл.н. = 12·36 = 432 Вт.
Кабинет инженера методом коэффициента использования светового потока.
Размещено на
Размещено на
3
Рис. 5. Кабинет инженера (работа с ЭВМ): S = 15 мІ ( Енорм = 200 лк)
1. Определяем расчетную высоту:
hрас = H – hp.n.- hcв =3,0-0,8-0 = 2,2 м., где:
Н – высота помещения,
hp.n – высота подъема рабочей поверхности,
hcв – длина свисания светильника.
2. Определяем индекс помещения:
3. По таблице находим коэффициент использования для светильника APS/R
При pn = 50%, pст =50%, pp.n. =30%, i =0,84
U = 0,45
4. Определяем число ламп PHILIPS TLґD Standard 36W, необходимое для обеспечения нормированной освещенности Енорм = 200 лк.
Световой поток лампы находим по таблице: Фл = 2850 лм.
Готовые работы по предмету “Светотехника”. Страница 1
Компактные светотехнические устройства для физиотерапии
Предложено и реализовано автором: а) конструкция компактного светотерацевтического аппарата капсуль-ного типа для локального лечения с помощью потока лучистой энергии, которая состоит в том, что токопроводящие сенсорные электроды для включения и выключения аппарата выполнены в виде тонкостенных деталей с наружной поверхностью тел вращения, механически соединенных между собой с помощью…
Диссертация
Подробнее.
..
Исследование характеристик светодиодных источников света при питании импульсным током
Первые коммерческие светодиоды (СД) красного цвета на основе GaAsP/GaAs были изготовлены в 1968 г. и имели световую отдачу 0,2 лм/Вт. Данные светодиоды применялись в маломощных сигнальных устройствах. В 1970 г., была представлена система на основе GaP с удвоенной световой отдачей (0,4 лм/Вт). Через 15 лет было достигнута величина 4 лм/Вт, и в начале 90-х AlInGaP и AlInGaAs сплавы стали основанием…
Диссертация
Подробнее…
Исследование энергоэффективности наружных осветительных установок при проектировании с применением лазерного сканирования
Практическая ценность результатов работы: разработанные в ходе диссертационных исследований методики расчета светильников, светового поля, светового загрязнения могут найти широкое применение в проектировании наружных ОУ и в решении задач экологического и энергетического мониторингалазерное сканирование ускоряет проектирование и делает его точнеерезультаты исследований используются в учебном…
Диссертация
Подробнее.
..
Метод расчета вероятности обнаружения наблюдателем объектов на случайных фонах
Показано, что для проведения расчета вероятности обнаружения объектов на реальных фонах достаточно определить только две характеристики модели 03: пороговое отношение правдоподобия и функциональную зависимость чувствительности сетчатки от яркости адаптации и расстояния от центра фовеа. Сопоставление результатов расчета и эксперимента указывает на постоянство величины порогового отношения…
Диссертация
Подробнее…
Реалистическое моделирование изображений освещения трехмерных сцен на экране ЭВМ
В данной работе рассматривается последняя задача компьютерная графика. Требования к качеству изображения драматично развивались за неполные тридцать лет компьютерной графики: первые исследователи были счастливы представить хоть что-то как изображение, в то время как сейчас усилия направлены на реалистический синтез изображения.
Трудно сразу дать точное определение реалистического изображения…
Диссертация
Подробнее…
Расчетно-экспериментальные исследования условий повышения световой отдачи ртутного разряда высокого давления
Несмотря на высокую световую отдачу ламп типа ДНаТ, ДРИ, объёмы их производства и потребления в РФ и за рубежом до настоящего времени уступают ДРЛ, в основном из-за своих недостатков, которые состоят: в более высокой, чем ДРЛ трудоёмкости изготовления и ценыв более сложной схеме зажигания, предусматривающей применение импульсного зажигающего устройства (ИЗУ) дополнительно к ПРАв большей, чем…
Диссертация
Подробнее…
Сравнительное исследование бытовых осветительных установок
Результаты диссертационной работы использовались ОАО «Лисма-ВНИИИС» при уточнении номенклатуры выпуска КЛЭ с учетом запросов потребителей, Республиканским центром энергосбережения при разработке целевой республиканской программы по энергосбережению на 2006 — 2010 гг.
, а также могут быть полезными при нормировании ОУ в помещениях квартир. Проведена психофизиологическая оценка СЦС, создаваемой КЛЭ…
Диссертация
Подробнее…
Повышение эффективности светодиодных модулей, программно-аппаратные средства контроля и оценки светотехнических характеристик
Степень разработанности проблемы. Значительный вклад в разработку и исследование проблемы внесли отечественные и зарубежные учёные: Ю. Б. Айзенберг, В. В. Трембач, П. М. Тиходеев, JI.C. Ловинский, С. Г. Ашурков, А. Э. Юнович, М. Гладштейн, Б. М. Каган, JI.B. Абрамова, Ю. А. Цюпак, В. Н. Баранов, A.B. Евстифеев, М. С. Голубцов, М. Предко, П. Ан, Р. Хайнц, К. Вахтман, И. Оно, Г. Заутер, С. С…
Диссертация
Подробнее…
Разработка, исследование и применение математической модели осветительных устройств со щелевыми световодами
Одним из важнейших преимуществ применения ЩС является возможность выноса источников света, а с ними и всей электротехнической части осветительной установки /ОУ/ за пределы освещаемого помещения, что делает ЩС высоко эффективными, а в ряде случаев и единственно возможными, например, при освещении помещений с некоторыми взрывоопасными средами.
Помимо этого осветительные установки со ЩС обладают…
Диссертация
Подробнее…
Разработка способа и создание устройств безбалластного питания люминесцентных ламп
В настоящее время для стабилизации разряда ГЛ широко используются электромагнитные ПРА, а для зажигания ЛЛ — газоразрядные стартеры. При работе с ними достаточно хорошо изучены как рабочий режим, так и механизм пробоя и зажигания ламп, что позволило приблизить их параметры к теоретически возможным. Однако большие количества электротехнической стали и обмоточного провода, расходуемые…
Диссертация
Подробнее…
Введение в дизайн освещения ~ Электрические ноу-хау
Курс Light-1: Введение в световой дизайн
Описание курса:
Этот курс предназначен для подготовки целевых лиц, способных понимать и распознавать различные источники освещения, светильники и лампы с определением основ терминологии светодизайна.
Целевые лица:
Инженеры-конструкторы, новые дипломированные инженеры, студенты бакалавриата, полевые инженеры, инженеры по техническому обслуживанию и техники.
Развитие навыков:
По завершении этого курса обучаемый сможет:
- Распознавание источников освещения, светильников и ламп
- Понимание основ проектирования дневного освещения.
Краткое содержание курса:
1- Что такое свет?
2- Каковы основные источники света?
2.1 – Источник естественного света (дневной свет или солнечный свет):
A- Эффекты использования источника дневного освещения в электрическом проекте.
B- Какое значение имеет дневное освещение при проектировании электрического освещения?
C- Каковы основные характеристики источника дневного света?
C.1 Коэффициент дневного света.
D- Какие бывают технологии дневного освещения?
D.1 Активное дневное освещение.
D.2 Пассивное дневное освещение.
E- Каковы общие методы использования технологии пассивного дневного освещения в здании?
E.1 Окна.
E.2 Световой люк.
E.3 Световые полки.
E.4 Трубчатые устройства дневного освещения (TDD).
E.5 Умное стекло.
F- Проблемы, связанные с использованием источника дневного света.
2.2- Искусственное освещение.
Первое: Искусственные источники света:
A- Лампа накаливания.
B- Компактная люминесцентная лампа.
C- Люминесцентная лампа.
D- Газоразрядные лампы:
- Газоразрядные лампы низкого давления.

- Газоразрядные лампы высокого давления.
- Газоразрядные лампы высокой интенсивности.
E- Светоизлучающий диод (LED).
Во-вторых: Формы искусственного освещения:
A- Внутреннее освещение:
A.1 Типы внутренних светильников/светильников.
A.2 Типы светильников в зависимости от функции освещения:
- Ambient (общее освещение).
- Задание.
- Акцент.
- Информационное/Направляющее освещение.
- Декоративное освещение.
А.3 Классификация светильников по типу лампы.
A.4 Как мы можем выбрать правильный тип лампы для определенного применения:
A.5 Классификация светильников по способу установки:
a- Отдельно стоящие или переносные
b- Стационарные:
- Утопленный свет.

- Накладной светильник.
- Подвесной светильник.
- Бра.
- Трековый светильник.
- Светильник под шкафом.
- Аварийное освещение или выход.
- Вертикальное и нижнее освещение.
- Световые ленты или промышленное освещение.
- Софит.
А.6 Типы светильников в зависимости от процентной доли светового потока выше и ниже горизонтали:
- Прямое освещение.
- Полупрямое освещение.
- Общее рассеянное освещение.
- Полунепрямое освещение.
- Непрямое освещение.
A.7 классификация осветительных приборов по типу здания/пространства.
B- Наружное освещение:
B.1 Классификация светильников/светильников для наружного освещения:
1- Типы светильников в зависимости от расположения источника света и функции:
- Прожектор.

- Спортивное освещение.
- Улица и проезжая часть.
- Путь.
- Автостоянка и гараж.
- Безопасность.
- Пейзаж.
- Вывеска.
2- Типы светильников для наружного освещения в зависимости от типа лампы.
3- Введение в процесс проектирования освещения.
3.A- Первый шаг в проектировании системы освещения зданий.
3.B- Факторы, которыми можно управлять при проектировании системы освещения:
- Направление.
- Цвет:
- Коррелированная цветовая температура (CCT).
- Индекс цветопередачи (CRI).
- Количество (освещенность).
Следующим курсом светодизайна будет « Курс «Светотехника-2: Продвинутый курс светодизайна — уровень I ».
Новое сообщение Старый пост Главная
Подписаться на: Оставить комментарий (Atom)
Курсы освещения | СИБСЕ
Назад к образованию
Несмотря на то, что сейчас у студентов, желающих изучать освещение, есть больше возможностей, путь к тому, чтобы стать профессионалом в области освещения, не всегда очевиден.
Чтобы попытаться информировать людей о доступном образовании по освещению и отслеживать типы доступных курсов по освещению, Комитет Общества по образованию и членству составил следующий список курсов по освещению, включая некоторые курсы, которые содержат материалы или модули по освещению.
Этот список не является исчерпывающим, и если вы хотите дополнить его или у вас есть актуальная информация, касающаяся одного из перечисленных курсов, сообщите нам об этом по адресу [email protected]
Дистанционное обучение
| Название курса | Квалификация | Провайдер | Продолжительность | Ссылка |
| LET Диплом по светодизайну | Диплом | Доверительное управление освещением | 2 года – дистанционное обучение | Узнать больше |
| Программное обеспечение DIALux 4 для освещения — базовый/средний/продвинутый DIALux Evo базовый/средний/продвинутый Введение в освещение Проектирование внутреннего освещения — сертификат продвинутого уровня Проектирование внешнего освещения — сертификат продвинутого уровня Стандарты Relux Foundation / Intermediate / Advanced IEC/EN 60598-2-22 Требования безопасности к аварийным светильникам Законодательство в области освещения, контроль соответствия и производственные испытания Основы освещения Сертификат LIA Standard Luminaire 8-6015 BS 9 ОбъяснениеИсточники света и светильники Проектирование освещения Аварийное освещение: понимание законодательства, проектирование, оценка рисков и важность компетентности | Сертификат/CPD | Ассоциация светотехнической промышленности (LIA) | Зависит от курса | См. полный список онлайн-курсов и информацию о бронировании |
| Дизайн внутреннего освещения (краткий онлайн-курс) | Сертификат | UAL: Колледж искусств Челси | 6 недель | См. план курса |
| Дизайн освещения | Академия дизайна | необходимо выполнить в течение 8 недель | Подробнее | |
| Освещение рабочего места | Сертификат | Академия освещения | 1 день | Узнать больше |
| Освещение для музеев и галерей | Сертификат | Академия освещения | 1 день | Узнать больше |
| Анализ и контроль рассеянного света Введение в лидар для автономных транспортных средств Введение в оптические системы дистанционного зондирования | Сертификат отдела непрерывного образования (CEU) | ШПАЙ. для оптики и фотоники | Посмотреть полный список курсов и узнать больше |
В Великобритании и Ирландии
| HNC/HND по дизайну и технологии освещения | Высший национальный сертификат/Высший национальный диплом
| ЛИА | HNC — 1-2 года HND — 2 года
| Узнайте больше См. |
| Диплом по внешнему освещению | Диплом | Институт профессионалов в области освещения (ILP) | 3 модуля по 5 дней | Подробнее |
| Инструментарий управления активами: второстепенные конструкции (ATOMS) | ИЛП | Посмотреть полный список курсов | ||
| Базовый курс освещения | ИЛП | |||
| Базовый курс по электрическому освещению | ИЛП | |||
| Практическое уличное освещение | ИЛП | |||
| Электрические ноу-хау для дизайнеров архитектурного освещения | ИЛП | |||
| Международный сертификат уличного освещения | ИЛП | |||
| Британский стандарт освещения — BS5489 Обучение | ИЛП | |||
| Освещение жилых помещений | Сертификат | UAL: Колледж искусств Челси | 4 дня | Подробнее |
| Инженерные службы зданий | Магистр | Университет Брунеля | 1 год | Подробнее о курсе |
| Освещение для архитектуры | BA (с отличием) | Колледж Роуз Бруфорд | 3 года | Подробнее о курсе |
| Дизайн освещения – театральное освещение | BA (с отличием) | Колледж Роуз Бруфорд | 3 года | Подробнее о курсе |
| Дизайн и технология освещения | Бакалавр наук (с отличием) | Университет Южного Уэльса | 3 года | Подробнее о курсе |
| Дизайн | МА | УВЕ Бристоль | 18 месяцев | Подробнее о курсе |
| Дизайн освещения | BA (с отличием) Театральная практика | Королевская центральная школа речи и драмы – Лондонский университет | 3 года | Подробнее о курсе |
| Живой звук и световые технологии | Бакалавр наук (с отличием) | Университет Хартфордшира | 3 года (полный рабочий день) | Подробнее о курсе |
| Звук, свет и технологии живых мероприятий | Бакалавр наук (с отличием) | Университет Дерби | 3 года (полный рабочий день) | Подробнее о курсе |
| Архитектура и дизайн интерьера | BA (с отличием) | Бирмингемский городской университет | 3 года | Подробнее о курсе |
| Управление сценой | Бакалавриат (с отличием) | Бирмингемский городской университет | 3 года | Подробнее о курсе |
| Визуальные эффекты | Бакалавр наук (с отличием) | Бирмингемский городской университет | 3 года | Подробнее о курсе |
| Дизайн продуктов и мебели | Бакалавриат (с отличием) | Бирмингемский городской университет | 3 года | Подробнее о курсе |
| Дизайн и визуализация | МА | Бирмингемский городской университет | 1 год | Подробнее о курсе |
| Театральное искусство — освещение | FDA/BA (с отличием) | Маунтвью (подтверждено Университетом Восточной Англии) | 3 года | Подробнее о курсе |
| Архитектурный дизайн и технологии | BA (с отличием) | Солфордский университет | 3 года | Подробнее о курсе |
| Дизайн интерьера с фондом Год | BA (с отличием) | Солфордский университет | 4 года | Подробнее о курсе |
| Свет и освещение | Магистр | Университетский колледж Лондона (UCL) | 1 год (полная занятость) | Подробнее о курсе |
| Дизайн освещения | МА | Эдинбургский университет Нейпир | 1 год | Подробнее о курсе |
| Архитектурная инженерия: экологический дизайн | Магистр | Университет Бата | 1 год | Подробнее см.![]() |
| Инженерные службы зданий | BEng (с отличием) | Лондонский университет Саутбэнк (LSBU) | 3 года (полный рабочий день) | Подробнее о курсе |
| Инженерно-техническое проектирование строительных услуг | BEng (с отличием) | LSBU | 5,5 лет | Подробнее о курсе |
| Электротехника и электроника | БТЭК ХНД | LSBU | 2,5 года (неполный рабочий день) | Подробнее о курсе |
| Инженерные службы зданий | Магистр | LSBU | 1 год (полная занятость) | Подробнее о курсе |
| Архитектурный дизайн и технологии | Бакалавр наук (с отличием) | Университет Линкольна | 3 года (полный рабочий день) | Подробнее о курсе |
| Дизайн интерьера | BA (с отличием) | Университет Нортумбрии | 3 года | Подробнее о курсе |
| Архитектура интерьера | BA (с отличием) | Университет Нортумбрии | 3 года | Подробнее о курсе |
| Технологии возобновляемой и устойчивой энергетики | Магистр | Университет Нортумбрии | 1 год | Подробнее о курсе |
| Высокопроизводительный дизайн | МА | Университет Лидса | 1 год | Подробнее о курсе |
| Эскиз внутреннего пространства (Часть 1) | Лондонский столичный университет | 5 недель | Подробнее о курсе | |
| Архитектура | BA (с отличием) | Университет Де Монфор | 3 года | Подробнее о курсе |
| Электротехника и электроника | BEng/MEng | Университет Де Монфор | 3-4 года | Подробнее о курсе |
| Закон о световом загрязнении | Модуль аспирантуры | Университет Де Монфор | Подробнее | |
| Инженерные службы зданий | BEng (с отличием) | Глазго Каледонский университет3 | 4 года | Подробнее о курсе |
| 3D-дизайн для виртуальных сред | Магистр | Глазго Каледонский университет | 1 год | Подробнее о курсе |
| Дизайн продукта | ВА | Эдинбургский университет | 4 года | Подробнее о курсе |
| Дизайн интерьера | БС | Эдинбургский университет | 4 года | Подробнее о курсе |
Международные курсы
| Строительство | Бакалавр технических наук (с отличием) | Технический университет Дублина | 3 года | Подробнее о курсе |
| Электрические услуги и управление энергопотреблением | Бакалавр наук (с отличием) | Технический университет Дублина | 4 года | Подробнее о курсе |
| Оптическая инженерия | МЭ | Университетский колледж Дублина | 2 года | Подробнее о курсе |
| Дизайн внутреннего освещения | Модуль – 5 кредитов | Архитектура и городская среда – Технологический институт Корка (CIT) | Подробнее см.![]() | |
| Дизайн освещения | Модуль – 5 кредитов | Драма – Технологический институт Корка (CIT) | Подробнее см. | |
| Расширенное освещение сцены | Модуль – 5 кредитов | Драма – Технологический институт Корка (CIT) | Подробнее см. | |
| Дизайн освещения | Модуль – 5 кредитов | Электротехника – Технологический институт Корка (CIT) | Подробнее см. | |
| Аварийное освещение | Модуль | Электротехника – Технологический институт Корка (CIT) | Подробнее см. | |
| Дизайн освещения | Магистр | Ольборгский университет, Дания | 2 года | Подробнее о курсе |
| Дизайн освещения | МА | Висмарский университет прикладных наук | 2 года | Подробнее о курсе |
| Дизайн освещения и светодиодные технологии | МА | Политехнический университет Милана | 2 года | Подробнее о курсе |
| Дизайн архитектурного освещения | Магистр | Королевский технологический институт KTH, Стокгольм, Швеция | 1 год | Подробнее о курсе |
| Свет для здоровья и благополучия | 6 кредитов | Университет Йёнчёпинга | Январь – 9 Апреля0365 | Подробнее см.![]() |
| Эргономика (человеческий фактор) | 15 кредитов | Университет Йёнчёпинга | Январь – | ИюньПодробнее см. |
| Архитектура | Магистр | Университет Оулу, | Финляндия2 года | Подробнее о курсе |
| Фотоника | МДП | Институт фотоники Университета Восточной Финляндии | 2 года | Узнать больше |
| Дизайн освещения | МИД | Новая школа – Парсонс | 2 года | Подробнее о курсе |
| Освещение | Магистр | Политехнический институт Ренсселера | 2 семестра | Подробнее о курсе |
| Архитектура – Освещение Незначительное | Политехнический институт Ренсселера | Подробнее см. | ||
| Цвет и свет | Модуль | Дизайн интерьера, QUT – Квинсленд, Австралия | Подробнее см.![]() | |
| Электротехника | Программа бакалавриата | Эйндховенский технологический университет | 3 года | Подробнее о курсе |
| Изображение и свет в расширенной реальности | Эразмус Мундус MSc | КУ Левен | 2 месяца | Узнать больше |
| Дизайн архитектурного освещения. Основы Основы дизайна освещения. Гостиничный бизнес Основы дизайна освещения. Экстерьеры Управление освещением и интеллектуальные решения Проектирование освещения – проезжая часть и парковкаЗакупки, установка и техническое обслуживание Театральное, тематическое и событийное освещение Техники презентации и коммуникации Dialux Evo 8 Dialux Evo 8 (продвинутый уровень) REVIT для освещения Lumion для освещения Полностью адаптированный курс | Сертификат | Институт освещения (Дубай) | См. полный список курсов и информацию о бронировании |
Требования к образованию инженера-осветителя
: Степени, специальности, колледжи
Образование, необходимое для работы инженером по свету, обычно является степенью бакалавра. Инженеры по свету обычно изучают электротехнику, машиностроение или бизнес. 60% инженеров по свету имеют степень бакалавра, а 20% – степень младшего специалиста. Мы обнаружили их, проанализировав 406 резюме инженеров-светотехников, чтобы более точно изучить тему образования инженеров-светотехников.
Наиболее распространенными колледжами для студентов, стремящихся стать инженером по свету, являются Университет Фул Сейл и Университет Южной Флориды. Мы также рассказали, какие колледжи обеспечивают лучшее общее образование для инженера по свету. У учащихся есть отличный способ получить квалификацию светотехника в следующих школах:
- Северо-восточный университет
- Калифорнийский государственный университет – Лонг-Бич
- Массачусетский технологический институт
Если вы заинтересованы в получении высшего образования в недорогом колледже для инженеров-светотехников – Калифорнийский государственный университет – Лонг-Бич – отличный вариант для тебя.
Если ваш балл SAT или ACT не так высок, как вам хотелось бы, вы можете обратиться в Университет Нотр-Дам-де-Намюр, так как требования к поступающим не слишком избирательны. На другом конце этого спектра находятся Стэнфордский университет, Северо-Западный университет и Северо-Восточный университет.
Для тех, кто предпочитает оставаться в пижаме в течение дня, мы подготовили несколько онлайн-курсов, которые могут помочь в обучении инженеров-светотехников.
Какое образование нужно получить, чтобы стать инженером по свету?
Наиболее распространенной степенью для инженеров по свету является степень бакалавра. 60% инженеров по свету получают эту степень. Ближайшее второе место занимает степень младшего специалиста с 20%, а в завершение – аттестат о среднем образовании с 9%.
- Бакалавры, 60%
- Ассоциированные специалисты, 20%
- Диплом средней школы, 9%
- Магистр, 5%
- Другие степени, 6%
Что я должен специализироваться, чтобы стать инженером по свету?
Большинство инженеров-осветителей, а точнее 19%, специализируются в области электротехники.
Некоторые другие распространенные специальности для инженера по свету включают машиностроение и бизнес-специальности.
- Электротехника, 19%
- Машиностроение, 12%
- Бизнес, 11%
- Музыка, 9%
- Другие специальности, 49%
Проверка рабочих мест, которые соответствуют вашему образованию
Средняя школа / GED
Associate
Bachelor’s
Master’s
. для карьеры инженера по свету в США на основе их резюме. Адвокаты часто получают степень в Университете Фул Сейл, Университете Южной Флориды и Университете Бригама Янга.
Full Sail University
University of South Florida
Brigham Young University
Florida International University
University of Akron
Show More
0%
3%
7%
11%
15%
19%
Средняя заработная плата инженера по свету в зависимости от уровня образования
Инженеры по свету со степенью доктора зарабатывают больше, чем те, у кого нет, и составляют 119 904 доллара в год.
Средний годовой доход инженеров-светотехников со степенью магистра составляет 9 долларов.9 491 по сравнению с 83 578 долларов для инженеров по свету со степенью бакалавра.
Master’s Degree
Bachelor’s Degree
Doctorate Degree
$0
$24,000
$48,000
$72,000
$96,000
$120,000
Salary By Education Level
| Lighting Engineer Education Level | Lighting Engineer Заработная плата |
|---|---|
| Степень магистра | $99,491 |
| Bachelor’s Degree | $83,578 |
| Doctorate Degree | $119,904 |
10 Best Universities For Lighting Engineers
In a lot of cases, a higher education can mean a higher salary or даже лучше работа. Вот почему мы нашли лучшие колледжи для инженеров по свету. Мы составили этот список на основе следующих показателей: уровень приема, уровень удержания, средний заработок работающих студентов, соотношение работающих и неработающих студентов через 10 лет после поступления, средняя стоимость посещения и средний долг выпускников.
1. Северо-восточный университет
Бостон, Массачусетс • Частный
в государственном плате
$ 51 522
Зачисление
13 760
2. Калифорнийский университет- Лонг Бич
Long Long Beach, CA. Государственная плата за обучение
$6,798
Регистрация
31,503
3. Массачусетский технологический институт
Кембридж, Массачусетс • Частный
Обучение в штате
$ 570009Enrollment
4,550
4. Stanford University
Stanford, CA • Private
In-State Tuition
$51,354
Enrollment
7,083
5. Harvard University
Cambridge, MA • Private
In – Государственная плата за обучение
$50,420
Зачисление
7,582
6. Университет Дьюка
Дарем, Северная Каролина • Частный
Обучение в штате
919 90,617 Зачисление $5536 596
7. Калифорнийский государственный политехнический университет, Pomona
Pomona, CA • Private
.
Частный
Обучение в штате
$5,785
Регистрация
7,711
9. Университет Пенсильвании
Филадельфия, Пенсильвания • Частный
Обучение в штате0009
$ 55 584
Зачисление
10 764
10. Техас A & M University
Колледж Станция, TX • Private
. Иногда все становится лучше, когда ты весь день проводишь в пижаме. Включая школу. Мы нашли лучшие курсы для инженеров по свету от Udemy, Coursera, EDX и ed2go, которые помогут вам продвинуться по карьерной лестнице. Вот основные навыки, необходимые для работы инженером по свету:
- Аудио/видео
- Специальные мероприятия
- Технические аспекты
Рекламное раскрытие информации
Кинематографическое освещение
Искусство драматического освещения для кинематографистов независимых фильмов…
Подробнее на Udemy
Профессиональные методы освещения для фотографии Боба Дэвиса
Эксперт по цифровой фотографии Боб Дэвис делится своими профессиональными методами освещения и различные типы света, которые он использует.
..
Подробнее о Udemy
Unreal Engine 4: Руководство по освещению для начинающих
Практическое руководство по освещению в Unreal Engine 4…
Подробнее о Udemy
ОСВЕЩЕНИЕ для кино и телевидения
Научитесь рассказывать истории со светом в 6-часовом захватывающем забавном курсе с комедийными скетчами и двумя полными короткометражными фильмами…
Подробнее на Udemy
Как использовать световой дизайн для преобразования вашего дома
(1,543)
Узнайте, как использовать освещение в дизайне интерьера как профессионал…
Подробнее на Udemy
Автоматизируйте и анимируйте праздничное освещение с помощью пикселей RGB
Создайте собственное анимированное световое шоу с помощью низковольтного, управляемого компьютером Светодиодные индикаторы (пиксели RGB)…
Подробная информация о Udemy
LIVE Streaming Pro: полный курс от новичка до профессионала
Все, что вам нужно знать для прямых трансляций семинаров, мероприятий и вебинаров на основе моего более чем 11-летнего опыта.
..
Подробнее на Udemy
Изучите Arnold — основы затенения и освещения
Станьте экспертом в области затенения, освещения и рендеринга с помощью Arnold для Maya, Katana, Cinema4d, Houdini и других 3D-рендерингов…
Подробнее на Udemy
Искусство находить свет: фотография для художника внутри вас
Находить отличное освещение — это не дар, это навык. Станьте фотографом, который знает, как найти отличный свет…
Подробнее на Udemy
Мастер-класс по прямой трансляции: начните прямую трансляцию как профессионал
Все, что вам нужно, чтобы начать прямую трансляцию как профессионал. Обращайтесь к людям со всего мира на YouTube, Facebook и Instagram…
Подробнее на Udemy
Unity 5: Основы освещения
В этом курсе рассматриваются новые и существующие функции освещения в «Unity 5» с точки зрения начинающий студент…
Просмотреть подробности на Udemy
Ultimate Electrical Design Engineering Course Bundle
Узнайте все о проектировании электрораспределения с использованием Autocad, Dialux, ETAP и слаботочных систем.
..
Подробнее о Udemy
Светоизлучающие диоды и полупроводниковые лазеры
Этот курс также может быть принят для академического кредита как ECEA 5605 , часть степени магистра наук в области электротехники CU Boulder. Светодиоды и полупроводниковые лазеры Введение в курс Вы узнаете о полупроводниковых светоизлучающих диодах (СИД) и лазерах, а также о важных правилах их анализа, планирования, проектирования и реализации. Вы также будете применять свои знания, выполняя сложные домашние задания, чтобы закрепить свое понимание материала и подготовиться к применению в вашей…
Подробнее на Coursera
Цифровое рисование светом и цветом: от любителя до мастера
(1,698)
Изучите основы света и цвета и поднимите свое искусство на новый уровень…
Подробнее на Udemy
Unity Tech Art: реалистичное освещение для разработки игр
Изучите приемы кинематографического технического искусства AAA в игровом движке Unity (Global Illumination and Shader Graph).
..
Подробнее о Udemy
5 и 6
Изучение Ableton Live 10 Suite с помощью руководств, треков и многого другого. Изучите загрузку программного обеспечения Live быстро и легко!…
Подробнее на Udemy
Фотография для начинающих: композиция, позы и свет
Творческая фотография: улучшите свои фотографии с помощью света, композиции и позы!…
Посмотреть Подробная информация о Udemy
Ultimate Live Sound School (1st Edition)
(1,076)
Первоклассное обучение живому звуку от ветерана, работавшего с Майклом Джексоном и Уитни Хьюстон…
Просмотреть подробности на Udemy
Создать фотостудию с оборудованием — с ограниченным бюджетом
Узнайте, как создать фотостудию с любым бюджетом: местоположение, комната, фон, освещение, реквизит и многое другое!…
Подробнее о Udemy
Ableton Live 11 — Производство музыки в Ableton Live
(1,364)
Изучите производство музыки, запись, редактирование, сведение музыки, написание песен + теорию музыки в этом курсе Ableton Live 11.
..
Подробнее на Удеми
Лучшие сертификаты инженера по свету в 2022 году
1. Сертифицированный звукорежиссер (CEA)
- Требуется более двух лет образования или обучения после окончания средней школы? Да
- Требуется опыт работы более двух лет? Да
- Требуется устный или письменный экзамен? Да
- Требуется продление? Каждые 5 лет
Сертифицированный звукоинженер
Общество инженеров радиовещания,…
- Звукорежиссер
- Звукоинженер
- Инженер/продюсер
- Инженер
10 лучших доступных университетов для инженеров по свету
Если эти 10 лучших университетов немного выходят за рамки вашего ценового диапазона, вы можете вместо этого проверить эти школы. После учета стоимости обучения и сборов в штате, средней стоимости посещения, уровня приема, средней чистой цены и среднего заработка через 6 лет мы обнаружили, что это самые доступные школы для инженеров по свету.
1. Университет штата Калифорния – Лонг-Бич
Лонг-Бич, Калифорния • Частный
Обучение в штате
6 798 долларов США
Стоимость обучения Стоимость обучения — это ориентировочная годовая стоимость обучения в конкретном колледже или университете. Он включает в себя обучение и сборы, книги и расходные материалы, а также расходы на проживание.
$18,306
2. Университет Флориды
Gainesville, FL • Частный
In-State Tuition
$6,381
Стоимость обучения Стоимость обучения – это ориентировочная годовая стоимость обучения в конкретном колледже или университете. Он включает в себя обучение и сборы, книги и расходные материалы, а также расходы на проживание.
$21,034
3. Калифорнийский государственный университет – Бейкерсфилд
Бейкерсфилд, Калифорния • Частный
Обучение в штате
$7,309
Стоимость обучения Стоимость обучения – это ориентировочная годовая стоимость обучения в колледже или университете.
Он включает в себя обучение и сборы, книги и расходные материалы, а также расходы на проживание.
$16 714
4. Университет штата Флорида
Таллахасси, Флорида • Частный
Обучение в штате
5 656 долларов США
Стоимость обучения Стоимость обучения – это ориентировочная годовая стоимость обучения в конкретном колледже или университете. Он включает в себя обучение и сборы, книги и расходные материалы, а также расходы на проживание.
21 623 долл. США
5. Калифорнийский государственный университет – Лос-Анджелес
Лос-Анджелес, Калифорния • Частный
Обучение в штате
6 749 долл. США
Стоимость обучения Стоимость обучения – это ориентировочная годовая стоимость обучения в определенном колледже или университете. . Он включает в себя обучение и сборы, книги и расходные материалы, а также расходы на проживание.
$14,823
6. Университет Бригама Янга
Provo, UT • Частный
In-State Tuition
$5,620
Стоимость обучения Стоимость обучения – это ориентировочная годовая стоимость обучения в конкретном колледже или университете.
Он включает в себя обучение и сборы, книги и расходные материалы, а также расходы на проживание.
18 136 долларов США
7. Колледж Баруха Городского университета Нью-Йорка
Нью-Йорк, штат Нью-Йорк • Частный
Обучение в штате
$7,262
Стоимость обучения Стоимость обучения – это ориентировочная годовая стоимость обучения в конкретном колледже или университете. Он включает в себя обучение и сборы, книги и расходные материалы, а также расходы на проживание.
14 046 долларов
8. Международный университет Флориды
Майами, Флорида • Частный
Обучение в штате
6 556 долларов
Стоимость обучения Стоимость обучения – это примерная годовая стоимость обучения в конкретном колледже или университете. Он включает в себя обучение и сборы, книги и расходные материалы, а также расходы на проживание.
$19,434
9. Калифорнийский государственный университет – Фуллертон
Фуллертон, Калифорния • Частный
Обучение в штате
$6,886
Стоимость обучения Стоимость обучения – это ориентировочная годовая стоимость обучения в колледже или университете.
Он включает в себя обучение и сборы, книги и расходные материалы, а также расходы на проживание.
$17 645
10. Политехнический университет штата Калифорния, Помона
Помона, Калифорния • Частный
Обучение в штате
$7,353
Стоимость обучения Стоимость обучения – это ориентировочная годовая стоимость обучения в конкретном колледже или университете. Он включает в себя обучение и сборы, книги и расходные материалы, а также расходы на проживание.
$21,302
10 самых сложных университетов для инженеров по свету
Некоторые люди любят вызовы. Что ж, мы предлагаем вам попасть в одну из этих школ. Это будет нелегко. Мы знаем это на основе показателей приема в эти учебные заведения, средних принятых баллов SAT, медианных принятых баллов ACT и среднего заработка студентов через 6 лет после поступления.
1. Stanford University
Stanford, CA • Private
Admissions Rate
4%
SAT Average
1,497
2.
Northwestern UniversityEvanston, IL • Private
Admissions Rate
8%
Среднее значение SAT
1,508
3. Северо-Восточный университет
Бостон, Массачусетс • Частный
Уровень приема
19%4. Vanderbilt University
Nashville, TN • Private
Admissions Rate
10%
SAT Average
1,514
5. Johns Hopkins University
Baltimore, MD • Private
Admissions Rate
11%
Средний балл SAT
1 513
6. Йельский университет
Нью-Хейвен, Коннектикут • Частный
Уровень приема
6%1540
Cambridge, MA • Private
Admissions Rate
5%
SAT Average
1,520
8. Princeton University
Princeton, NJ • Private
Admissions Rate
5%
SAT Average
1,503
9. Университет Дьюка
Дарем, Северная Каролина • Частный
Показатель зачисления
9%
Средний балл SAT
1,516
10.
Частный Университет Карнеги-Меллона, PA0009Показатель приема
17%
Среднее по SAT
1,507
10 лучших университетов, в которые легче поступить для инженеров по свету
Зачем усложнять себе работу? В эти колледжи вас обязательно примут в кратчайшие сроки. Мы собрали показатели приема, средние баллы SAT, средние баллы ACT и среднюю зарплату студентов через 6 лет после выпуска, чтобы выяснить, в какие школы было легче всего поступить.
1. Университет Нотр-Дам-де-Намюр
Belmont, CA • Private
Admissions Rate
82%
SAT Average
983
2. Kean University
Union, NJ • Private
Admissions Rate
86%
SAT Average
991
3. Университет технологий Капитолия
Лорел, MD • Частный
. Скорость поступления
69%
САД Среднее
1 070
4. Институт Орегонского технологического института
Calsath, OR • Private
Klamath, OR • Private
, OR • Private
, OR • Private
, OR • Private
, OR • Private
.

45 КБ
91 МБ


полный список онлайн-курсов и информацию о бронировании
список курсов



полный список курсов и информацию о бронировании