Проект кинотехнологической части широкоэкранного кинотеатра с заданными размерами зала
1 Министерство культуры Российской Федерации ФГБОУ ВО «Санкт-Петербургский государственный университет кино и телевидения» САНКТ-ПЕТЕРБУРГСКИЙ КИНОВИДЕОТЕХНИЧЕСКИЙ КОЛЛЕДЖ Курсовой проект на тему: «Проект кинотехнологической части широкоэкранного кинотеатра с заданными размерами зала» студента группы Т-433 Морковной Анны Владиславовны по специальности 070208 Руководитель: Громова Марина Михайловна Санкт-Петербург, 2014 г.2 Цель курсового проекта
• выполнить расчетно-планировочное решение зрительного зала;
• выбрать комплекс оборудования;
• разработать план и разрез зрительного зала и киноаппаратной
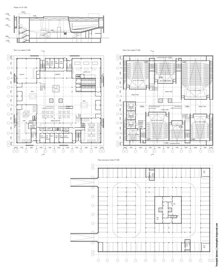
• составить схемы подключения оборудования комплекса Задачи курсового проекта: разработать проект кинотехнологической части широкоэкранного кинотеатра3 Объект проектирования Широкоэкранный кинотеатр круглогодичного действия с размерами зала: длина – 18м, ширина –12м Форма зала – прямоугольная4 Раздел 1 Расчетно-планировочное решение зрительного зала
• Определение размеров зрительного зала
• Расчет фокусного расстояния и выбор объективов
• Выбор типа и формы киноэкрана
• Расчет путей эвакуации
• Планировка зрительных мест в зале
• Расчет подъема пола
• Построение плана и разреза зрительного зала Раздел 2 Выбор комплекса кинотехнологического оборудования
• Выбор основного оборудования: – кинопроектора5 – электрораспределительного устройства – ЭПУ для источника света кинопроектора – звуковоспроизводящей аппаратуры =6429лм Раздел 2 Выбор комплекса кинотехнологического оборудования
• Выбор вспомогательного оборудования: – Темнитель света ТС 3-5 с пультом управления ТС ПУ ТС 3-5 – Плеттер ERNEMANN RPSIII – Монтажный стол6 Раздел 3 Разработка плана и разреза помещений киноаппаратной с размещением оборудования
• Планировка кинопроекционной относительно зрительного зала в плане и разрезе
• Состав и площади помещений киноаппаратной
• Размещение комплекса оборудования7 Раздел 4 Структурная и принципиальная электрические схемы внешних соединений комплекса
• Структурная схема
• Принципиальная электрическая схема
• Расчет и выбор сечения проводов
• Кабельный журнал8 Структурная схема внешних соединений9 Раздел 5 Охрана труда
• Схема зануления комплекса
• Расчет повторного заземления10 Схема защитного зануления на киноустановке11 ЗАКЛЮЧЕНИЕ Для работы по курсовому проектированию были использованы материалы по дисциплине «Кинотеатры и видеозалы», а также по другим техническим и специальным дисциплинам, связанным с эксплуатацией кинооборудования и видеотехники;
применены навыки по решению конкретной практической задачи по разработке кинотехнологической документации кинотеатра и видеозала;
так же использованы исходные документы, применяемые в процессе проектирования.
12 ПРИЛОЖЕНИЯ13
• Чертеж № 1 План и разрез зрительного зала и киноаппаратной
• Чертеж № 2 Принципиальная электрическая схема внешних соединений
Кинотеатр «Художественный» в Москве – информация о кинотеатре
«Художественный» — один из старейших кинотеатров мира, открытый в 1909 году. Здесь проходили важнейшие премьеры, показывали первые звуковые и цветные фильмы, а само здание всегда было оборудовано по последнему слову техники. В 2020 году завершились масштабные реставрационные работы. Ориентируясь на оригинальные чертежи Федора Шехтеля, реставраторы восстановили исторический облик здания. «Художественный» остается кинотеатром премьерного показа и фестивальным центром с кураторским подходом к программе. Сегодня «Художественный» — это активное общественное пространство и место силы для тех, кто искренне любит кино. Программный директор кинотеатра — Стас Тыркин.
Большой зал
Количество мест: 474
Расстояние до экрана: 6,2 м
Размер экрана: 12,1×6,65 м (зеркало изображения 11,7×6,35)
Тип проекционной системы: 2К, 4К
Формат звуковой системы: dolby, dolby atmos
Фильмы демонстрируются в форматах: 2D, 3D, Dolby Atmos, пленка 35 мм
Доступность: доступен для гостей, передвигающихся на колясках
Малые залы
Количество мест: 46
Расстояние до экрана: 1,85 м
Размер экрана: 6,4×2,85 м (зеркало изображения 6,1×2,55)
Тип проекционной системы: 2К, 4К
Формат звуковой системы кинозала: dolby, dolby atmos
Фильмы демонстрируются в форматах: 2D, 3D, Dolby Atmos, ТК
Доступность: в Малом зале № 2 регулярно проходят показы с тифлокомментариями для гостей с нарушением зрения и с расширенными субтитрами для слабослышащих гостей
Камерный зал
Для зрителей, которые ценят приватность и продуманный комфорт, в кинотеатре работает Камерный зал — это небольшое пространство на 21 место, концепция которого вдохновлена Soho House — сетью частных клубов в разных городах мира.
Только в этот зал прямо на сеанс вы можете заказать закуски и напитки из бара от Lucky Group, в том числе игристое, редкие виды виски и авторские коктейли (Меню).
Будем рады провести индивидуальный показ фильмов из библиотеки «Художественного», собранной программным директором кинотеатра Стасом Тыркиным специально для гостей Камерного зала. Организовать индивидуальный показ можно по почте [email protected].
Количество мест: 21
Расстояние до экрана: 1,65 м
Размер экрана: 4,4×2,5 м (зеркало изображения 4,05×2,2)
Тип проекционной системы: 2К, 4К
Формат звуковой системы кинозала: dolby, dolby atmos
Фильмы демонстрируются в форматах: 2D, 3D, Dolby Atmos
Количество мест: 474
Расстояние до экрана: 6,2 м
Размер экрана: 12,1×6,65 м (зеркало изображения 11,7×6,35)
Тип проекционной системы: 2К, 4К
Формат звуковой системы: dolby, dolby atmos
Фильмы демонстрируются в форматах: 2D, 3D, Dolby Atmos, пленка 35 мм
Доступность: доступен для гостей, передвигающихся на колясках
Все залы кинотеатра оснащены самым современным оборудованием.
Лазерные проекторы Barco обеспечивают максимально яркое и четкое изображение. В мире существует всего 17 таких проекторов. Технология Dolby Atmos создает мощный и насыщенный звук с эффектом полного погружения. Все это позволяет гостям получать зрительский опыт, максимально приближенный к авторскому видению. В кинотеатре также установлен пленочный проектор, позволяющий демонстрировать оригинальные копии фильмов.
Архитектурные чертежи: 10 театральных планов, которые оживляют музыку
Архитекторы: Хотите, чтобы ваш проект был представлен? Продемонстрируйте свою работу через Architizer и подпишитесь на нашу вдохновляющую рассылку.
Способность слышать и быть услышанным существенно влияет на наше представление о различных типах помещений для представлений, но для того, чтобы быть по-настоящему успешным, театральный дизайн должен выходить за рамки акустики. От театров под открытым небом и елизаветинских двориков до японских сцен кабуки, архитектура, окружающая перформанс, сосредоточена на повествовании.
Это делает театр идеальной типологией для вдохновения, когда вы готовите свои рисунки к One Drawing Challenge, конкурсу идей, который спрашивает: Можете ли вы рассказать сильную историю, драматическую или тонкую, с помощью одного рисунка?
Изучая театры в плане, следующий набор рисунков показывает, как люди организованы по отношению к актерам, программе, циркуляции и общественному пространству. Они подчеркивают множество параллелей между музыкой и архитектурой: оба искусства исследуют идеи ритма и структуры, порядка и пространства и тесно связаны с человеческим опытом. Чертежи плана демонстрируют современный театральный дизайн со всего мира, каждый из которых демонстрирует различные организационные стратегии в отношении деятельности. В свою очередь, они показывают, как дизайн может кардинально изменить рассказываемые истории.
Herzog & de Meuron, Эльбская филармония, Гамбург, Гамбург, Германия, 2001–2016 гг., план этажа 17-го этажа с механическими воздуховодами главного концертного зала, 2017 г.
© Herzog & de Meuron.
Herzog & de Meuron, Эльбская филармония, Гамбург, © Iwan Baan
Эльбская филармония by Herzog & de Meuron, Гамбург, Германия
Концертный зал в северном порту Эльбской филармонии, Herzog’s Гамбург, открытый в январе 2017 года. На разработку ушло почти десятилетие, весь проект состоит из примерно 1 300 000 квадратных футов многоуровневых пространств, включая три концертных зала, отель, апартаменты, рестораны, гараж и общественную смотровую площадку. Сердцем проекта является Большой зал, и все здание было построено на месте существующего склада в Гамбурге.
Carnal Hall в Le Rosey Bernard Tschumi Architects, Rolle, Швейцария
Carnal Hall по проекту Чуми был разработан как очень устойчивое здание филармонии. Расположенный на берегу Женевского озера, зал был создан для продвижения современного архитектурного образа в кампусе Le Rosey. Конструкция была разработана с учетом самых строгих требований к устойчивости и способна вместить самые престижные оркестры мира.
Программа включала концертный зал на 900 мест, театр «черный ящик», конференц-залы, помещения для репетиций и занятий, библиотеку и учебный центр, ресторан, кафе, студенческую гостиную и другие удобства.
Auditorium of Bondy от PARC Architectes, Бонди, Франция
Auditorium PARC является символом среди рыхлой и малоплотной городской ткани Бонди. Обыгрывая эстетику ангара, проект включает волнистую металлическую обшивку вокруг зрительного зала, зимнего сада и выставочного пространства. В интерьере использованы два вида граненых акустических панелей на стенах и потолке. Здание состоит из последовательных слоев, обеспечивающих акустические и тепловые характеристики: бетонные стены, изоляция, защита от дождя, стеклянные окна, деревянные акустические панели и перфорированная металлическая обшивка.
La Llotja de Lleida, предоставлено Mecanoo
La Llotja de Lleida by Mecanoo, Лерида, Испания
Театр и конференц-центр Mecanoo La Llotja был спроектирован как монолитный объем, возвышающийся над ландшафтом.
Тема фруктовых свобод отсылает к ландшафту фруктовых садов региона, становясь связующим элементом всего интерьера. За счет поднятия первого этажа и глубокого углубления фасада первого этажа создается консоль шириной 16 метров, которая защищает посетителей от солнца и дождя. Общественная площадь начинается под консолью с лестницы соседнего здания, служащей трибуной для зрителей во время мероприятий. Массивный фасад из натурального камня прерывается у входа, где море света пронизывает массивный блок, приглашая посетителей на второй этаж, где расположен многофункциональный зал.
Филармония, Courtesy BarozziVeiga
Филармония by BarozziVeiga, Щецин, Польша
Филармония Бароцци Вейги представляет собой элегантную архитектурную резиденцию, вырастающую из массивных зданий в стиле неоготики и монументальных церквей в стиле классицизма. . Разработанный с геометрией, которая уравновешивает массу и вертикальность, большой зал проекта дифференцируется как скульптурный объект, встроенный в минеральное пространство.
Использование стекла в качестве материала внешней облицовки подчеркивает, насколько здание контрастирует с условиями окружающей среды. Он создает яркий, прозрачный и вертикальный объект. Интерьеры здания просты — их главная отличительная черта — большие световые люки.
Casa da Musica, любезно предоставлено OMA
Casa da Musica, любезно предоставлено OMA
Casa da Musica от OMA, Порту, Португалия между интерьером театра и публикой снаружи. Граненая форма здания открывает вид на окружающий город Порту и новую общественную площадь в исторической Ротонде да Боавишта. Вместо того, чтобы бороться с неизбежным акустическим превосходством формы обувной коробки, Casa da Musica пытается оживить традиционный концертный зал другим способом: переопределив отношения между полым интерьером и широкой публикой снаружи.
Центр экспериментальных медиа и исполнительских искусств (EMPAC) в Политехническом институте Ренсселера от Grimshaw Architects
Центр экспериментальных медиа и исполнительских искусств (EMPAC) в Политехническом институте Ренсселера от Grimshaw Architects, Трой, штат Нью-Йорк, США
Расположен на утеса с видом на реку Гудзон, EMPAC опирается на наследие Ренсселера в области технологического лидерства.
Предоставляя специализированные помещения мирового класса для художественного производства, перформанса и исследований, EMPAC включает в себя огромное количество различных пространств, от формального концертного зала и театра до неформальных экспериментальных студий. Кроме того, он включает в себя полный спектр репетиционных площадок, профессионального производства и пост-продакшн. Ядром Центра является главный концертный зал, рассчитанный на широкий спектр представлений и облицованный элегантными параллельными акустическими панелями.
Культурный комплекс De Nieuwe Kolk, предоставлено De Zwarte Hond
Культурный комплекс De Nieuwe Kolk by De Zwarte Hond, Ассен, Нидерланды
Созданный как многофункциональный культурный центр в Ассене, этот проект расположен на окраине исторического города. Театральное пространство совмещено с библиотекой, кинотеатром, столовой и жилыми функциями. Сочетание традиционной голландской кирпичной кладки, стекла и камня создает монументальное выражение фасада, выделяющееся на фоне окружающей городской ткани.
Площадь и вестибюль продолжают традицию богатой череды улиц, переулков, площадей и садов и связывают культурную программу с городской тканью Ассена.
Музыкальная консерватория Basalt Architectes
Музыкальная консерватория от Basalt Architectes, Париж, Франция Созданный для постоянного диалога с городом, проект был создан как место для обмена мнениями, размышлений и перекрестка практик. Спроектированная изнутри наружу, команда задумала консерваторию, поместив зрительный зал в ее сердце. Он воспринимался как место, где люди играют, учатся, танцуют и творят. Звуки и движение возникают из этого водоворота действий и этой школы практики. Именно так, по словам команды, объемы ожили: кожа, перфорированная ритмом мелодии, которая возникает и обретает форму во внешних стенах. Внутри непрерывная обшивка проходит от стен до крыши.
Alice Tully Hall, Courtesy Diller Scofidio + Renfro
Alice Tully Hall, Courtesy Diller Scofidio + Renfro
Alice Tuller Hall .
был создан как реконструкция и переделка существующего многоцелевого зала в динамичную музыкальную площадку, которая охватывает городской пейзаж. Бывшее непрозрачное каменное здание, спроектированное Пьетро Беллуски, было расширено и изящно выведено на улицу, чтобы обеспечить уютный вестибюль и кассы. В новом здании установлена высокоэффективная внутренняя облицовка, обеспечивающая более сбалансированную акустическую среду во всем интерьере проекта.
Архитекторы: Хотите, чтобы ваш проект был представлен? Продемонстрируйте свою работу через Architizer и подпишитесь на нашу вдохновляющую рассылку.
Программное обеспечение для создания чертежей для проектирования плана рассадки | Планы рассадки | Как нарисовать план ландшафтного дизайна
Места можно пронумеровать, что позволяет зрителям выбирать их заранее, что удобно для кинотеатров или театров. Клиенты выбирают места с учетом их надлежащего ценового диапазона и имеют гарантированное место. Кроме того, нет смысла приезжать на мероприятие раньше. Решение «Планы рассадки», включающее образцы, шаблоны схемы рассадки и библиотеки элементов векторного дизайна, помогает в создании планов рассадки, диаграмм рассадки, чертежей расстановки стульев, чертежей планов рассадки в кинотеатре, планов стульев кинотеатра, обширных планов кинотеатра с изображением расположение посадочных мест в кинозалах, расположение кладовки, кафе и зоны продажи продуктов питания, при разработке планов рассадки для больших зон отдыха, планов рассадки в самолетах, поездах и т. д. Используйте любой из включенных образцов в качестве шаблона схемы рассадки за столом. или бесплатный шаблон диаграммы рассадки и добейтесь профессиональных результатов рисования за несколько минут.
Так же, как и план этажа, ландшафтный дизайн визуально представляет любое место с использованием масштабированных размеров.
Основная цель ландшафтного дизайна — спланировать планировку открытой площадки, независимо от того, является ли это личным планом участка для вашего дома или коммерческим планом для бизнеса. Это также может быть полезно, когда планируется новая установка, ремонт или даже мероприятие на открытом воздухе.
Помогает рассчитать время и решить, какие материалы следует использовать в вашем проекте. Ландшафтный дизайн идеально дает владельцу собственности и ландшафтному подрядчику лучшее представление о стоимости, помогая обеспечить сроки и бюджет проекта.
Программное обеспечение для плана электроснабжения дома для создания великолепно выглядящего плана электроснабжения дома с использованием профессиональных электрических символов.
Вы можете использовать множество встроенных шаблонов, электрических символов и примеров электрических схем нашего программного обеспечения для создания электрических схем.
House Electrical Plan работает на любой платформе, поэтому вам больше не придется беспокоиться о совместимости. ConceptDraw DIAGRAM позволяет создавать схемы электрических цепей на ПК или операционных системах macOS.
Создайте электрическую схему
Каждая квартира время от времени нуждается в ремонте, так как некоторые бытовые системы, такие как электропроводка или сантехника, могут выйти из строя.
При разработке будущего проекта трубопроводной системы инженер должен учитывать множество аспектов. Замена изношенной сантехники начинается с выбора материалов и размеров труб для новой системы. Каждое предложение имеет свои плюсы и минусы, которые следует учитывать перед покупкой. Также уместно обратить внимание на изменения температуры, которые могут повлиять на трубы, такие как замерзание или тепловое расширение. Рассмотрим подробнее возможные материалы труб.
Решение Electric and Telecom Plans, предоставляющее электрические и телекоммуникационные трафареты, электрические символы планов этажей и готовые примеры, полезно для электриков, дизайнеров интерьеров, менеджеров по телекоммуникациям, строителей и других технических специалистов при создании электрических визуальных планов и телекоммуникационных чертежей. , домашний электрический план, жилой электрический план, план беспроводной связи, электрические планы этажей, будь то часть планов здания или независимые.
