Сложение чертежей ГОСТ 2.501-88
8 (800) 100 – 6170
8 (812) 507 – 6170
8 (921) 942 – 6170
191015, Россия, Санкт-Петербург, Таврическая улица, 17, офис 511.
Показать на карте
Прием звонков:
с 9:00 до 18:00 (Пн-Пт)
Свяжитесь с нами
Главная/СПРАВОЧНИК/Нормативная документация/Сложение чертежей ГОСТ 2.501-88
Ниже приведена точная выдержка из ГОСТ 2.501-88, касающаяся сложения чертежей:
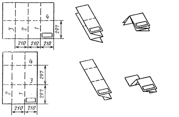
1. Листы чертежей всех форматов следует складывать сначала вдоль линий перпендикулярных (продольных), а затем вдоль линий параллельных (поперечных) к основной надписи.
2. Листы чертежей после складывания должны иметь основную надпись на лицевой стороне сложенного листа.
3. Листы чертежей складывают в последовательности, указанной в табл. 1 и 2, цифрами на линиях сгибов.
4. Устанавливаются следующие виды складывания:
1) в папки в соответствии с табл. 1;
2) для непосредственного брошюрования в соответствии с табл.
Складывание в папки
| Схема складывания | Складывание | |
| Продольное | Поперечное | |
| Формат А0 (841х1189 мм) | ||
| Формат А1 (594х841мм) | ||
| Формат А2 (420х594 мм) | ||
| Формат А3 (297х420 мм) | ||
Складывание для непосредственного брошюрования
| Схема складывания | Складывание | |
| Продольное | Поперечное | |
| Формат А0 (841х1189 мм) | ||
| Формат А1 (594х841мм) | ||
| Формат А2 (420х594 мм) | ||
| Формат А3 (297х420 мм) | ||
Тест
Тест
Подробнее
Вся продукция сертифицирована.
Гарантия на изделия 3 года.
ИНН 782512105634
ОГРНИП 315315784700189975
Категории
Контакты
8(800) 100-6170
8 (812) 507-6170
8 (921) 942-6170
191015, Россия, Санкт-Петербург, Таврическая улица, 17, офис 511.
Показать на карте
Прием звонков:
с 9:00 до 18:00 (Пн-Пт)
Copyright © 2010 – 2023 ИП Лукьянов Г.Б.
Как складывать чертежи по госту?
Прочее › Оформить › Чертеж как оформить
Сложение по ГОСТ
- Листы чертежей всех форматов следует складывать сначала вдоль линий перпендикулярных (продольных), а затем вдоль линий параллельных (поперечных) к основной надписи.
- Листы чертежей после складывания должны иметь основную надпись на лицевой стороне сложенного листа.
- Как складывать чертежи для подшивки?
- Что такое фальцовка чертежей?
- Как правильно оформлять чертежи?
- Где подписывать чертежи?
- Какие типы чертежей бывают?
- Какие основные форматы чертежей установлены?
- Какие существуют форматы чертежей?
- Как складывать чертежи а 1?
- Сколько отступать от рамки до чертежа?
- Как правильно расположить виды на чертеже?
- Кто должен уметь читать чертежи?
- Кто должен подписывать чертежи?
- Что означает буква R на чертеже?
- В чем лучше чертить чертежи?
- Чем можно чертить чертежи?
- Что нужно для чертежей?
- Какую линию используют для оформления чертежей?
- Как происходит фальцовка?
- Зачем нужна фальцовка?
- Сколько отступать при чертеже?
Какой шрифт должен быть на чертеже?- Как правильно указать масштаб на чертеже?
- В каком порядке складывать чертежи?
- Какой размер А 3?
Как складывать чертежи для подшивки?
Как складывать чертежи по ГОСТу для подшивки? Есть несколько ключевых правил: Листы должны быть сначала сложены вдоль линий, перпендикулярных к основной надписи, а затем вдоль параллельных ей.
Это необходимо, чтобы работать с документами было удобнее.
Что такое фальцовка чертежей?
Фальцовка чертежей — это один из этапов постпечатной обработки. Фальцовка применяется для брошюровки, удобства хранения и транспортировки документов большого формата (А0, А1, А2, А3), а также представляет собой процесс складывания (фальцевания) листов в форматы А4, А3.
Как правильно оформлять чертежи?
Чертеж оформляется рамкой, которая проводится сплошной основной линией на расстоянии 5 мм от правой, нижней и верхней сторон внешней рамки чертежа. С левой стороны оставляется поле шириной 20 мм, служащее для подшивки и брошюровки чертежей (Рисунок 1.2).
Где подписывать чертежи?
На чертежах в правом нижнем углу располагают основную надпись. Форму, размеры и содержание ее устанавливает стандарт. На учебных школьных чертежах вы будете выполнять основную надпись в виде прямоугольника со сторонами 36 х 185 мм.
Какие типы чертежей бывают?
Черчение бывает: геометрическое, проекционное, машиностроительное, строительное, картографическое и др.
. Чертёж изображается на плоскости с использованием черт (штрихов), линий.
Какие основные форматы чертежей установлены?
ЕСКД ГОСТ 2.301-68 Формат
Обозначение формата | Размеры сторон формата, мм |
|---|---|
А1 | 594х841 |
А2 | 420х594 |
А3 | 297х420 |
А4 | 210х297 |
Какие существуют форматы чертежей?
Размеры чертежей формата А0, А1, А2, А3, А4, А5
Обозначение формата | Размеры сторон формата, мм | Площадь формата, м2 |
|---|---|---|
А1 | 594 x 841 | 1/2 |
А1 x 3 | 841 x 1783 | 3/2 |
А1 x 4 | 841 x 2378 | 2 |
А2 | 420 x 594 | 1/4 |
Как складывать чертежи а 1?
1 Листы чертежей всех форматов следует складывать сначала вдоль линий, перпендикулярных (продольных) к основной надписи, а затем вдоль линий, параллельных (поперечных) к основной надписи.
Г. 2 Листы чертежей после складывания должны иметь основную надпись на лицевой стороне сложенного листа.
Сколько отступать от рамки до чертежа?
Сверху, справа, слева и снизу гра- ница рамки проводится на расстоянии 5 мм от края листа установленного фор- мата 400х300(297) мм. Если размер листа несколько меньше установленного формата (1 — 3 миллиметра), то расстояние линии рамки также равно 5 мм от края листа.
Как правильно расположить виды на чертеже?
Основные виды, как правило, располагают в проекционной связи. Количество основных видов на чертеже определяется формой детали, при этом предпочтение отдается комбинации из трех видов: спереди, сверху, слева (рис. 1.24).
Кто должен уметь читать чертежи?
Лучше всего пройти специализированные курсы или обучиться инженерным специальностям или другим профессиям, относящимся к производству или к строительству. Умение читать технологическую документацию необходимо как инженеру, так и рядовому токарю.
Кто должен подписывать чертежи?
Подписи главного инженера (архитектора) проекта являются обязательными на листах общих данных по рабочим чертежам, наиболее значимых листах рабочих чертежей, графической части проектной и отчетной изыскательской документации”.
Что означает буква R на чертеже?
При нанесении размера радиуса перед размерным числом помещается прописная латинская буква R (рис. 1.68).
В чем лучше чертить чертежи?
Autocad — одна из самых популярных программ двух и трехмерного проектирования и черчения. SolidWorks — мощный комплекс трехмерного проектирования, часто используется профессиональными конструкторами. Полная версия включает в себя много модулей, в том числе расчеты.
Чем можно чертить чертежи?
Бесплатные программы для черчения: что выбрать?:
- КОМПАС-3D (бесплатная)
- AutoCAD (бесплатная пробная версия)
- nanoCAD (бесплатная версия)
- A9CAD (бесплатная)
- CorelDRAW Technical Suite (условно бесплатная)
- VariCAD (условно бесплатная)
- LibreCAD (бесплатная)
- Graphite (условно бесплатная)
Что нужно для чертежей?
Чтобы выполнить чертеж вам понадобится: циркуль, линейка, угольники, транспортир, карандаши и ластики.
С этими инструментами для письма и черчения вы успели познакомиться на уроках математики, рисования и труда.
Какую линию используют для оформления чертежей?
Штриховая линия.
Штриховая линия состоит из штрихов (черточек) одинаковой длины. Их длина установлена стандартом в пределах от 2 до 8 мм(для ученических чертежей рекомендуется 4 мм). Длина всех штрихов в линии должна быть приблизительно одинаковой.
Как происходит фальцовка?
Фальцовка, или фальцевание (от нем. Falz — сгиб), представляет собой складывание печатного листа для формирования линии сгиба. Операция проводится механическим способом, что позволяет достичь идеально ровной линии. Производится фальцовка при помощи прижимных валов, которые и создают устойчивый ровный сгиб.
Зачем нужна фальцовка?
Фальцовка — складывание листа бумаги с целью формирования линии сгиба механическим способом, с помощью прижимных валов, обеспечивающих получение ровного и устойчивого сгиба; Биговка также формирует линию сгиба.
Сколько отступать при чертеже?
От края листа до начала чертежа необходимо сделать отступ. Он отделяется линией (то есть рамкой). От левого края отступают 20 мм, от остальных — по 5 мм.
Какой шрифт должен быть на чертеже?
Согласно требованиям системы стандартов ЕСКД все надписи на чертежах должны быть выполнены чертёжным шрифтом по ГОСТ 2.304-81, а в текстовых документах чертёжный шрифт должен использоваться при рукописном способе выполнения.
Как правильно указать масштаб на чертеже?
Д., для отдельных изображений на поле чертежа значение масштаба указывается в скобках, например для сечения А-А (1: 2). При проектировании генеральных планов крупных объектов допускается применять масштабы 1:2000; 1:5000; 1:10000; 1:20000; 1:25000; 1:50000.
В каком порядке складывать чертежи?
Листы чертежей всех форматов следует складывать сначала вдоль линий перпендикулярных (продольных), а затем вдоль линий параллельных (поперечных) к основной надписи.
2. Листы чертежей после складывания должны иметь основную надпись на лицевой стороне сложенного листа.
Какой размер А 3?
А2 — площадь составляет 25 дециметров, а стороны — 420×594 мм. А3 — площадь листа составляет 12,5 дециметров, а стороны — 297×420 мм. А4 — самый популярный формат со сторонами 210×297 мм. А5 — имеет стороны 210х148 мм.
Architectural Tricks of the Trade
Архитекторы используют всевозможные манеры и процессы, которые, кажется, превосходят свое время и место. Эти традиции передаются из поколения в поколение, и ими стоит делиться и хранить их. На днях, когда я сидел на своем рабочем месте площадью 9 квадратных футов, я увидел, как младший сотрудник складывает набор рисунков, чтобы сложить их в папку, и они делают это ВСЁ НЕПРАВИЛЬНО! В такие моменты рождаются идеи для постов, и поэтому я взял на себя задачу показать этим младшим коллегам, как правильно складывать рисунок. Внезапно небо раскололось, и множество ангелов вышли, воспевая архитектурное воинство.
Разве каждый не должен испытать что-то подобное только за правильное складывание чертежа?
Вы можете подумать про себя: «Зачем мне складывать рисунок?» Причины, по которым вы бы свернули рисунок, заключаются в том, что их всего несколько, и свернуть их невозможно. В некоторых муниципалитетах есть правила получения рисунков, обычно предпочтительным является сложенный формат, иногда проще отправить сложенные рисунки, а иногда их просто проще положить в сумку по дороге на встречу. К прокату вернемся чуть позже…
Вот архитектурный чертеж размером 30″ x 42″. Я пометил углы, чтобы вы могли следить за тем, как складывается лист. «F» — передняя часть, «B» — задняя — довольно просто. Этот метод работает на любом листе бумаги большого формата.
Сложите рисунок пополам так, чтобы внутренняя часть была сложена внутрь …
Возьмите внешние углы (1B и 3B) и согните их вправо так, чтобы правая сторона строки заголовка была незащищенный.
Переверните рисунки и повторите последний шаг.
Теперь согните рисунок посередине так, чтобы строка заголовка находилась на внутренней стороне сгиба. Теперь у вас должно быть два основных клапана…
Поверните сложенный рисунок на 90 градусов так, чтобы шов был вверху, а открытые края были направлены вниз. Возьмите нижний край и загните его вверх, обнажая правый верхний угол основной надписи.
Повернуть рисунок 90 градусов и повторите последний шаг. То, что вы знаете, это сложенный рисунок на 1/16 площади, где он был раньше, с информацией о заголовке листа во внешнем углу. Вам больше не нужно открывать чертеж, чтобы увидеть, что за сладость скрывается внутри
Это готовый продукт… то, что когда-то было 30″ x 42″, теперь представляет собой компактный и аккуратно сложенный размер 10,5″ x 7,5″ – чертеж название с одной стороны и логотип фирмы с другой стороны.
Иногда проще просто показать, как это складывать, поэтому я решил выйти из-за клавиатуры и снять видео о том, как складывать лист бумаги размера D или E.
Кстати, это было сделано за один дубль. Прежде чем думать про себя» Вау, это действительно впечатляет ” просто запомните 2 вещи:
1) Это просто сложенный лист бумаги
2) Слава богу, это не было снято в высоком разрешении
будьте осторожны, в этом видео есть звук – не обо мне (зачем кому-то это нужно?), а о Deadmau5, это, безусловно, музыка, которую можно сложить…
.
Это подводит нас к нашему следующему небольшому совету по складыванию – более конкретно для бумаги размером 11″ x 17″ – некоторые люди называют их листами размера «Таблоид» или «В». В любом случае… их нужно правильно согнуть, прежде чем положить в папку проекта, и это даже проще, чем складывать листы размеров «D» и «E»! (не могли бы вы быть более взволнованы?!?)
Вот он — развернутый лист бумаги размером 11″x17″… если ваш офис чем-то похож на мой, у вас валяются тысячи таких листов.
Сложите его пополам…
Отогните край основной надписи назад… теперь у вас есть лист бумаги размером 8,5″ x 11″.
Этот метод также оставляет вас с открытой основной надписью вдоль внешнего края бумаги, что означает, что нет необходимости разворачивать, чтобы увидеть центр рисунка нуги.
.
Следующий пример —
Когда вы сворачиваете свои рисунки, сворачивайте их так, чтобы лицевая сторона была видна. Это дает вам две вещи:
1) Позволяет вам видеть полную основную надпись, чтобы вы знали название проекта, лист, информацию о дате выпуска – все …
2) Когда вы разворачиваете чертежи и кладете их на стол , они сворачиваются к столу, а не сами по себе — вам больше не придется придавливать углы грузом, чтобы ваши рисунки оставались плоскими.
.
И мой последний совет на сегодня — это довольно очевидно:
Ура,
еще лучший материал из жизни архитектора
Графические стандарты.
Часть 2
База данных бумажных самолетиков с простыми инструкциями по складыванию, видеоуроками и схемами складывания, которые можно распечатать. Найдите лучшие бумажные самолетики, которые летят дальше всех и остаются в воздухе дольше всех. Узнайте, как сделать бумажные самолетики, которые произведут впечатление на ваших друзей.
Базовый Easy
время на высоте
Легко
Базовый дротик Легкий
Расстояние
Easy
время в воздухе, акробатика
Средний
Расстояние, время на высоте
Средняя
Дистанция, акробатика
средний
декоративный
Средний
Расстояние, время на высоте
Жесткий
Расстояние, время на высоте
Жесткий
акробатический
Жесткий
время в воздухе, акробатика
Средний
Расстояние, время на высоте
Средний
Акробатический, декоративный
Easy
время в воздухе, акробатика
Средний
время в воздухе, акробатика
Средний
Расстояние, время на высоте
Вращения
Вращающийся самолет Жесткий
акробатический
Жесткий
акробатический
Средний
Расстояние, время на высоте
Расстояние, время в воздухе, акробатика Орлиный глаз
средний
декоративный
Милый
Белый голубь средний
декоративный
Эксперт
Расстояние, время на высоте
Средний
Акробатический
Жесткий
Расстояние, время на высоте
Жесткий
Расстояние, время на высоте
Средний
время на высоте
Эксперт
Расстояние, время на высоте
Легко
Расстояние, время на высоте
Иди далеко
Птица Жесткий
Расстояние
Жесткий
Расстояние, время на высоте
Жесткий
время на высоте
Жесткий
Расстояние, время на высоте
Жесткий
Расстояние
Легкий
акробатический
Быстро
Подъем Легкий
Расстояние
Средний
Расстояние, время на высоте
Жесткий
Расстояние, время на высоте
Скорость
Соник Джет Жесткий
Расстояние, время на высоте
Средний
Акробатический, декоративный
Планирует
Планер-невидимка Средний
Расстояние, время на высоте
Средняя
Дистанция, акробатика
Жесткий
Расстояние
Петли
Плоскость контура Easy
акробатический, декоративный
Средний
Расстояние
Средний
Расстояние, время на высоте
Эксперт
Расстояние
Легкий
Расстояние
Средний
Расстояние
О компании Fold’NFly
Уже более 10 лет компания Fold’NFly обучает людей во всем мире делать бумажные самолетики.
