Курсовой проект
Санкт-Петербургский Политехнический Университет Петра Великого
Инженерно-строительный институт
Кафедра подземных сооружений, оснований и фундаментов
Дисциплина ”Основания и фундаменты ”
Проектирование фундаментов
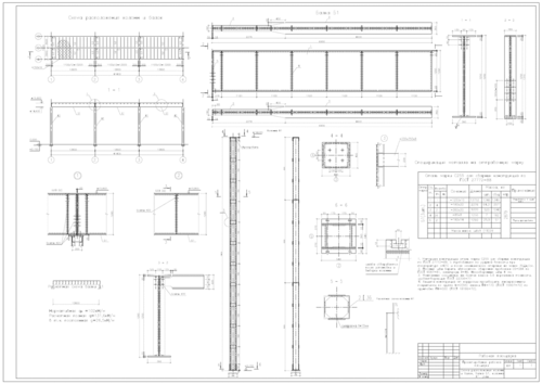
(Схема сооружений-мост через канал)
Выполнил:
Студент гр. № 33102/1
Майоров П.О.
Проверил:
Проф.
Бугров
А.К.
Санкт-Петербург
2016 Г.
Введение 3
Глава I .Исходные данные, нагрузки на фундамент, характеристики грунтов 4
1.1.Исходные данные 4
1.2. Нагрузки, действующие на фундаменты 5
1.3. Нормативные и расчетные характеристики грунтов 7
Глава II . Расчет и конструирование фундаментов мелкого заложения 9
2.1. Определение глубины заложения подошвы фундаментов на естественном основании 9
2.2. Предварительное определение площади подошвы фундаментов 10
2.3. Определение осадок фундамента, его неравномерностей и крена 13
2.4. Расчет фундаментов мелкого заложения по несущей способности 20
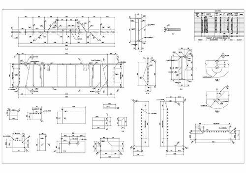
Глава III . Расчет и конструирование фундаментов свайной конструкции 22
3.1. Выбор типа свай и ее размеров. 22
3.1.1. Выбор свай 22
3.1.2. Определение расчетной нагрузки, допускаемой на сваю 23
3.1.3. Предварительное определение веса ростверка 24
3.
1.4. Конструирование
ростверка 25
3.2. Определение расчетных нагрузок на сваи фундаментов. Окончательное назначение числа свай и размеров ростверка 25
Введение
Целью курсовой работы является проектирование и расчет фундаментов под опорные конструкции моста.
Курсовая работа включает в себя проектирование двух вариантов фундамента:
мелкого заложения и свайного. Для каждого из вариантов был произведен расчет по деформациям (определение осадок), расчет оснований по несущей способности
В процессе проектирования фундаментов были определены расчетные усилия,
действующие на обрез фундамента, нормативные и расчетные значения характеристик грунтов, выбрана глубина заложения фундаментов, определены размеры подошвы фундаментов в плане, произведено технико-экономическое сравнение фундаментов, в результате которого был выбран наиболее оптимальный вариант.
Работа выполнена в соответствии с заданием на проектирование и действующими СНиП’ами
ГлаваI.
Исходные данные, нагрузки на фундамент, характеристики грунтовИсходные данные
Схема сооружения №7- мост через канал ГЭС
Географический район строительства сооружения – Волхов
Характеристика сооружения – Вариант №3
Характеристики грунтов и толщины слоев, слагающих основание сооружения, приведены в таблицы
Дополнительные условия – УГВ на отм (до пуска канала)
№ слоя | Наименование грунта | Толщина слоя | w | c | E | |||||||||
скв 1 | скв 2 | скв 3 | ||||||||||||
м | град | МПа | ||||||||||||
3 | Песок среднезернистый | 11 | 13 | 2,66 | 1. | 0,12 | – | 38 | – | 30 | ||||
1 | Песок пылеватый | 4 | 2 | 2,65 | 1,36 | 0,17 | – | 27 | – | 9 | ||||
2 | Супесь | 0.5 | 0.5 | 2,71 | 1,94 | 0,19 | 0. | 20 | 0.005 | 15 | ||||
Определяем постоянные и временные нагрузки, действующие на уровне поверхности грунта. Расчет нагрузок сводим в таблицу
Заданные нагрузки:
1.Собственный вес пролетного строения
2.Временная нагрузка на тротуаре
3.Временная нагрузка на проезжей части
Схема сооружения и схема основания представлены в приложении 1.
Курсовой проект ПГС – Механика грунтов, основания и фундаменты | BuildCalc
Методические указания по выполнению курсового проекта с использованием программного обеспечения для студентов специальности «Промышленное и гражданское строительство»
Скачать методическое пособие (4,92 МБ)
Изложены общие указания по курсовому проектированию, приведены задания на проекты,
даны методические указания по отдельным этапам разработки курсового проекта.
Приведены
примеры расчета оснований и фундаментов. Пособие предназначено для студентов специальности
«Промышленное и гражданское строительство».
-
1. Общие указания
- 1.1. Список литературы
-
2. Задание на курсовой проект
- 2.1. Схема выполнения курсового проекта
-
3. Выбор задания на курсовой проект
- 3.1. Усилия на обрезах фундаментов от расчетных нагрузок в наиболее невыгодных сочетаниях
- 3.2. Расчетные характеристики физико-механических свойств грунтов
4. Анализ инженерно-геологических условий и оценка строительных свойств грунтов- 5. Оценка характера нагрузок и конструктивных особенностей здания
-
6.
Разработка вариантов -
7. Проектирование фундаментов на естественном основании
- 7.1. Общие положения
- 7.1.1. Предварительное назначение основных параметров и размеров фундаментов
- 7.1.2. Конструирование фундаментов и уточнение действующих нагрузок
- 7.1.3. Расчеты по предельным состояниям
-
8. Примеры расчётов проектирования фундаментов
- 8.1 Пример 1. Расчет фундамента на естественном основании
- 8.2. Пример 1а. Определение размеров и осадки фундамента с учётом нагрузок по его обрезу с использованием программного обеспечения на сайте www.buildcalc.ru
-
8.

3. Пример 2. Проверка слабого подстилающего слоя - 8.4. Пример 3. Определение конечной осадки фундамента
- 8.5. Пример 4. Расчет основания по несущей способности
- 8.6. Пример 5. Расчет фундамента под дымовую трубу
-
9. Проектирование свайных фундаментов
- 9.1. Общие положения и порядок проектирования
- 9.2. Выбор типа, глубины заложения ростверка и ориентировочное назначение его размеров
- 9.3. Выбор типа, длины и поперечного сечения сваи
- 9.4. Определение расчетной (допускаемой) нагрузки на сваю
- 9.5. Определение числа свай
-
9.
6. Размещение свай и уточнение размеров ростверков - 9.7. Расчёты свайных фундаментов по предельным состояниям
- 9.8. Пример 6. Расчёт свайного фундамента
-
10. Технико-экономическое сравнение вариантов
- 10.1. Пример 7. Технико-экономическое сравнение вариантов
- 11. Указания по производству работ
- 12. Оформление проекта
-
Приложения
- Альбом дополнительных графических материалов для выполнения курсового проекта по проектированию фундаментов сооружения
- Типовые конструкции, применяемые в фундаментостроении (фундаменты, фундаментные балки, сваи)
-
Фундаменты на естественном основании.
Подвалы - Свайные фундаменты под стены
- Свайные фундаменты под колонны. Размещение свай в плане
- Специальные фундаменты
- Осадочные швы
- Примыкание фундаментов
- Содержание чертежей курсового проекта
Скачать методическое пособие (4,92 МБ)
Для просмотра материалов данного методического пособия требуется Adobe Reader, который можно скачать здесь.
Онлайн-класс по основам управления проектами
- Все темы
- Бизнес
- Управление проектом
- Навыки управления проектами

С Бонни Биафор Нравится 2643 пользователям
Продолжительность: 3ч 32м Уровень мастерства: Начинающий Дата выпуска: 13.10.2022
Детали курса
Просмотреть информационный бюллетень Бонни на LinkedIn
Управление проектами — это набор методов, которые каждый может применить для достижения целей и повышения эффективности проектов. Управление проектами можно использовать для управления небольшими простыми проектами, а также комплексными инициативами в масштабах предприятия. Бонни Биафор всегда была очарована тем, как все работает и как сделать так, чтобы все работало лучше. В этом курсе она объясняет основы управления проектами, от установления целей и задач проекта и построения плана проекта до управления ресурсами и работой, соблюдения сроков и закрытия проекта.
Попутно она дает советы по общению, проведению встреч, поддержанию проекта в нужном русле и получению одобрения клиентов. Курс также предоставляет обзор изменений, внесенных в 9-й курс Института управления проектами.0023 Руководство по Своду знаний по управлению проектами, седьмое издание . Этот курс содержит упражнения для большинства видеороликов, основанных на тематическом учебном проекте в области здравоохранения/ИТ.
Навыки, которые вы приобретете
- Управление проектом
Получите общий сертификат
Поделитесь тем, что вы узнали, и станьте выдающимся профессионалом в желаемой отрасли с сертификатом, демонстрирующим ваши знания, полученные на курсе.
Обучение LinkedIn Обучение
Сертификат об окончанииДемонстрация в вашем профиле LinkedIn в разделе «Лицензии и сертификаты»
Загрузите или распечатайте в формате PDF, чтобы поделиться с другими
Поделитесь изображением в Интернете, чтобы продемонстрировать свое мастерство
Познакомьтесь с инструктором
Бонни Биафор
Рок-звезда LinkedIn Learning, консультант по управлению проектами и гуру Microsoft Project.
Я делаю обучение веселым!
Отзывы учащихся
3 119 оценок
Общий рейтинг рассчитывается на основе среднего значения представленных оценок. Оценки и обзоры могут быть отправлены только тогда, когда неанонимные учащиеся завершат не менее 40% курса. Это помогает нам избежать поддельных отзывов и спама.
- 5 звезд Текущее значение: 2474 79%
- 4 звезды Текущее значение: 547 17%
- 3 звезды Текущее значение: 892%
- 2 звезды Текущее значение: 7 <1%
- 1 звезда Текущее значение: 2 <1%
Виктор Контрерас Альварес
Старший руководитель отдела воздействия Jabil Healthcare (инженер-биомедик)
4/5
22 февраля 2023 г.
Мне нравится, как увлеченно преподносит информацию тренер
Полезный · Отчет
Элисия МаременеЭлисия Маремене
санитарный инспектор в мадикор 16
Содержание
Что включено
- Практикуйтесь, пока учитесь 2 файла упражнений
- Проверьте свои знания 10 викторин
- Учитесь на ходу Доступ на планшете и телефоне
- Будьте в курсе Подразделения непрерывного образования
Похожие курсы
Скачать курсы
Используйте приложение LinkedIn Learning для iOS или Android и смотрите курсы на своем мобильном устройстве без подключения к Интернету.
Основы управления проектами – Школа непрерывного образования
Успех в управлении проектами требует структурированного, систематического подхода к проектам. Разработайте основные инструменты и методы для каждого этапа: инициирование, планирование, выполнение, мониторинг, контроль и закрытие. Получите рабочую основу для лучшего планирования и контроля различных проектов в вашей организации.
Это обязательный класс для тех, кто хочет получить сертификат управления проектами, и рекомендуемый первый класс.
Логотип PMI Authorized Training Partner является зарегистрированным товарным знаком Project Management Institute, Inc. Менеджер Сандра Хоскинс стремится работать с людьми, которые хотят добиться совершенства в своей жизни, будь то на работе, дома, в игре или в своем сообществе. Страсти Сандры – управление проектами … читать дальше
Кто должен посетить
Этот курс предназначен для тех, кто заинтересован в изучении конкретных методов и принципов, связанных с бережливым мышлением и решением проблем: Бизнес-менеджеры, члены операционных групп, члены производственных групп, администраторы контрактов, менеджеры по продуктам, дизайнеры продуктов, инженеры, участники проекта, команда руководители, руководители проектов, менеджеры проектов и PMP (сертифицированные специалисты по управлению проектами), которым необходимо пройти обучение/образовательные семинары для повторной сертификации.
Преимущества и результаты обучения
Значение для организации
- Руководители проектов будут лучше подготовлены к решению проблем.
- Руководители проектов смогут внедрять решения для более быстрого смягчения хронических проблем и проблем, связанных с бизнесом и проектами.
Каждый участник сможет:
- Определить критически важные результаты управления проектом.
- Увеличьте количество потенциальных ответов, которые вы можете иметь для любой конкретной проблемы или сценария.
- Будьте более активны в обработке непредвиденных событий.
- Повысьте свой личный уровень зрелости в управлении проектами.
План курса/Темы
Каждый участник проекта должен уметь управлять проектами для достижения корпоративных целей, ожиданий спонсоров и удовлетворения потребностей клиентов. На современном требовательном рабочем месте уже недостаточно владеть основами управления проектами.
Вам также необходимо научиться быстро и эффективно распознавать, диагностировать и реагировать на такие ситуации, а также создавать среду, в которой они больше не возникают. На этом семинаре вы проработаете ряд реальных бизнес-задач, используя проверенный процесс для развития и использования своих навыков критического мышления, которые вы сможете легко применить на своем рабочем месте.
Краткое описание
I: ВВЕДЕНИЕ
II: НАСТРОЙКА КОМАНДЫ ДЛЯ УСПЕХА
• Создание командной среды
• Разговор – Общение на одном языке
III: СОЗДАНИЕ1 ОБЛАСТИ РАБОТЫ 90in заинтересованных сторон проекта
• Пересмотреть методы определения содержания
• Рассмотреть создание работоспособного описания содержания
• Сообщить содержание заинтересованным сторонам
• Создать описание содержания
• Разработать коммуникационную стратегию для сообщения содержания проекта спонсору
IV: СОЕДИНЕНИЕ ОБЪЕМА РАБОТ С ГРАФИКОМ СОЗДАНИЕ
WBS
• Анализ роли заинтересованных сторон проекта
• Просмотр описания содержания
• Определение результатов проекта, по которым у вас есть историческая информация
• Выбор результата из описания содержания деятельность
• Использование мозгового штурма, создание WBS
СОЗДАНИЕ ОЦЕНОК НА ВРЕМЕНИ
• Типы оценок
• Добавление уровня достоверности к оценкам
• Выбор метода оценки
• Оцените задачи в WBS
НАЗНАЧЕНИЕ РЕСУРСОВ
• Типы ресурсов
• Просмотрите емкость ресурсов
• Определите ресурсы, используемые в ваших проектах
• Назначьте ресурсы задачам в WBS
• Рассчитайте стоимость ресурсов – использование смешанных тарифов
V: РАЗРАБОТКА ГРАФИКА
• Анализ графика
• Анализ влияния ограничений
• Создание/просмотр графика
• Оценка запланированной даты завершения
• Рекомендация стратегий по сокращению графика (что необходимо в день 1?)
VI: ВЗАИМОДЕЙСТВИЕ С ЗАИНТЕРЕСОВАННЫМИ СТОРОНАМИ ПРОЕКТА И ВЛИЯНИЕ ПРОБЛЕМ, ИЗМЕНЕНИЙ И РИСКОВ
• Обеспечение авторизации работ
• Сообщение результатов проекта
• Обеспечение правильной коммуникации с командой
• Разработка стандартного пакета отчетности
• Обеспечение прозрачности для руководства
• Управление изменениями/проблемами/рисками
• Управление коммуникациями
VII: ЗАКЛЮЧЕНИЕ
• Закрытие проекта/этапа
• Переход к владельцам
• 30-60-90 дней
• Что переходить
• Когда переходить
• Анализ после внедрения – «извлеченные уроки»
• Следующие шаги
Отзывы
“Содержание курса и новые знания, которые я получил, полностью оправдали мои ожидания!” — Бриттани Могг, Miniature Precision Components
«Отличный, знающий инструктор! Было очень полезно иметь инструктора с ее опытом».
— Алекс Гундерсон, Bluetree Network
- Сессии
Дата: 13 апреля 8
Метод доставки: онлайн
Платформа: Canvas
.
845 долларов до 27 февраля
895 долларов США после 27 февраля
CEU: 1.4, PDU: 14
Лимит регистрации: 20
Номер программы:
5125 9-Примечание: Участники получат инструкции по входу в Canvas для доступа к материалам курса примерно за неделю до первого занятия. Этот класс асинхронный с доступом 24/7. Он интерактивный и проводится под руководством инструктора. Каждую неделю проводятся записанные презентации, задания по чтению/письму, викторины и онлайн-обсуждения.
Полная оплата или договоренность об оплате (например, заказ на покупку или план оплаты) должны быть произведены до первого дня занятий.
Registration Deadline: Mar 13
Register Now
Date: Mon-Tue, Apr 24-25
Delivery Method: In-person
Time: 8:30am-4:30pm CT
Местонахождение: Школа непрерывного образования UWM
Преподаватель: Сандра Хоскинс, интернет-провайдер, ITCP, PMP, CSM
Плата:
845 долларов до 10 апреля
895 долларов США после 10 апреля
CEU: 1.
4, PDU: 14
Ограничение по количеству зачислений: 20
Номер программы: 5025-15150
Примечание: Участники получат электронное письмо с приглашением войти в курс на Canvas, дополнительную систему управления курсом UWM, чтобы получить доступ и ресурсы до даты начала курса.
Полная оплата или договоренность об оплате (например, заказ на покупку или план оплаты) должны быть произведены до первого дня занятий.
Срок регистрации: апреля 24
Регистрация сейчас
Дата: веретковая веревка, 20-21, 27-28
Метод доставки: Платформа: Zoom
Преподаватель: Сандра Хоскинс, интернет-провайдер, ITCP, PMP, CSM
Плата:
845 долларов США до 6 июня
895 долларов США после 6 июня
CEU: 1.4, PDU: 14
Лимит регистрации: 20
Номер программы: 5025-15128
Примечание: Участники получат инструкции по входу в Canvas для доступа к материалам курса и ссылкам на Zoom примерно за неделю до первого занятия.

85
4
Разработка вариантов
6. Размещение свай и уточнение размеров ростверков
Подвалы
Я делаю обучение веселым!