404 Cтраница не найдена
Размер:
AAA
Изображения Вкл. Выкл.
Обычная версия сайта
К сожалению запрашиваемая страница не найдена.
Но вы можете воспользоваться поиском или картой сайта ниже
|
|
Правила оформления чертежей – презентация онлайн
Похожие презентации:
Правила оформления чертежа
Правила оформления чертежей
Правила оформления чертежей
Общие правила оформления чертежей
Основные правила оформления чертежей.
Геометрические построения
Оформление чертежей
Правила оформления чертежей (9 класс)
Техника выполнения чертежей и правила их оформления
Правила оформления чертежей
Оформление чертежей. Линии Форматы
ПРАВИЛА ОФОРМЛЕНИЯ ЧЕРТЕЖЕЙ
Автор проекта:
Антипова Галина Антоновна,
учитель черчения и
информатики
ГБОУ СОШ № 2034, г. Москва
ПРАВИЛА ОФОРМЛЕНИЯ ЧЕРТЕЖЕЙ
Понятие о стандартах
Форматы
Рамка поля чертежа
Основная надпись чертежа
Линии чертежа
Графическая работа №1
ПРАВИЛА ОФОРМЛЕНИЯ ЧЕРТЕЖЕЙ
Цели:
•дать учащимся понятие о правилах оформления чертежа, которые
выполняются согласно принятым и действующим государственным
стандартам Единой системы конструкторской документации – ЕСКД;
•показать учащимся, какое значение имеет стандартизация, почему
необходимы стандарты ЕСКД;
•познакомить с понятиями «формат» и «основная надпись»;
•научить применять, согласно стандартам ЕСКД , линии чертежа,
которые имеют разное назначение и применение;
•воспитать у школьников понимание ответственности и чувство
необходимости профессиональной дисциплины при работе с
графической документацией;
•воспитать точность и аккуратность в построении чертежей.
Вопросы для повторения
1.Назовите чертёжные инструменты, материалы и
принадлежности, которые применяются для
выполнения чертежа.
2.Как подготовить к работе чертёжный циркуль?
Как проводят им дуги окружностей?
3.Для чего нужна рейсшина?
4.Как подготовить к работе карандаш?
5.Какие бывают карандаши по твёрдости?
6.Как правильно подготовить рабочее место для
черчения?
ПОНЯТИЕ О СТАНДАРТАХ
Для удобства выполнения и изучения технической
документации установлены общие правила по её
разработке и оформлению.
Стандарт – слово английское и в переводе означает
«образец». Образец в том смысле, какой мы вкладываем
в понятие «такой же», «одинаковый».
Стандарт ЕСКД – ЕДИНАЯ СИСТЕМА КОНСТРУКТОРСКОЙ
ДОКУМЕНТАЦИИ– это нормативный документ,
устанавливающий единые правила выполнения и
оформления конструкторских документов для всех
отраслей промышленности, строительства, транспорта и
учебных заведений, утверждённый компетентным органом
– Государственным комитетом по стандартизации.
«НОРМАЛИЗОВАННАЯ ГАЙКА»
Подходи, рабочий!
Обсудим, дай – ка,
Что это за вещь такая – гайка ?
Что гайка?
Ерунда! Малость!
А попробуй-ка
Езжай, ежели сломалась.
Без этой вещи,
Без гайки той –
Ни взад, ни вперёд,
Становись и стой!
Наконец отыскали гайку эту….
Прилаживают….
Никакой возможности нету!
Эта мала, та велика, Словом,
Не приладишь её никак.
И пошли пешком,
Как гуляки праздные.
Отчего?
Оттого, что гайки разные.
А если гайки одинаковые ввесть,
Сломалась –
Новая сейчас же есть.
И нечего долго раздумывать тут:
Бери любую –
Хоть эту, хоть ту!
И не только в гайке наше счастье.
Надо всем машинам
ОДИНАКОВЫЕ ЧАСТИ…
Мяковский Владимир Владимирович
Соблюдение государственных стандартов обязательно для
всех отраслей промышленности, проектных организаций,
научных учреждений и т. д. Во всех учебных заведениях, где
изучают инженерную графику, учебные чертежи выполняют
по изложенным в ГОСТах правилам.
Стандарт имеет буквенное и цифровое обозначение.
Далее представлена расшифровка обозначения стандарта:
ФОРМАТЫ
(ГОСТ 2.301-68*)
ФОРМАТ – чертёжный лист бумаги определённого
размера, на котором выполняются чертежи и другие
конструкторские документы.
Для выполнения учебных чертежей используют в
основном формат А4 размером 297 х 210 мм.
Формат А4 получается в результате многократного
деления формата А0, площадь которого
приблизительно равна 1м²
ФОРМАТЫ
(ГОСТ 2.301-68*)
СХЕМА ОБРАЗОВАНИЯ ФОРМАТОВ И ОБРАЗЦЫ ФОРМАТОВ
А4
297 Х 210
А2
А0
594 Х 420
1189 Х 841
А3
297 Х 420
S ~ 1м²
А1
594 Х 841
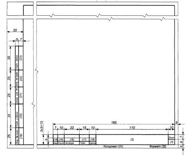
РАМКА ПОЛЯ ЧЕРТЕЖА
Каждый чертёж оформляется рамкой, которая ограничивает его поле и
проводится сверху, снизу и справа на расстоянии 5 мм от кромки листа
бумаги, а слева – 20 мм
В правом нижнем углу чертежа размещают основную надпись
РАМКА
ОСНОВНАЯ НАДПИСЬ
ОСНОВНАЯ НАДПИСЬ
(ГОСТ 2.
104-68*)
Применение основной надписи на технических чертежах
Размеры учебной школьной основной надписи
30
15
7
8
22
7
25
70
20
20
145
Образец заполненной основной надписи
Чертил
Иванов С. 10.11
Проверил Петров А.И. 13.11
Школа №2034
класс 8Б
Чертёж детали
Резина
1:1
№2
На производстве, согласно ГОСТ 2.301 – 68, листы формата А4
располагают только вертикально. В учебных общеобразовательных
заведениях их используют как вертикально, так и горизонтально .
5
ГОРИЗОНТАЛЬНОЕ РАСПОЛОЖЕНИЕ ФОРМАТА А4
20
210
РАМКА
5
ОСНОВНАЯ НАДПИСЬ
297
5
5
ВЕРТИКАЛЬНОЕ РАСПОЛОЖЕНИЕ ФОРМАТА
Рамка
20
5
5
Основная надпись
ЛИНИИ
ЧЕРТЕЖА
(ГОСТ 2.303 – 68*)
Чертёж детали выполнен
правильно
Чертёж детали выполнен
неправильно
ЛИНИИ ЧЕРТЕЖА
1. СПЛОШНАЯ ТОЛСТАЯ ОСНОВНАЯ ЛИНИЯ
2. ШТРИХОВАЯ ЛИНИЯ
3. СПЛОШНАЯ ТОНКАЯ ЛИНИЯ
4.
ШТРИХПУНКТИРНАЯ ТОНКАЯ ЛИНИЯ
5. СПЛОШНАЯ ВОЛНИСТАЯ ЛИНИЯ
ЛИНИИ ЧЕРТЕЖА (продолжение)
6. РАЗОМКНУТАЯ ЛИНИЯ
7. ШТРИХПУНКТИРНАЯ ТОНКАЯ С ДВУМЯ ТОЧКАМИ ЛИНИЯ
8. СПЛОШНАЯ ТОНКАЯ С ИЗЛОМОМ ЛИНИЯ
18. 1. ОСНОВНАЯ СПЛОШНАЯ ТОЛСТАЯ ЛИНИЯ
Толщина сплошной основной линии (S) выбирается впределах от 0,5 до 1,4 мм
Применяется для изображения видимого контура
предмета, оформления рамки поля чертежа и граф
основной надписи
ВИДИМЫЙ КОНТУР ПРЕДМЕТА
РАМКА
ОСНОВНАЯ НАДПИСЬ
2. ШТРИХОВАЯ ЛИНИЯ
Толщина линии от S/3 до S/2.
Длину штриха выбирают от 2 до 8 мм, расстояние между штрихами
от 1 до 2 мм
Применяется для изображения линий невидимого контура предмета.
ЛИНИИ НЕВИДИМОГО КОНТУРА
3. СПЛОШНАЯ ТОНКАЯ ЛИНИЯ
Толщина тонкой линии от S/3 до S/2
Применяется для нанесения выносных и размерных линий,
нанесения штриховки, проведения полок линий – выносок
ВЫНОСНЫЕ ЛИНИИ
РАЗМЕРНЫЕ ЛИНИИ
НАНЕСЕНИЕ ШТРИХОВКИ
4.
ШТРИХПУНКТИРНАЯ ТОНКАЯ ЛИНИЯ3…5
5…30
Толщина штрихпунктирной линии от S/3 до S/2
Применяется для осевых и центровых линий
ЦЕНТРОВЫЕ ЛИНИИ
ОСЕВАЯ ЛИНИЯ
5. СПЛОШНАЯ ВОЛНИСТАЯ ЛИНИЯ
Толщина волнистой линии от S/3 до S/2
Применяется для изображения линий обрыва, разграничения
вида и разреза
ЛИНИЯ РАЗГРАНИЧЕНИЯ
ВИДА И РАЗРЕЗА
ЛИНИИ ОБРЫВА
6. РАЗОМКНУТАЯ ЛИНИЯ
8…20
Толщина разомкнутой линии от S до 1,5S
Применяется для изображений места секущей плоскости
при построении сечений и разрезов
РАЗОМКНУТАЯ ЛИНИЯ
7.ШТРИХПУНКТИРНАЯ ТОНКАЯ С ДВУМЯ ТОЧКАМИ ЛИНИЯ
4…6
5…30
Толщина линии от S/3 до S/2
Применяется для изображения линий сгиба на развёртках
ЛИНИИ СГИБА
8. ЛИНИЯ СПЛОШНАЯ ТОНКАЯ С ИЗЛОМОМ
Толщина линии от S/3 до S/2
Применяется для изображения длинных линий обрыва
ДЛИННЫЕ ЛИНИИ ОБРЫВА
Ф
И
З
М
Сидите правильно!
А
Т
И
Берегите зрение!
К
Т
Т
У
Н
Домашнее задание
§§ 2.
1, 2.2, 2.3, страницы 15 – 20 в учебнике.Ответить на вопросы на стр. 20.
Выполнить задание в тетради по рис. 23.
Принести на следующий урок лист чертёжной
бумаги формата А4 для выполнения графической
работы №1 «Линии чертежа»
ГРАФИЧЕСКАЯ РАБОТА № 1 «ЛИНИИ ЧЕРТЕЖА»
Вариант 1. ГОРИЗОНТАЛЬНОЕ РАСПОЛОЖЕНИЕ ФОРМАТА
Вариант 2. ВЕРТИКАЛЬНОЕ РАСПОЛОЖЕНИЕ ФОРМАТА
English Русский Правила
Правила оформления чертежей
- Антипова Галина Антоновна, учитель информатики и черчения
Разделы: Технология, Конкурс «Презентация к уроку»
Презентация к уроку
Загрузить презентацию (2 МБ)
Цели:
- закрепить знания учащихся по теме: «Чертёжные инструменты, материалы и принадлежности и их применение»;
- дать учащимся понятие о правилах оформления чертежа, которые выполняются согласно принятым и действующим государственным стандартам Единой системы конструкторской документации – ЕСКД;
- познакомить с понятием о стандартах ЕСКД;
- познакомить с понятиями «формат» и «основная надпись»;
- научить применять согласно стандартам ЕСКД линии чертежа, которые имеют разное назначение и применение;
- развивать пространственное представление и пространственное мышление;
- воспитать точность и аккуратность в построении чертежей.

Задачи:
- Обучающая: Повторение, закрепление пройденного материала и усвоение новых знаний по данной теме.
- Развивающая: развитие пространственного воображения, логического мышления, творческого подхода к решению поставленной задачи;
- Воспитательная: воспитание у учащихся интереса к предмету, добросовестного отношения к труду и аккуратности в выполнении графических работ.
Форма (тип) урока: урок закрепления и изучение нового материала.
Оборудование и пособия:
- Для учителя: интерактивная доска, проектор, компьютер, плакаты, презентация.
- Для учащихся: учебник «Черчение», Ботвинникова А.Д. и др., чертёжные принадлежности, рабочая тетрадь, карточки-задания.
Методы, приемы проведения урока: презентация, объяснение, выполнение задания.
План урока:
- Организационный момент (1 мин.
) - Проверка домашнего задания – визуально (1 мин.)
- Сообщение темы урока, целей урока (1 мин.)
- Повторение пройденного материала – фронтальный опрос (5 мин.)
- Изучение нового материала (25 мин.)
- Физкультминутка (1 мин.)
- Закрепление пройденного материала по карточкам-заданиям (5 мин.)
- Итог урока. (3 мин.)
- Домашнее задание. (3 мин.)
(слайд 3)
IV. Повторение пройденного материала.– ответить на вопросы, определить по представленным рисункам правильно выполненный рисунок детали, (слайд 4)
Учитель: прежде чем приступить к изучению новой темы, ответьте, пожалуйста, на следующие вопросы. Ответы учащихся.
V.
Изучение нового материала.Учитель: Тема урока сегодня является продолжением изучения темы «Техника выполнения чертежей и правила их оформления». Рассмотрим и выясним, какие правила применяются при выполнении чертежа.
Каждый чертёжный документ выполняется по единым правилам – стандартам. В нашей стране приняты и действуют государственные стандарты Единой конструкторской документации – ЕСКД. Что же такое стандарт? (Слайды 5, 6)
Стандарты установлены не только на конструкторские документы, но и на отдельные виды продукции, выпускаемые нашими предприятиями. Государственные стандарты (ГОСТ) обязательны для всех предприятий и отдельных лиц.
Каждому стандарту присваивается свой номер с одновременным указанием года его регистрации.
Стандарты время от времени пересматривают. Это связано с развитием техники и совершенствованием инженерной графики. (Слайд 7)
Учитель: Чертежи выполняют на листах определённого размера.
Стандартом (ГОСТ 2.301-68*)
установлены форматы листов, которые обводят тонкой линией. В общеобразовательных учебных заведениях пользуются форматом, размеры которого 297 x 210 мм.
Его обозначают А4. (Слайды 8, 9)
Учитель: каждый чертёж оформляется рамкой, которая ограничивает его поле. (Слайд 10)
Учитель: на чертежах в правом нижнем углу располагают основную надпись. Форму, размеры и содержание её устанавливает стандарт (ГОСТ 2.104-68*). (Слайд 11)
На учебных школьных чертежах основная надпись выполняется в упрощённом виде.
(Слайд 12)
Учитель: на производстве, согласно ГОСТ 2.301 – 68, листы формата А4 располагают только вертикально. В учебных общеобразовательных заведениях их используют как вертикально, так и горизонтально. (Слайды 13, 14)
Учитель: при выполнении чертежей применяют линии различной толщины и начертания.
Каждая линия имеет своё назначение. Посмотрите на два изображения (Слайд 15). На ваш взгляд, какой из этих изображений понятнее для чтения? (Ответы учащихся).
Учитель: рассмотрим линии, которые применяются для выполнения чертежей. (Слады 16, 17)
Учитель: для того, чтобы изображение было всем понятно, государственный стандарт устанавливает начертание линий и указывает их основное назначение для всех чертежей промышленности и строительства. Рассмотрим более подробно назначение и применение этих линий.
-
СПЛОШНАЯ ТОЛСТАЯ ОСНОВНАЯ ЛИНИЯ
Толщина сплошной основной линии (S) выбирается в пределах от 0,5 до 1,4 мм
Применяется для изображения видимого контура предмета, оформления рамки поля чертежа и граф основной надписи -
ШТРИХОВАЯ ЛИНИЯ
Толщина линии от S/3 до S/2.
Длину штриха выбирают от 2 до 8 мм, расстояние между штрихами от 1 до 2 мм
Применяется для изображения линий невидимого контура предмета.
-
СПЛОШНАЯ ТОНКАЯ ЛИНИЯ
Толщина тонкой линии от S/3 до S/2
Применяется для нанесения выносных и размерных линий, нанесения штриховки, проведения полок линий – выносок -
ШТРИХПУНКТИРНАЯ ТОНКАЯ ЛИНИЯ
Толщина штрихпунктирной линии от S/3 до S/2
Применяется для осевых и центровых линий -
СПЛОШНАЯ ВОЛНИСТАЯ ЛИНИЯ
Толщина волнистой линии от S/3 до S/2
Применяется для изображения линий обрыва, разграничения вида и разреза -
РАЗОМКНУТАЯ ЛИНИЯ
Толщина разомкнутой линии от Sдо 1,5S
Применяется для изображений места секущей плоскости при построении сечений и разрезов -
ШТРИХПУНКТИРНАЯ ТОНКАЯ С ДВУМЯ ТОЧКАМИ ЛИНИЯ
Толщина линии от S/3 до S/2
Применяется для изображения линий сгиба на развёртках -
СПЛОШНАЯ ТОНКАЯ С ИЗЛОМОМ ЛИНИЯ
Толщина линии от S/3 до S/2
Применяется для изображения длинных линий обрыва
(Слайды 18, 19, 20, 21, 22, 23, 24, 25)
VI.
Физкультминутка.(Слайд 26)
VII. Закрепление пройденного материала.Учитель: весь материал урока мы прошли, давайте проверим себя, как мы его усвоили. Учитель раздаёт карточки-задания. (Приложение 1). Работа рассчитана на 5 минут.
VIII. Итог урока.Учитель визуально проверяет выполнение заданий, оценивает тех, кто хорошо работал. Окончательный результат проверки выполнения заданий будет объявлен на следующем уроке.
IX. Домашнее задание.(Слайд 27).
Учитель: запишите, пожалуйста, домашнее задание в дневниках.
Учитель: урок окончен, спасибо, до свидания.
Используемая литература:
- Учебник “Черчение” Ботвинников А.Д., и др. – М.: Астрель АСТ, 2012.
- Ройтман И.А., Владимиров Я.В. Черчение: Учебное пособие для учащихся 9-х классов образовательных учреждений – М.: ВЛАДОС, 2010.
- Учебник “Черчение” под редакцией Н.
Г. Преображенской. – М.: Вентана-Граф, 2005.
«Правила оформления чертежей» – изо, уроки
Тема: «Правила оформления чертежей»
Цели:
закрепить знания учащихся по теме: «Чертёжные инструменты, материалы и принадлежности и их применение»;
дать учащимся понятие о правилах оформления чертежа, которые выполняются согласно принятым и действующим государственным стандартам Единой системы конструкторской документации – ЕСКД;
познакомить с понятием о стандартах ЕСКД;
познакомить с понятиями «формат» и «основная надпись»;
научить применять согласно стандартам ЕСКД линии чертежа, которые имеют разное назначение и применение;
развивать пространственное представление и пространственное мышление;
воспитать точность и аккуратность в построении чертежей.
Задачи:
Обучающая: Повторение, закрепление пройденного материала и усвоение новых знаний по данной теме.
Развивающая: развитие пространственного воображения, логического мышления, творческого подхода к решению поставленной задачи;
Воспитательная: воспитание у учащихся интереса к предмету, добросовестного отношения к труду и аккуратности в выполнении графических работ.
Форма (тип) урока: урок закрепления и изучение нового материала.
Оборудование и пособия:
Для учителя: интерактивная доска, проектор, компьютер, плакаты, презентация.
Для учащихся: учебник «Черчение», и др., чертёжные принадлежности, рабочая тетрадь, карточки-задания.
Методы, приемы проведения урока: презентация, объяснение, выполнение задания.
План урока:
Организационный момент (1 мин.)
Проверка домашнего задания – визуально (1 мин.)
Сообщение темы урока, целей урока (1 мин.)
Повторение пройденного материала – фронтальный опрос (5 мин.)
Изучение нового материала (25 мин.)
Физкультминутка (1 мин.)
Закрепление пройденного материала по карточкам-заданиям (5 мин.
)
Итог урока. (3 мин.)
Домашнее задание. (3 мин.)
Ход урока
I. Организационный момент.
II. Проверка домашнего задания – визуально.
III. Сообщение темы, целей урока.
(слайд 3)
IV. Повторение пройденного материала.
– ответить на вопросы, определить по представленным рисункам правильно выполненный рисунок детали, (слайд 4)
Учитель: прежде чем приступить к изучению новой темы, ответьте, пожалуйста, на следующие вопросы.
Вопросы на повторение
1.Назовите чертёжные инструменты, материалы и принадлежности, которые применяются для выполнения чертежа.
2.Как подготовить к работе чертёжный циркуль?
Как проводят им дуги окружностей?
3.Для чего нужна рейсшина?
4.Как подготовить к работе карандаш?
5.Какие бывают карандаши по твёрдости?
6.Как правильно подготовить рабочее место для черчения?
Ответы учащихся.
V. Изучение нового материала.
Учитель: Тема урока сегодня является продолжением изучения темы «Техника выполнения чертежей и правила их оформления». Рассмотрим и выясним, какие правила применяются при выполнении чертежа.
Каждый чертёжный документ выполняется по единым правилам – стандартам. В нашей стране приняты и действуют государственные стандарты Единой конструкторской документации – ЕСКД. Что же такое стандарт? (Слайды 5, 6)
Стандарты установлены не только на конструкторские документы, но и на отдельные виды продукции, выпускаемые нашими предприятиями. Государственные стандарты (ГОСТ) обязательны для всех предприятий и отдельных лиц.
Каждому стандарту присваивается свой номер с одновременным указанием года его регистрации.
Стандарты время от времени пересматривают. Это связано с развитием техники и совершенствованием инженерной графики. (Слайд 7)
Учитель: Чертежи выполняют на листах определённого размера. Стандартом (ГОСТ 2.301-68*)
ФОРМАТ – чертёжный лист бумаги определённого
размера, на котором выполняются чертежи и другие конструкторские документы.
установлены форматы листов, которые обводят тонкой линией. В общеобразовательных учебных заведениях пользуются форматом, размеры которого 297 x 210 мм.
Его обозначают А4.
(Слайды 8, 9)
Учитель: каждый чертёж оформляется рамкой, которая ограничивает его поле. (Слайд 10)
Учитель: на чертежах в правом нижнем углу располагают основную надпись. Форму, размеры и содержание её устанавливает стандарт (ГОСТ 2.104-68*). (Слайд 11)
На учебных школьных чертежах основная надпись выполняется в упрощённом виде.
(Слайд 12)
Учитель: на производстве, согласно ГОСТ 2.301 – 68, листы формата А4 располагают только вертикально. В учебных общеобразовательных заведениях их используют как вертикально, так и горизонтально. (Слайды 13, 14)
Учитель: при выполнении чертежей применяют линии различной толщины и начертания. Каждая линия имеет своё назначение. Посмотрите на два изображения (Слайд 15). На ваш взгляд, какой из этих изображений понятнее для чтения? (Ответы учащихся).
Учитель: рассмотрим линии, которые применяются для выполнения чертежей. (Слады 16, 17)
Учитель: для того, чтобы изображение было всем понятно, государственный стандарт устанавливает начертание линий и указывает их основное назначение для всех чертежей промышленности и строительства. Рассмотрим более подробно назначение и применение этих линий.
СПЛОШНАЯ ТОЛСТАЯ ОСНОВНАЯ ЛИНИЯ
Толщина сплошной основной линии (S) выбирается в пределах от 0,5 до 1,4 мм
Применяется для изображения видимого контура предмета, оформления рамки поля чертежа и граф основной надписи
ШТРИХОВАЯ ЛИНИЯ
Толщина линии от S/3 до S/2.
Длину штриха выбирают от 2 до 8 мм, расстояние между штрихами от 1 до 2 мм
Применяется для изображения линий невидимого контура предмета.
СПЛОШНАЯ ТОНКАЯ ЛИНИЯ
Толщина тонкой линии от S/3 до S/2
Применяется для нанесения выносных и размерных линий, нанесения штриховки, проведения полок линий – выносок
ШТРИХПУНКТИРНАЯ ТОНКАЯ ЛИНИЯ
Толщина штрихпунктирной линии от S/3 до S/2
Применяется для осевых и центровых линий
СПЛОШНАЯ ВОЛНИСТАЯ ЛИНИЯ
Толщина волнистой линии от S/3 до S/2
Применяется для изображения линий обрыва, разграничения вида и разреза
РАЗОМКНУТАЯ ЛИНИЯ
Толщина разомкнутой линии от Sдо 1,5S
Применяется для изображений места секущей плоскости при построении сечений и разрезов
ШТРИХПУНКТИРНАЯ ТОНКАЯ С ДВУМЯ ТОЧКАМИ ЛИНИЯ
Толщина линии от S/3 до S/2
Применяется для изображения линий сгиба на развёртках
СПЛОШНАЯ ТОНКАЯ С ИЗЛОМОМ ЛИНИЯ
Толщина линии от S/3 до S/2
Применяется для изображения длинных линий обрыва
(Слайды 18, 19, 20, 21, 22, 23, 24, 25)
VI.
Физкультминутка.
(Слайд 26)
VII. Закрепление пройденного материала.
Учитель: весь материал урока мы прошли, давайте проверим себя, как мы его усвоили. Учитель раздаёт карточки-задания. (Приложение 1). Работа рассчитана на 5 минут.
VIII. Итог урока.
Учитель визуально проверяет выполнение заданий, оценивает тех, кто хорошо работал. Окончательный результат проверки выполнения заданий будет объявлен на следующем уроке.
IX. Домашнее задание.
(Слайд 27).
Учитель: запишите, пожалуйста, домашнее задание в дневниках.
Учитель: урок окончен, спасибо, до свидания.
6
Правила оформления чертежей презентация, доклад
ПРАВИЛА ОФОРМЛЕНИЯ ЧЕРТЕЖЕЙ
Автор проекта:
Антипова Галина Антоновна,
учитель черчения и
информатики ГБОУ СОШ № 2034, г. Москва
ПРАВИЛА ОФОРМЛЕНИЯ ЧЕРТЕЖЕЙ
Понятие о стандартах
Форматы
Линии чертежа
Рамка поля чертежа
Основная надпись чертежа
Графическая работа №1
ПРАВИЛА ОФОРМЛЕНИЯ ЧЕРТЕЖЕЙ
Цели:
дать учащимся понятие о правилах оформления чертежа, которые выполняются согласно принятым и действующим государственным стандартам Единой системы конструкторской документации – ЕСКД;
показать учащимся, какое значение имеет стандартизация, почему необходимы стандарты ЕСКД;
познакомить с понятиями «формат» и «основная надпись»;
научить применять, согласно стандартам ЕСКД , линии чертежа, которые имеют разное назначение и применение;
воспитать у школьников понимание ответственности и чувство необходимости профессиональной дисциплины при работе с графической документацией;
воспитать точность и аккуратность в построении чертежей.
Вопросы для повторения
1.Назовите чертёжные инструменты, материалы и принадлежности, которые применяются для выполнения чертежа.
2.Как подготовить к работе чертёжный циркуль?
Как проводят им дуги окружностей?
3.Для чего нужна рейсшина?
4.Как подготовить к работе карандаш?
5.Какие бывают карандаши по твёрдости?
6.Как правильно подготовить рабочее место для черчения?
ПОНЯТИЕ О СТАНДАРТАХ
Стандарт – слово английское и в переводе означает «образец». Образец в том смысле, какой мы вкладываем в понятие «такой же», «одинаковый».
Для удобства выполнения и изучения технической документации установлены общие правила по её разработке и оформлению.
Стандарт ЕСКД – ЕДИНАЯ СИСТЕМА КОНСТРУКТОРСКОЙ ДОКУМЕНТАЦИИ– это нормативный документ, устанавливающий единые правила выполнения и оформления конструкторских документов для всех отраслей промышленности, строительства, транспорта и учебных заведений, утверждённый компетентным органом – Государственным комитетом по стандартизации.
«НОРМАЛИЗОВАННАЯ ГАЙКА»
Подходи, рабочий!
Обсудим, дай – ка,
Что это за вещь такая – гайка ?
Что гайка?
Ерунда! Малость!
А попробуй-ка
Езжай, ежели сломалась.
Без этой вещи,
Без гайки той –
Ни взад, ни вперёд,
Становись и стой!
Наконец отыскали гайку эту….
Прилаживают….
Никакой возможности нету!
Эта мала, та велика, –
Словом,
Не приладишь её никак.
И пошли пешком,
Как гуляки праздные.
Отчего?
Оттого, что гайки разные.
А если гайки одинаковые ввесть,
Сломалась –
Новая сейчас же есть.
И нечего долго раздумывать тут:
Бери любую –
Хоть эту, хоть ту!
И не только в гайке наше счастье.
Надо всем машинам
ОДИНАКОВЫЕ ЧАСТИ…
Мяковский Владимир Владимирович
Соблюдение государственных стандартов обязательно для всех отраслей промышленности, проектных организаций, научных учреждений и т.
д. Во всех учебных заведениях, где изучают инженерную графику, учебные чертежи выполняют по изложенным в ГОСТах правилам.
Стандарт имеет буквенное и цифровое обозначение. Далее представлена расшифровка обозначения стандарта:
ФОРМАТЫ
ФОРМАТ – чертёжный лист бумаги определённого
размера, на котором выполняются чертежи и другие конструкторские документы.
Для выполнения учебных чертежей используют в основном формат А4 размером 297 х 210 мм.
Формат А4 получается в результате многократного деления формата А0, площадь которого приблизительно равна 1м²
(ГОСТ 2.301-68*)
СХЕМА ОБРАЗОВАНИЯ ФОРМАТОВ И ОБРАЗЦЫ ФОРМАТОВ
А 0
1189 Х 841
А 1
594 Х 841
А 2
594 Х 420
А 3
297 Х 420
А 4
297 Х 210
S ~ 1м²
ФОРМАТЫ
(ГОСТ 2.
301-68*)
Каждый чертёж оформляется рамкой, которая ограничивает его поле и проводится сверху, снизу и справа на расстоянии 5 мм от кромки листа бумаги, а слева – 20 мм
В правом нижнем углу чертежа размещают основную надпись
ОСНОВНАЯ НАДПИСЬ
РАМКА
РАМКА ПОЛЯ ЧЕРТЕЖА
ОСНОВНАЯ НАДПИСЬ
(ГОСТ 2.104-68*)
Применение основной надписи на технических чертежах
Чертил
Иванов С.
10.11
Проверил
Чертёж детали
Петров А.И.
13.11
Школа №2034 класс 8Б
Резина
1:1
№2
Образец заполненной основной надписи
Размеры учебной школьной основной надписи
На производстве, согласно ГОСТ 2.
301 – 68, листы формата А4 располагают только вертикально. В учебных общеобразовательных заведениях их используют как вертикально, так и горизонтально .
ГОРИЗОНТАЛЬНОЕ РАСПОЛОЖЕНИЕ ФОРМАТА А4
210
297
20
5
5
5
ОСНОВНАЯ НАДПИСЬ
РАМКА
ВЕРТИКАЛЬНОЕ РАСПОЛОЖЕНИЕ ФОРМАТА
Рамка
5
5
5
20
Основная надпись
ЛИНИИ ЧЕРТЕЖА
Чертёж детали выполнен правильно
Чертёж детали выполнен неправильно
(ГОСТ 2.303 – 68*)
ЛИНИИ ЧЕРТЕЖА
2. ШТРИХОВАЯ ЛИНИЯ
3. СПЛОШНАЯ ТОНКАЯ ЛИНИЯ
4. ШТРИХПУНКТИРНАЯ ТОНКАЯ ЛИНИЯ
5. СПЛОШНАЯ ВОЛНИСТАЯ ЛИНИЯ
1. СПЛОШНАЯ ТОЛСТАЯ ОСНОВНАЯ ЛИНИЯ
ЛИНИИ ЧЕРТЕЖА (продолжение)
6.
РАЗОМКНУТАЯ ЛИНИЯ
7. ШТРИХПУНКТИРНАЯ ТОНКАЯ С ДВУМЯ ТОЧКАМИ ЛИНИЯ
8. СПЛОШНАЯ ТОНКАЯ С ИЗЛОМОМ ЛИНИЯ
1. ОСНОВНАЯ СПЛОШНАЯ ТОЛСТАЯ ЛИНИЯ
Применяется для изображения видимого контура предмета, оформления рамки поля чертежа и граф основной надписи
Толщина сплошной основной линии (S) выбирается в пределах от 0,5 до 1,4 мм
ВИДИМЫЙ КОНТУР ПРЕДМЕТА
РАМКА
ОСНОВНАЯ НАДПИСЬ
2. ШТРИХОВАЯ ЛИНИЯ
Толщина линии от S/3 до S/2.
Длину штриха выбирают от 2 до 8 мм, расстояние между штрихами
от 1 до 2 мм
Применяется для изображения линий невидимого контура предмета.
ЛИНИИ НЕВИДИМОГО КОНТУРА
3. СПЛОШНАЯ ТОНКАЯ ЛИНИЯ
Толщина тонкой линии от S/3 до S/2
Применяется для нанесения выносных и размерных линий, нанесения штриховки, проведения полок линий – выносок
ВЫНОСНЫЕ ЛИНИИ
РАЗМЕРНЫЕ ЛИНИИ
НАНЕСЕНИЕ ШТРИХОВКИ
4.
ШТРИХПУНКТИРНАЯ ТОНКАЯ ЛИНИЯ
3…5
5…30
Толщина штрихпунктирной линии от S/3 до S/2
Применяется для осевых и центровых линий
ОСЕВАЯ ЛИНИЯ
ЦЕНТРОВЫЕ ЛИНИИ
5. СПЛОШНАЯ ВОЛНИСТАЯ ЛИНИЯ
Толщина волнистой линии от S/3 до S/2
Применяется для изображения линий обрыва, разграничения вида и разреза
ЛИНИИ ОБРЫВА
ЛИНИЯ РАЗГРАНИЧЕНИЯ ВИДА И РАЗРЕЗА
6. РАЗОМКНУТАЯ ЛИНИЯ
Толщина разомкнутой линии от S до 1,5S
Применяется для изображений места секущей плоскости при построении сечений и разрезов
РАЗОМКНУТАЯ ЛИНИЯ
8…20
7.ШТРИХПУНКТИРНАЯ ТОНКАЯ С ДВУМЯ ТОЧКАМИ ЛИНИЯ
Толщина линии от S/3 до S/2
Применяется для изображения линий сгиба на развёртках
ЛИНИИ СГИБА
4…6
5…30
8.
ЛИНИЯ СПЛОШНАЯ ТОНКАЯ С ИЗЛОМОМ
Толщина линии от S/3 до S/2
Применяется для изображения длинных линий обрыва
ДЛИННЫЕ ЛИНИИ ОБРЫВА
Сидите правильно!
Берегите зрение!
Ф
И
З
М
Н
И
У
Т
КТ
АТ
Домашнее задание
§§ 2.1, 2.2, 2.3, страницы 15 – 20 в учебнике.
Ответить на вопросы на стр. 20.
Выполнить задание в тетради по рис. 23.
Принести на следующий урок лист чертёжной бумаги формата А4 для выполнения графической работы №1 «Линии чертежа»
ГРАФИЧЕСКАЯ РАБОТА № 1
«ЛИНИИ ЧЕРТЕЖА»
Вариант 1. ГОРИЗОНТАЛЬНОЕ РАСПОЛОЖЕНИЕ ФОРМАТА
Вариант 2.
ВЕРТИКАЛЬНОЕ РАСПОЛОЖЕНИЕ ФОРМАТА
Правила оформления чертежей. В Масштабе. Чертежи, 3D Модели, Проекты
На данной странице собраны правила оформления добавляемых на сайт работ, файлов, твердотельных (математических) моделей и чертежей.
Чертеж — это графический конструкторский документ, содержащий геометрически точное изображение объекта разработки. К конструкторским документам относят графические (чертежи, схемы) и текстовые (спецификация, ведомости, операционные карты и т. д.) документы, которые в отдельности или в совокупности определяют состав, устройство изделия или объекта проектирования, содержат необходимые данные для его изготовления, контроля, приемки, эксплуатации или ремонта. В зависимости от назначения чертежа на нем могут быть указаны размеры, условные обозначения, технические условия, соблюдение которых должно быть обеспечено. В отличии от чертежа на бумаге, электронный чертеж выполняется с помощью специализированных программ и представляет собой набор эскизов, выполненных геометрическими объектами, которые в дальнейшем преобразуются в 3D модели, технические или строительные чертежи, схемы или другую документацию.
Электронные чертежи могут масштабироваться без потери качества изображения, так же могут быть ассоциативны с 3D моделями или визуальными видами.
Начнем с того, что сейчас мы говорим об электронных чертежах и моделях, сделанных в системах автоматизированного проектирования (САПР/CAD/CAE/CAM). Исходя из этого обозначим общие правила и термины.
1. Общие правила и термины
1.1. Нарушение авторских прав запрещено.
Нельзя выкладывать объекты интеллектуальной собственности без согласия правообладателя. Ответственность за материал несет автор выкладывающий работу.
1.2. Добавление чертежей и проектов с других сайтов запрещено.
За это будем отнимать балы и блокировать доступ. Если Вы хотите размещать файлы на разных ресурсах одновременно, Ваши контактные данные должны быть одинаковы. В случае возникновения вопросов пишите в контакты.
1.3. Формат чертежа, платформа (поле софт).
Чертежи принимаются только в форматах САПР/CAD/CAE/CAM. Растровые картинки (JPG, BMP, PNG, PDF и т.
п.) мы не принимаем. Чертежи должны быть выполнены в таких программах как КОМПАС-3D, AutoCAD, SolidWorks, ArchiCAD и т.п. При добавлении файлов необходимо указывать версию и сервиспак программы в которой они выполнены (например, КОМПАС-3D 18.1). В большинстве случаев файлы не имеют обратной совместимости, файлы 18й версии не открыть в 17й и т.д. Многие САПР системы позволяют сохранить модель в формате, предназначенном только для просмотра, мы такие файлы не принимаем.
1.4. Комплектность файлов.
Чертежи, проекты и модели имеют разновидности со своими правилами и стандартами.
- При добавлении сборочного чертежа, схемы необходимо приложить спецификацию.
- Курсовая работа должна иметь пояснительную записку, все чертежи и спецификации.
- 3D Сборка должна иметь все составные детали. Сборка должна быть оконченной и «собираться». Следите при добавлении чтобы все детали были в архиве и к ним были прописаны правильные пути.
- Запрещено разделение одного проекта (или файлов по одной теме), одним пользователем на разные работы.

1.5. Рубрика, категория, раздел.
Добавление чертежей, несоответствующих разделу запрещено. От того насколько Вы правильно укажите рубрику чертежа, зависит удобство поиска чертежей в каталоге.
1.6. Повторы.
Создание разными пользователями двух или более одинаковых чертежей в одном или различных разделах не допускается. Перед добавление чертежей убедитесь, что такого чертежа еще не было, для чего используйте поиск.
1.7. Название.
Название работы должно быть на русском языке и отражать суть содержимого работы. Вы должны понимать, что аудитория сайта разнообразна и не все понимают сокращения и специализированные термины. Нельзя создавать одинаковые названия. Используйте характеристики машин или свойства материалов для лучшего поиска файлов.
1.8. Описание.
Чертежи без описания, с плохим описанием, с описанием в 3-4 слова – не принимаются. В описании постарайтесь ответить на вопросы: что Вы добавляете на сайт, для чего оно (где используется, назначение), характеристики (площадь, климат, модель, марка, производительность, технические характеристики, габариты и т.
п.) и зачем Вы это вообще разрабатывали. Вы должны четко и понятно изложить что получит человек, который скачает Вашу работу.
1.9. Стандартные изделия.
Чертежи стандартных, библиотечных и унифицированных деталей не принимаем. Так же CAD файлы доступные на сайтах производителей. Существует много библиотек в различных САПР с этими элементами, например: болты, гайки, шестерни, электродвигатели и т.п.
1.10. Отдельные детали и фрагменты.
Отдельные детали (машин, конструкций) без сопроводительной документации не принимаем.
Фрагменты студенческих работ. Куски схем без пояснений, планировки (участков ТО, АТП, ЦРМ, СТО, автосервис, ППР, стройгенплан и т.п.) без конструкторских разработок (приспособлений, стендов, машин, узлов) и т.д. не принимаем.
1.11. Оформление текста.
Запрещено писать большими буквами (Caps Lock), коверкать слова, использовать транслит, нарушать орфографию.
1.12. Архивы.
Когда Вы упаковываете работу в архив, для того чтобы загрузить ее на сайт, убедитесь что в архив не попадут временные файлы (*.
bak, *.tmp и т.п.). Убедитесь, что в архиве нет дублирующих или лишних файлов, не относящихся к теме работы, а сборки имеют все детали. Не используйте в названиях файлов спец символы, точки, кавычки и т.д. Лучше упаковывать в ZIP.
1.13. Картинка предварительного просмотра.
На картинке предварительного просмотра должен быть скриншот Вашей работы (чертежа или 3D модели). Это должна быть Ваша картинка, а не скачанная из интернета. Если Вы поставите картинкой случайный предмет, не относящийся к работе, не удивляйтесь что модератор не станет смотреть её и просто отклонит. Фотографировать монитор не нужно. Прочитайте как сделать скриншот (от англ. screenshot снимок экрана вашего компьютера):
Первый способ. Откройте чертеж в Вашей CAD программе, нажмите файл, сохранить как JEPG. При сохранение выберите такой масштаб, чтобы картинка была не больше 3000 на 2000px. Получившуюся картинку можно обработать в графическом редакторе, обрезать лишнее.
Второй вариант. Откройте чертеж в Вашей CAD программе, нажмите на клавиатуре кнопки Alt + PrtScr.
Дальше откройте Microsoft Paint (или другой графический редактор: Photoshop, GIMP и т.п) и выполните команду “вставить” (сочетание клавиш Ctrl + V). Дальше, Файл, Сохранить как JEPG/GIF/PNG. Так же перед сохранением лучше обрезать лишнее.
2. 3D Модели
Все правила, находящиеся на странице, действительны к текущему разделу.
2.1. 3D Сборка.
3D Модель – это в большинстве случаев сборка отдельных деталей в общую модель. В архиве, который Вы добавляете на сайт, должны быть все детали, не зависимо от программного обеспечения, в котором сделана сборка. Сборка должна быть оконченной и «собираться». В дереве построения не должно быть ошибок, потерянных связей или файлов.
2.2. Визуализация.
Модели выполненные в 3ds Max, Blender не желательны и могут быть отклонены. Они предназначены для визуализации а не для производства и не являются CAD форматом. Это относится ко всем визуализациям. Файлы визуализации идут как дополнение к проекту а не как отдельный проект.
2.3. Импорт.
Очень часто попадаются модели без истории построения. Импортированные неизвестно откуда, из игр, из одного ПО в другое и т.п. Мы оставляем за собой право отклонять такие работы. Часто люди неправильно импортируют файлы, нарушают топологию, вместо тел – поверхности и наоборот. Выкладывайте файлы в исходных форматах.
2.4. Примитивы.
Простые, не сложные детали, сборки, модели или чертежи выполненные в 2-3 простые операции мы не принимаем. 3D модели с невысокой техникой исполнения, например, модель, исполненную в несколько действий “выдавливание”, которую может сделать почти каждый мы не примем на сайт. Стоит так же обратить внимание на пункт правил 1.9 и 1.10 отдельные детали и фрагменты. Могут быть исключения, если модель несет практическое применение для печати, но не добавляйте кубы, шары и прочее подобное.
3. Курсовые, дипломные, расчетные работы.
Все правила, находящиеся на странице, действительны и к текущему разделу.
3.
1. Заголовок.Заголовок должен быть таким же, как и тема работы + свойство. “Свойство” – это может быть модель машины, техническая характеристика, этажность здания, передаточное отношение редуктора, грузоподъемность крана, исходные данные и т.п. Пример: Установка по производству щебня 500тыс.т в год
3.2. Описание.
Сначала указываем университет, кафедру, предмет, название работы, год.
Дальше указываем исходные данные для выполнения данной работы.
Потом идет аннотация или реферат или введение (с описанием конструкторской разработки или предмета работы) и содержание работы (копия из пояснительной записки).
3.3. Язык.
Если язык работы отличается от русского (языка сайта), заголовок все равно пишем на русском языке.
3.4. Содержание работы.
Добавление пояснительной/расчетной записки и всех чертежей обязательно. Диплом это около 10 листов чертежей, курсовая от 2 листов чертежей, тут многое зависит от требования учебного заведения.
3.5. Типовые работы.
Если работа типовая (например: «Взаимозаменяемость, стандартизация и технические измерения», «Проектирование 9-этажного дома», «режущий инструмент» и т.п.), а разные только исходные данные, то указывать исходные данные для разработки, вариант, механизм, объект разработки или данные объекта строительства обязательно.
3.6. Технология машиностроения.
Технология изготовления, производства, ремонта – указывать исходные данные для изготовления и назначение изделия (функциональное назначение и технические характеристики детали). Тип производства, количество.
3.7. Редукторы и приводы
Редукторы и приводы это студенческие работы первых курсов по предметам детали машин, основы конструирования и т.п. Работы по большей части однотипные, поэтому уделите время на правильное оформление, чтобы их можно было различать между собой. На сайте уже представлены все основные типы редукторов и практически все возможные компоновки. Отличия не столь значительны, и они должны быть в описании работы.
По запросу «Редуктор» на сайте находится около тысячи работ. И это много. Не добавляйте дублирующие работы.
Заголовок должен содержать тип редуктора, число передач, и передаточное число. Пример: Редуктор конический одноступенчатый с вертикальным тихоходным валом u=5
В описании указываем кроме всего прочего технические характеристики редуктора и всего привода.
Картинка предварительного просмотра должна отображать сборочный чертеж редуктора. Пример.
Метки (ключевые слова) обязательно указать (разделяя запятой): Редуктор, передаточной число, количество передач, тип редуктора. Пример: Редуктор, конический, одноступенчатый, u=5
Примеры правильного оформления: пример 1, пример 2, пример 3.
3.8. Технология производства.
Технология производств, это обширное направления по таким специальностям как машины и аппараты пищевых производств, химической промышленности, строительства и строительного материаловедения, технология строительных процессов и другие.
Так вот работы, в которых есть только одна технологическая схема, или один план цеха, или другой схематический графический материал мы скорее всего не примем. В таких работах должно быть минимум два чертежа. Это может быть технологическая схема и технологическая карта, технологическая схема и план цеха, или график выполнения работ, или чертеж какого-либо аппарата или машины.
Примеры правильного оформления: пример 1, пример 2, пример 3, пример 4, пример 5.
4. Файлы предназначенные для станков с ЧПУ.
Все правила, находящиеся на странице, действительны к текущему разделу.
4.1. Контуры.
Все контуры должны быть замкнуты. Проверить это можно функцией заливка. В КОМПАС-3D есть макрос проверка замкнутости контуров в разделе сервисных инструментов. Контур должен быть сделан человеком, а не программой векторизации. Если контур состоит из множества мелких отрезков и содержит разрывы это негативно влияет на скорость и качество резки.
4.2. Форматы файлов.
Если Вы выкладываете контур, к родному CAD формату программы в которой Вы работаете добавляете формат DXF или DWG, эти форматы поддерживаются большинством станков.
Если Вы выкладываете 3D Модель, например для печати на принтере, к родному формату добавляете формат STL.
Выкладывая изделие в раздел для ЧПУ которое должно резаться на лазере или плазме к 3D модели обязательно добавляются контуры. То, что разложит модель на чертежи легко – понятно, но сделать это должны Вы.
4.3. Назначение и изготовление.
Выкладывая изделие в раздел для ЧПУ, пишите, на чем Вы изготавливали или планируете изготавливать это изделие, какой станок, какие операции (фрезерование, резка плазмой, гравер), какая толщина листовых элементов, на забывайте про описание сборки или про инструкцию по сборке.
4.4. Мангалы.
По запросу «Мангал» на сайте опубликовано более 400 работ. Это уже перебор. Если конструкция мангала не уникальная (стандартная форма), и уже имеется на сайте, а уникальна только надпись, которую Вы старательно сделали на боковой стенке: «Серега жарит», «Александр», «Toyota» или рисунок сосиски – не добавляйте его пожалуйста на сайт.
А если все-таки добавляете уникальный мангал, не забывайте указывать размеры и толщину.
4.5. Мелочевка.
Надоели брелоки, вешалки, решетки и прочие мелочи. По отдельности такие простые контуры публиковать не будем. Делайте коллекции, подборки, хотя бы по 5 мелких контуров в один архив. Называйте их например “Подборка контуров на тему (название темы)”, “Коллекция контуров такая то” и т.п. Модератор сам решит сколько рейтинга за такую подборку добавить автору.
5. Не принимаем!
Введен карантин на определенный тип работ. Это значит что, данный тип работ принимается в особом порядке. Связано это с переизбытком работ данного типа.
Список тем работ на карантине:
- ТММ работы по теории механизмов и машин (если найдете такую тему работы которой нет на сайте – добавляйте)
- Фрагменты студенческих работ. Куски схем без пояснений, планировки (участков ТО, АТП, ЦРМ, СТО, автосервис, ППР, стройгенплан и т.п.) без конструкторских разработок (приспособлений, стендов, машин, узлов) и т.
д. не принимаем. - Начертательная геометрия и инженерная графика (исключения задания с вариантами из специализированных атласов Иванов, Боголюбов и т.п.)
- Режущий инструмент (РИ), расчет фасонного резца, протяжки и т.п.
- Нормирование точности, Метрология, и другие курсовые со схематичными чертежами в один лист.
- Закрытые форматы. Многие САПР системы позволяют сохранять файлы в формате предназначенном только для просмотра. Мы такие файлы не принимаем.
- Так же мы не принимаем книги, ГОСТЫ.
6. Справочная информация.
Оформление чертежей по машиностроению основано на ЕСКД (единой системе конструкторской документации). При проверке чертежей мы не будем смотреть точное соответствие чертежа ГОСТам, но такие вещи как наличие спецификации и т.п. будут проверятся. В описании пишите, что за механизм Вы разрабатываете, для чего он предназначен, технические характеристики и коротко о принципе действия.
6.1. Виды и комплектность конструкторских документов
На основании ЕСКД ГОСТ 2.
102-68 “Виды и комплектность конструкторских документов” чертежи бывают:
| Вид документа | Определение |
|---|---|
| Чертеж детали | Документ, содержащий изображение детали и другие данные, необходимые для ее изготовления и контроля |
| Сборочный чертеж | Документ, содержащий изображение сборочной единицы и другие данные, необходимые для ее сборки (изготовления) и контроля. К сборочным чертежам также относят чертежи, по которым выполняют гидромонтаж и пневмомонтаж |
| Чертеж общего вида | Документ, определяющий конструкцию изделия, взаимодействие его составных частей и поясняющий принцип работы изделия |
| Теоретический чертеж | Документ, определяющий геометрическую форму (обводы) изделия и координаты расположения составных частей |
| Габаритный чертеж | Документ, содержащий контурное (упрощенное) изображение изделия с габаритными, установочными и присоединительными размерами |
| Электромонтажный чертеж | Документ, содержащий данные, необходимые для выполнения электрического монтажа изделия |
| Монтажный чертеж | Документ, содержащий контурное (упрощенное) изображение изделия, а также данные, необходимые для его установки (монтажа) на месте применения. К монтажным чертежам также относят чертежи фундаментов, специально разрабатываемых для установки изделия |
| Упаковочный чертеж | Документ, содержащий данные, необходимые для выполнения упаковывания изделия |
| Схема | Документ, на котором показаны в виде условных изображений или обозначений составные части изделия и связи между ними |
| Спецификация | Документ, определяющий состав сборочной единицы, комплекса или комплекта |
| Ведомость спецификаций | Документ, содержащий перечень всех спецификаций составных частей изделия с указанием их количества и входимости |
| Ведомость ссылочных документов | Документ, содержащий перечень документов, на которые имеются ссылки в конструкторских документах изделия |
| Ведомость покупных изделий | Документ, содержащий перечень покупных изделий, примененных в разрабатываемом изделии |
| Ведомость разрешения применения покупных изделий | Документ, содержащий перечень покупных изделий, разрешенных к применению в соответствии с ГОСТ 2. 124-85 |
| Ведомость держателей подлинников | Документ, содержащий перечень предприятий (организаций), на которых хранят подлинники документов, разработанных и (или) примененных для данного изделия |
| Ведомость технического предложения | Документ, содержащий перечень документов, вошедших в техническое предложение |
| Ведомость эскизного проекта | Документ, содержащий перечень документов, вошедших в эскизный проект |
| Ведомость технического проекта | Документ, содержащий перечень документов, вошедших в технический проект |
| Пояснительная записка | Документ, содержащий описание устройства и принципа действия разрабатываемого изделия, а также обоснование принятых при его разработке технических и технико-экономических решений |
| Технические условия | Документ, содержащий требования (совокупность всех показателей, норм, правил и положений) к изделию, его изготовлению, контролю, приемке и поставке, которые нецелесообразно указывать в других конструкторских документах |
| Программа и методика испытаний | Документ, содержащий технические данные, подлежащие проверке при испытании изделий, а также порядок и методы их контроля |
| Таблица | Документ, содержащий в зависимости от его назначения соответствующие данные, сведенные в таблицу |
| Расчет | Документ, содержащий расчеты параметров и величин, например, расчет размерных цепей, расчет на прочность и др.![]() |
| Эксплуатационные документы | Документы, предназначенные для использования при эксплуатации, обслуживании и ремонте изделия в процессе эксплуатации |
| Ремонтные документы | Документы, содержащие данные для проведения ремонтных работ на специализированных предприятиях |
| Инструкция | Документ, содержащий указания и правила, используемые при изготовлении изделия (сборке, регулировке, контроле, приемке и т. п.) |
6.2. Система проектной документации для строительства.
В описании работы необходимо дать характеристику объекта строительства. Сколько этажей, площадь, климатическая зона, город строительства основные характеристики конструкции. Оформление чертежей из данного раздела основано на СПДС (Система проектной документации для строительства). Марки основных комплектов рабочих чертежей. ГОСТ 21.101-97 Основные требования к проектной и рабочей документации.
| Наименование основного комплекта рабочих чертежей | Марка | Примечание |
|---|---|---|
| Технология производства | ТХ | – |
| Технологические коммуникации | ТК | При объединении рабочих чертежей всех технологических коммуникаций |
| Генеральный план и сооружения транспорта | ГТ | При объединении рабочих чертежей генерального плана и сооружений транспорта |
| Генеральный план | ГП | – |
| Архитектурные решения | АР | – |
| Интерьеры | АИ | Рабочие чертежи могут быть объединены с основным комплектом марки АР или АС |
| Конструкции железобетонные | КЖ | – |
| Конструкции деревянные | КД | – |
| Архитектурно-строительные решения | АС | При объединении рабочих чертежей архитектурных решений и строительных конструкций |
| Конструкции металлические деталировочные | КМД | – |
| Водопровод и канализация | ВК | – |
| Отопление, вентиляция и кондиционирование | ОВ | – |
| Тепломеханические решения котельных | тм | – |
| Воздухоснабжение | ВС | – |
| Пылеудаление | ПУ | – |
| Холодоснабжение | хс | – |
| Газоснабжение (внутренние устройства) | гсв | – |
| Силовое электрооборудование | эм | – |
| Электрическое освещение (внутреннее) | эо | – |
| Системы связи | СС | – |
| Радиосвязь, радиовещание и телевидение | РТ | – |
| Пожаротушение | пт | – |
| Пожарная сигнализация | ПС | – |
| Охранная и охранно-пожарная сигнализация | ОС | – |
| Гидротехнические решения | ГР | – |
Автоматизация . .. | А… | Многоточие заменяют наименованием и маркой соответствующего основного комплекта рабочих чертежей |
| Автоматизация комплексная | АК | При объединении рабочих чертежей различных технологических процессов и инженерных систем |
| Антикоррозионная защита конструкций зданий, сооружений | AЗ | – |
| Антикоррозионная защита технологических аппаратов, газоходов и трубопроводов | АЗО | – |
| Тепловая изоляция оборудования и трубопроводов | ТИ | – |
| Автомобильные дороги | АД | – |
| Железнодорожные пути | ПЖ | – |
| Сооружения транспорта | ТР | При объединении рабочих чертежей автомобильных, железных и других дорог |
| Наружные сети водоснабжения | НВ | – |
| Наружные сети канализации | НК | – |
| Наружные сети водоснабжения и канализации | НВК | При объединении рабочих чертежей наружных сетей водоснабжения и канализации |
| Тепломеханические решения тепловых сетей | ТС | – |
| Наружные газопроводы | ГСН | – |
| Наружное электроосвещение | ЭН | – |
| Электроснабжение | ЭС | – |
Примечание – При необходимости могут быть назначены дополнительные марки основных комплектов рабочих чертежей. При этом для марок применяют прописные буквы (не более трех) русского алфавита, соответствующие, как правило, начальным буквам наименований основного комплекта рабочих чертежей | ||
5 «Законов» для рисования лучших фигур — Vitruvian Fine Art Studio
Я не большой поклонник «законов» в рисунке и живописи. Из каждого правила есть исключение, поэтому кажется, что всякий раз, когда я говорю ученику, что x x «всегда верно», в конечном итоге появляется какая-то чертова причина, почему на самом деле , а не верно в конкретном рассматриваемом случае — и тогда я должен дать задний ход.
Тем не менее, принципы могут быть полезны, когда вы учитесь рисовать. Даже если x не «всегда верно», полезно знать, часто ли верно . Знание того, что мы можем ожидать увидеть и почему мы можем это увидеть, может привести к более проницательным наблюдениям и лучшим решениям во время рисования.
Хороший учитель может дать вам эти принципы. Для меня таким учителем была покойная Марта Майер Эрлебахер в Нью-Йоркской академии искусств. Ее исключительная сила как инструктора заключалась в том, что она настаивала на абсолютах. Она научила нас, что основная человеческая анатомия на самом деле не является предметом интерпретации. Важные вещи в значительной степени одинаковы от одного человека к другому, и она дала нам 5 «Законов», которые помогли нам нарисовать цифры, которые выглядели убедительно.
Эти «Законы» касаются не названий костей и мышц, а общих принципов, управляющих расположением и выражением структур на теле. Они называются «Законами», потому что они универсальны — они примерно в равной степени применимы к каждому человеку и к каждой части каждого человека. Мы можем видеть их в глобальном масштабе по всему рисунку.
Ниже приводится отчет о Законах Марты, насколько я помню.
1. Закон диагонали Каждая мышца тела пересекает как минимум один сустав.
Бицепс, например, пересекает двух суставов на руке: плечевого (длинная головка) и локтевого. На своем пути из конца в конец сама мышца ориентируется под небольшим углом относительно длинной кости плеча – плечевой кости. Бицепс начинается около внутренней руки в плече (медиальная) и проходит к внешней руки в локте (латеральная) — это на по диагонали относительно длинной оси самой руки. Это диагональное соотношение между мышечной формой и более крупной структурой, на которой она расположена, можно увидеть повсюду на теле. Ищите это.
Человеческое тело является трехмерным объектом. В зависимости от вашего угла зрения одни тома будут затмевать другие, которые, в свою очередь, затмевают третьи. Отметить особый «порядок наложения» формы и представить его с перекрытием контура — это простой способ передать трехмерность в линейном рисунке.
Наглядный пример этого можно найти на плече. Дельтовидная мышца представляет собой большую треугольную мышцу, соединяющую верхнюю часть руки с плечом.
Он перекрывает как бицепс спереди, так и трицепс сзади, оба из которых выходят из 90 004 под 90 005 дельтовидной мышцы из точек их начала на плече и лопатке соответственно.
Простую запись первенства дельтовидной мышцы в этом порядке расположения мышц можно сделать, расширив ее контур внутри силуэта руки, хотя бы на короткое расстояние, усекая контуры бицепсов и/или трицепсов. Такие простые корректировки могут превратить плоский контурный рисунок, похожий на лапшу, в цельную, трехмерную и анатомически описательную фигуру.
3. Закон выпуклостиВсе контуры тела выпуклые, т. е. изгибаются наружу . Некоторые выпуклости могут быть настолько ослаблены, что кажутся почти плоскими, но они никогда, никогда не будут зачерпывать внутрь — они никогда не будут вогнутыми .
Более того, выпуклые кривые будут определенного типа. Высшая точка или вершина кривой никогда не окажется в центре, а вместо этого будет смещена в одну или другую сторону.
Эта асимметрия является отличительной чертой траектории кривых, где скорость кривизны меняется от конца к концу. Симметричные кривые, где вершина находится в центре — представьте себе сегмент круга — называются нейтральными кривыми, и их нигде не видно на теле. Не рисуйте их.
Выступающие выпуклости на контуре редко встречаются рядом друг с другом. Вместо этого любые две полные формы, как правило, разделены более плоской «разделительной» формой, служащей своего рода «упором» на контуре. Эта идея тонко просматривается по всему рисунку. Например, две грудные мышцы груди разделены более плоской формой грудины между ними. Точно так же подвздошный гребень таза разделяет полные формы наружная косая мышца живота вверху и средняя ягодичная мышца внизу.
5. Закон «Крепкого объятия»А?
Признаюсь, я не понял этого, когда Марта впервые представила нам его, но он медленно впитывался в течение нескольких недель рисования в ее классе.
«Закон тесного объятия» относится к плотно упакованной природе формы на теле. На рисунке есть своего рода «иерархия» структуры , где большие базовые формы обеспечивают основу для других форм поверх них. Влияние этих основополагающих форм можно увидеть в вышележащих структурах, потому что то, что находится сверху, «прилегает» к тому, что находится внизу.
Нет пространства, например, между костью и мышечной формой, которая к ней прикрепляется — они плотно слиты друг с другом, как геологические пласты… или как слои сэндвича, сильно спрессованные в гриле Джорджа Формана .
На уроке анатомического рисования стало ясно, почему этот закон важен. Упражнение, которое мы часто повторяли, заключалось в том, чтобы нарисовать линию фигуры с натуры, а затем нарисовать грудную клетку и таз (а затем длинные кости конечностей) внутри цифры, ссылаясь только на наши заметки в классе и непосредственные наблюдения за моделью. Очень сложно сделать это правильно, особенно когда вы все еще пытаетесь понять, как на самом деле выглядят эти скелетные тома.
Одна из распространенных ошибок, которую совершают студенты, заключается в том, что они оставляют или слишком много места между внешним контуром фигуры и внутренней анатомической структурой. Грудная клетка, например, не «плавает» внутри грудной клетки. Грудная клетка равна грудная клетка, поверх которой плотно расположены мышечные образования, расходящиеся во все стороны. Большая яйцевидная форма грудной клетки влияет на форму туловища, потому что все мышцы, жир и кожа поверх него соответствуют его форме.
Все это плотно упаковано вместе.
Если вы оставляете пространство между скелетным объемом и внешним контуром фигуры – как это было бы уместно, скажем, при рисовании бедренной кости внутри бедра – вы должны быть готовы учесть расстояние между ними. Есть очень специфические мышечные формы, в очень специфических группах, которые заполняют это пространство вплоть до поверхности кожи. Пространство внутри контура фигуры следует рассматривать так, как бухгалтер работает в бухгалтерской книге — здесь нет «плавающих» или «пустых» сущностей.
Все должно быть учтено.
Я нашел эти 5 «законов» удивительно полезными в первые дни моего обучения рисованию фигуры. Они помогли мне лучше понять то, что я увидел на модели, и воплотить всю эту сложность в линейные рисунки, которые были простыми, но описательными и естественными.
Я тоже помню эти законы с расстояния 16 лет, ссылаясь на старые классные записи своим типичным ужасным почерком.
Если кто-то еще учился у Марты и имеет более глубокое представление о ее 5 законах, пожалуйста, дайте мне знать.
Дайте мне свое мнение в комментариях ниже.
Начните учиться сегодня!
Подпишитесь, чтобы получать наши последние материалы по электронной почте, и получите БЕСПЛАТНО Руководство по материалам для рисования — каталог материалов, которые мы используем в студии и которые можно увидеть в наших покадровых видеороликах на YouTube!
Имя
Адрес электронной почты
Мы используем это поле для обнаружения спам-ботов. Если вы заполните это, вы будете отмечены как спамер.
Работает на ConvertKitКатегории: Уроки рисования, Учебники
Каковы правила перспективы в рисовании?
Изучите основные правила этой фундаментальной художественной техники
Перспектива в рисовании — это искусство представления трехмерных объектов на двухмерной поверхности, придающее реалистичный вид нарисованным объектам с точки зрения их ширины, высоты и глубины.
.
При рисовании в перспективе мы изображаем сцену, где все объекты точно расположены по отношению друг к другу, точно соблюдая их расстояние от зрителя.
Перспектива в рисовании — это искусство изображения трехмерных объектов на двухмерной поверхности.Линейная перспектива
В том виде, в каком мы ее знаем сегодня, линейная перспектива была разработана как архитектурная техника в период итальянского Возрождения в начале 15 века художником Леоном. Баттиста Альберти и архитектор Филиппо Брунеллески. Они изобрели математически пропорциональную систему перспективы, которая стала одним из самых важных шагов в эволюции изобразительного реализма. Все крупные художники эпохи Возрождения, такие как Донателло, Мазаччо и Леонардо, экспериментировали и развивали эту технику.
Правила перспективы применимы ко всем предметам: пейзажу, городскому пейзажу, натюрморту, портретной живописи, рисунку и т. д., и хотя изучение этих правил требует изучения и применения, со временем их применение становится интуитивно понятным с практикой.
Чтобы понять перспективу, мы должны рассмотреть три основные особенности нашего зрительного восприятия:
- Объекты кажутся уменьшающимися по мере удаления от нас
- Формы, расположенные ближе к зрителю, закрывают и перекрывают объекты, находящиеся дальше
- Кажется, что параллельные линии сходятся к общей точке на расстоянии — «точке схода»
Рисующий человек должен сохранять одну и ту же точку зрения для достижения перспективы, так как от этого зависит линейная перспектива. Художникам рекомендуется не двигаться при рисовании и ограничивать масштаб объекта примерно от 60 до 80 градусов (конус зрения), поскольку более панорамные виды сложно воспроизвести в перспективе.
Линейная перспектива была разработана как архитектурная техника в эпоху итальянского ВозрожденияТочка обзора в перспективе
Точка обзора — это точка, с которой художник смотрит на сцену. Этот момент определяется при планировании композиции и может быть либо нормальным (стоя), низким (сидя на стуле или ниже), либо высоким (когда вы смотрите на сцену сверху вниз).
Точка зрения влияет на то, как вы видите вещи, а не на то, как применять правила перспективы, которые просто помогают вам реалистично представить их.
Линия горизонта в перспективе
Перспектива сцены строится на ее линии горизонта. В пейзажном рисунке или живописи можно было бы сказать, что горизонт — это линия, где небо встречается с землей или морем, но в рисовании перспективы мы предпочитаем рассматривать линию горизонта как воображаемую линию уровня глаз художника.
Объекты над линией горизонта наклонены к ней; предметы, расположенные ниже линии горизонта, наклоняются к ней. Если фигура пересекает линию горизонта, то линии будут идти как вверх, так и вниз.
Существует три типа линейной перспективы, и их различие определяется количеством точек схода на линии горизонта.
Одноточечная перспектива
Одноточечная перспектива является самой простой, так как подразумевает наличие только одной точки схода в качестве точки отсчета на чертеже.
Он используется при рисовании объектов, с которыми мы смотрим «лицом вперед», или на дороге или железнодорожном полотне, параллельные линии которых сходятся в одной точке на горизонте.
То, что мы рисуем, должно иметь некоторые стороны, параллельные горизонтальной плоскости чертежной бумаги. Это популярный метод рисования, используемый при иллюстрировании интерьеров и архитекторами.
Одноточечная перспектива используется при рисовании объектов, с которыми мы смотрим «спереди» или на дороге или железнодорожном пути. Одноточечная перспективаДвухточечная перспектива
Двухточечная перспектива используется, когда ни одна поверхность рисуемого объекта не параллельно горизонтальной плоскости чертежной бумаги.
Например, при рисовании коробки, углы которой обращены прямо к нам, параллельные стороны коробки сойдутся в двух разных точках схода на горизонте.
Двухточечная перспектива используется, когда ни одна поверхность объекта не параллельна горизонтальной плоскости чертежной бумаги Двухточечная перспективаТрехточечная перспектива
Не так часто, как в двух других случаях, трехточечная перспектива использует три набора ортогональные линии и три точки схода для рисования каждого объекта.
Он используется при рисовании зданий, видимых с высокого или низкого уровня глаз.
Атмосферная (воздушная) перспектива. изменение темных значений и светлых значений. Объекты на переднем плане, ближе к зрителю, темнее по тону, а объекты на заднем плане, дальше от зрителя, светлее по тону, часто превращаясь в силуэты.
Атмосферная перспектива основана на вариации темных и светлых значенийОбщие правила рисования (документация DriveWorks)
Общие правила рисования
В этом документе описываются различные виды правил, которые применяются к параметрам, которые можно получить из чертежей.
Правило имени файла
Правило имени файла используется для определения имени управляемого чертежа.
| Правило | Значение |
|---|---|
Создает новый чертеж с тем же именем, что и родительская сборка или деталь.![]() | |
| “УДАЛИТЬ” | Запрещает создание чертежа. |
| DWSpecificationId | Создает новый чертеж с именем исходного файла, дополненным номером спецификации. Например, “Block.slddrw” станет “Block 1.slddrw”, если он был создан первая спецификация. |
| “*” и DWSpecificationId | Создает новый чертеж, имя файла которого соответствует номеру спецификации. Например, “Block.slddrw” станет “1.slddrw”, если он был сгенерирован первой спецификацией. |
| “*” & DWSpecificationId & “*” | Создает новый узел или деталь с именем файла, заданным как исходное имя файла, с префиксом номера спецификации – например, “Block.slddrw” станет “1 Block.slddrw”, если он был сгенерирован первой спецификацией. |
Правило относительного пути
Правило относительного пути управляет папкой, в которой создается чертеж. Папка указывается относительно папки «Результаты», которая находится в той же папке, что и файл проекта.
| Правило | Значение |
|---|---|
| “” | “C:\DriveWorks Pro\Мой шкаф\Результаты\”. |
| DWSpecificationId | Если проект находится в папке “C:\DriveWorks Pro\My Cupboard\My Cupboard.driveproj” и номер спецификации равен 56, то управляемый чертеж будет создан в папке “C:\DriveWorks Pro\My Шкаф\Результаты\56\”. |
| “\\dataserver\models\cupboards” | Управляемый чертеж будет создан в \\dataserver\models\cupboards |
Правило состояния слоя
Правила состояния слоя слой.
| Правило | Значение |
|---|---|
| TRUE | Показывает слой, вы также можете использовать «Показать» (в кавычках). |
| ЛОЖЬ | Скрывает слой, вы также можете использовать «Скрыть». |
Правило состояния листа
Правила состояния листа используются для удаления или переименования листов.
| Правило | Значение |
|---|---|
| “” | Оставляет лист как есть. |
| TRUE | Лист остается как есть. |
| FALSE | Удаляет лист, также можно использовать “Удалить” (в кавычках). |
| “PDF” | Переименовывает лист в “PDF”. |
Правила числителя и знаменателя листов
Правила числителя и знаменателя листов используются для управления масштабом листа.
| Numerator Rule | Denominator Rule | Meaning |
|---|---|---|
| 1 | 2 | Scales the sheet to a ratio of 1:2 |
| 10 | 1 | Scales the sheet to a ratio 10:1 |
| IF(HeightReturn<1000,2,1) | IF(HeightReturn<1000,1,2) | 2:1, если высота равна 1500 (больше 1000), лист будет масштабирован в соотношении 1:2 |
Правило состояния представления
Правила состояния представления используются для удаления или изменения конфигурации представления.
| Правило | Значение |
|---|---|
| “” | Оставляет вид как есть. |
| TRUE | Оставляет вид как есть. |
| FALSE | Удаляет представление, можно также использовать “Удалить” (в кавычках). |
| “Красный” | Изменяет вид, чтобы показать «красную» конфигурацию модели, на которую ссылаются. |
Правила числителя и знаменателя представления
Правила числителя и знаменателя представления используются для управления масштабом представления.
| Numerator Rule | Denominator Rule | Meaning |
|---|---|---|
| 1 | 2 | Scales the view to a ratio of 1:2 |
| 10 910:1 1000) вид будет масштабирован в соотношении 2:1. Когда высота равна 1500 (больше 1000), вид будет масштабирован в соотношении 1:2 |
При управлении видами на чертеже убедитесь, что масштаб Для свойства вида в SOLIDWORKS установлено значение “ Использовать пользовательский масштаб ”
Правила просмотра слева и сверху
Правила просмотра слева и сверху используются для управления положением вида относительно нижней левой части листа.
| View Left Rule | View Top Rule | Meaning |
|---|---|---|
| 20 | 250 | Sets the left position 20 units from the left and 250 units from the bottom |
| DWVariableLeft | DWVariableTop | Устанавливает для левого положения значение, рассчитанное DWVariableLeft слева, и значение, рассчитанное единицами измерения DWVariableTop снизу Устанавливает позицию слева на 20 единиц слева, если длина меньше 2000 и на 250 единиц снизу, если высота меньше 1000 |
вид в листах и дереве видов под деревом модели. Это покажет текущие значения мастер-чертежа для позиций. Это хороший показатель для настройки позиций просмотра.
Правила структурных линий
Правила структурных линий используются для управления положением структурных линий относительно левого и правого края изображения.
Ссылка “Расстояние 1” относится к первой структурной линии слева от края вида.
Ссылка “Расстояние 2” относится ко второй структурной линии справа от края вида.
Если линия разрыва не требуется, принудительное выполнение правила с результатом «Удалить» приведет к удалению линии перехода из чертежа.
| Distance 1 Rule | Distance 2 Rule | Meaning |
|---|---|---|
| 15 | 35 | Sets the first breakline 15 document units from the left of the view, and the second breakline 35 document units from the справа от взгляда. |
| DWVariableBreakLeft | DWVariableBreakRight | Устанавливает для первой линии перехода значение, вычисленное DWVariableBreakLeft слева от представления, а для второй линии перехода — значение, вычисленное DWVariableBreakRight справа от представления. |
| IF(LengthReturn<2000,15,45) | IF(LengthReturn<2000,35,65) | Устанавливает первую линию перехода через 15 единиц документа слева, когда длина меньше 2000 и 45 единиц документа слева, если длина больше 2000. Устанавливает вторую структурную линию на 35 единиц документа справа, если длина меньше 2000, и на 65 единиц документа справа, если длина больше 2000. |
| IF( Возврат длины<2000, “Удалить” ,45) | IF(LengthReturn<2000, “Удалить” ,65) | Будет удалена первая линия разрыва, если длина меньше 2000, или будет установлено значение 45 единиц документа слева, когда Длина больше 2000. Будет удалена вторая линия перехода, если длина меньше 2000, и установлено значение 65 единиц документа справа, если длина больше 2000. Когда любое из значений линии перехода приводит к “Удалить “ оба будут удалены. |
Для более точного управления положением структурных линий мы рекомендуем создавать в модели плоскости, от которых можно определить размеры структурных линий. Захватите расстояние от плоскости и управляйте положением линии разрыва с плоскости. Установите расстояние от плоскости до структурной линии на минимальное номинальное значение.
Правило пользовательского свойства
Правила пользовательского свойства управляют текстом пользовательского свойства. Дополнительные сведения о специальных пользовательских свойствах, используемых для управления цветами, материалами и текстурами, см. в разделе Пользовательские свойства.
| Правило | Значение |
|---|---|
| CustomerReturn | В результате пользовательское свойство Customer получает значение, введенное пользователем в текстовое поле. |
DriveWork . Мы можем контролировать что угодно, от отображаемого текста до цвета детали. Здесь мы управляем цветом стула, а также описанием и названием на чертеже. | |
Краткие советы DriveWorks представляют собой серию 1-минутных видеороликов, доступных на YouTube, в которых объясняются определенные функции. |
Правило аннотаций
DriveWorks может управлять различными типами аннотаций. К ним относятся:
- Примечание
- Размерный текст
- Обозначение шероховатости поверхности
- Обозначение сварного шва
- Геометрический допуск
- Обозначение опорной точки
Для получения дополнительной информации см. ссылки «См. также» ниже.
Патентные правила розыгрыша | UpCounsel 2022
Правила оформления патентов — это требования Управления по патентам и товарным знакам США к чертежам, изображениям, технологическим схемам и диаграммам, представляемым в патентных заявках.7 min read
1. Что такое правила оформления патентов?
2. Цветные рисунки
3. Графические формы на чертежах
4. Почему важно соблюдать правила патентного рисования?
5. Рекомендации по патентным чертежам
6.
Какие виды мне нужны?
7. Прочие соображения
8. Самостоятельно или с помощью обученных специалистов
9. Распространенные ошибки
10. Действия по подаче заявки на патент с правильными патентными чертежами
Что такое правила оформления патента?
Правила оформления патента — это требования, установленные Управлением по патентам и товарным знакам США для чертежей, изображений, технологических карт и диаграмм, прилагаемых к заявке на патент. Большинство патентных заявок содержат чертежи. Фактически, для непредварительного патента должен быть предоставлен чертеж, чтобы лучше объяснить и обрисовать в общих чертах предмет, связанный с патентной заявкой. Чтобы повысить вероятность принятия заявки на патент, важно следовать правилам оформления патента, изложенным в USPTO.
Если вы хотите подать заявку на патент в Ведомство США по патентам и товарным знакам, это не так просто, как заполнить патентную заявку, заплатить пошлину и дождаться ответа. Хотя для предварительных патентов чертежи не нужны, для непредварительного патента требуется по крайней мере один рисунок, чтобы показать, как работает изобретение.
При создании чертежей соблюдайте правила, описанные в Руководстве по процедурам патентной экспертизы, например:
- Рисуйте в черно-белом режиме, если только цвет не является единственным способом показать часть изобретения.
- Используйте тушь на всех рисунках.
- Убедитесь, что рисунок соответствует масштабу, когда иллюстрация уменьшена до двух третей размера.
- Включите идентификацию над каждым чертежом, включая название изобретения, имя изобретателя и номер заявки.
- Отправьте все рисунки на белой бумаге размером 11 на 8,5 дюймов или на бумаге формата А4. Эта бумага должна:
- Быть неблестящим, гибким, без заломов и складок, прочным и белым.
- Не допускайте подчисток, изменений, перезаписей и вставок.
- Сделайте поля не менее 1 дюйма сверху и слева, 3/8 дюйма справа и 5/8 дюйма снизу.
- Включить целевые точки сканирования (перекрестия) на двух углах полей катеркорнера.

- Никогда не накладывайте один рисунок на другой.
- При необходимости используйте символы и легенду для описания изобретения.
- Избегайте сплошной черной заливки, кроме как на гистограммах или для представления цвета.
- Используйте направляющие линии, которые направляют читателя от чертежа к соответствующему символу в описании.
- Пронумеруйте каждую страницу и просматривайте по порядку арабскими цифрами.
- Избегайте отверстий в бумаге.
- Фотографии должны соответствовать тем же правилам в отношении типа, размера и полей рисунка.
Полный список можно найти в Разделе 37 Свода федеральных правил (CFR), в частности, в § 1.84. Помните, что рисунки не ограничиваются иллюстрациями и могут также включать диаграммы и схемы. В некоторых случаях фотография может работать лучше, чем рисунок. Однако Управление по патентам и товарным знакам США разрешает использовать фотографии только для патентов на полезные и промышленные образцы.
Фотографии должны быть в высоком разрешении, чтобы показать детали изобретения.
Химические соединения являются единственным типом непредварительного патента, для которого не требуются чертежи.
Цветные рисунки
Цветные рисунки редко встречаются среди заявок на патенты, и они допускаются только для патентов на дизайн и полезные модели. Если вы считаете, что цветные рисунки необходимы, вы должны подать петицию и заплатить указанную пошлину в размере 130 долларов США в соответствии с Разделом 37 (CFR) 1.17 (h) за разрешение на их использование.
Если вы отправляете петицию по почте, не забудьте приложить два комплекта цветных рисунков и одну фотокопию, на которой тот же предмет изображен в черно-белом варианте. Если вы подаете онлайн, вам понадобится только один комплект чертежей. Вам также необходимо добавить следующую формулировку в спецификацию вашего патента (письменное описание изобретения): «Файл этого патента содержит как минимум один рисунок, выполненный в цвете.
Копии этого патента с цветными рисунками будут предоставлены Соединенными Штатами. Ведомство по патентам и товарным знакам по запросу и уплате необходимой пошлины».
При создании цветных рисунков убедитесь, что качество достаточно высокое, чтобы их можно было воспроизвести в черно-белом варианте на распечатанном патенте без потери каких-либо деталей.
Графические формы на чертежах
Таблицы, формулы математического или химического характера и кривые подчиняются тем же правилам, что и любые другие типы чертежей. Формулы и кривые также имеют особые требования:
- Формулы: Каждая формула должна быть обозначена как отдельный рисунок и содержать скобки для отображения всей необходимой информации.
- Waveforms: Waveforms должны быть представлены на одном рисунке, который использует вертикальную ось и горизонтальную ось, показывающую время. Каждый отдельный сигнал должен иметь буквенное обозначение рядом с вертикальным доступом для идентификации.

Почему важно соблюдать правила оформления патентов?
Если вы не включаете патентные чертежи или не соблюдаете правила патентных чертежей, ваша заявка считается неполной. Поскольку он неполный, дата подачи будет отложена. В конечном итоге это может стоить вам патента, особенно если конкуренты пытаются запатентовать тот же тип изобретения. У фотографий и цветных рисунков есть свои правила, так что соблюдайте и их.
Соблюдение правил оформления патента также поможет патентному инспектору определить, является ли изобретение неочевидным и новым. Эти стандарты являются двумя основными препятствиями для получения патента.
Подача качественных патентных чертежей также помогает установить приоритет изобретения с более ранней датой подачи, что важно в стране, подавшей заявку первой, такой как США. Чтобы в полной мере воспользоваться более ранней датой подачи, патентная заявка должна охватывать изобретение и все его модификации, а качественные чертежи облегчают этот процесс.
Апелляционный суд Соединенных Штатов по федеральному округу часто использовал патентные чертежи, чтобы помочь определить, что квалифицированный специалист счел бы раскрытым на момент подачи заявки.
Кроме того, патентный чертеж может спасти вас, если вы что-то упустите из письменного описания. По этой причине качественный рисунок часто является нормой, а профессиональный патентный иллюстратор для создания чертежа является ценным активом.
Руководство по патентным чертежам
Процессы, машины и конструкции — три самых популярных типа патентов. Каждый из них соответствует одним и тем же общим правилам оформления патентов:
- Четко отображать элементы, включая текст и иллюстрации.
- Сохраняйте рисунок аккуратным, без следов стирания или ошибок.
- Сохраняйте удобочитаемость.
- Всегда используйте метрическую систему, так как она является предпочтительной единицей измерения во всем мире.
- Сделайте рисунок визуально привлекательным, чтобы привлечь внимание.

Хотя эти рекомендации не являются строгими правилами, их соблюдение поможет патентному инспектору лучше понять ваше изобретение. На этапе подачи заявки вам не нужно соответствовать всем требованиям формального патентного чертежа. Однако по-прежнему применяются менее технические компоненты, такие как правильный шрифт для обозначения аспектов рисунка, а также полей рисунка.
Какие представления мне нужны?
Чтобы показать, как выглядит и работает ваш продукт, используйте на чертежах несколько точек обзора. Если применимо, включите следующие виды вашего изобретения:
- Стандартные шесть видов (спереди, сзади, справа, слева, сверху и снизу). Неорнаментированные поверхности можно не использовать.
- Виды в перспективе с тремя измерениями.
- Только виды спереди и сзади плоского объекта.
- Виды в разрезе для демонстрации функции.
- Покомпонентные изображения, показывающие, как работает отдельная деталь во время работы изобретения.

Затенение — еще одна ключевая часть патентных чертежей. Он показывает глубину, контур и текстуру. Для этого можно использовать точки, линии и характерные узоры.
Стрелки и направляющие линии также важны при розыгрыше патента. Стрелки можно использовать три раза:
- На выносной линии отдельно стоящая стрелка показывает всю секцию, на которую она указывает.
- На ведущей линии стрелка, касающаяся линии, показывает поверхность, обозначенную линией.
- Чтобы показать направление движения.
Прочие соображения
Несмотря на все эти правила, есть еще соображения, о которых следует помнить. Некоторые из них включают:
- Уведомления об авторских правах или работах с масками: Их можно размещать на чертеже непосредственно под той частью, к которой они относятся. Однако они должны быть только 1/8 дюйма на 1/4 дюйма. Они должны использоваться только в случаях, применимых к закону, и должны быть включены в спецификацию.

- Нумерация листов: Чертежи должны быть пронумерованы арабскими цифрами в середине верхней части листа, но не на полях. Цифры можно переместить в правый верхний угол, если они мешают рисунку. Нумерация также должна включать две цифры, разделенные чертой, чтобы показывать страницу из общего числа страниц. Убедитесь, что цифры также больше, чем цифры, используемые для обозначения частей чертежа.
- Нумерация видов: Виды также должны быть пронумерованы последовательными арабскими цифрами, независимо от нумерации листов. В частичных представлениях также должны использоваться арабские цифры, за которыми следует заглавная буква. Цифры и буквы также должны быть четкими и не содержать скобок, кружков или кавычек. Перед этими номерами также должна стоять буква «FIG». Когда есть только один вид, “FIG” не нужен.
- Защитная маркировка: Защитная маркировка может использоваться, но должна быть в центре верхнего поля.

- Исправления: Все исправления, вносимые вместе с патентным чертежом, должны быть постоянными и долговечными.
Самостоятельно или с помощью обученных специалистов
Если вы соблюдаете патентные правила рисования, создание профессиональных схем, иллюстраций и диаграмм не так сложно, как вы думаете. Вы можете придерживаться ручки и бумаги или использовать запатентованное программное обеспечение для рисования. Варианты варьируются от бесплатного, но ограниченного программного обеспечения до дорогих универсальных программ. Качество каждого зависит от вашего умения им пользоваться.
Если у вас нет терпения рисовать, у вас нет навыков или вы не хотите создавать сложные рисунки, профессиональный патентный иллюстратор — отличный выбор. Эти высококвалифицированные специалисты сделают каждую страницу примерно от 100 до 125 долларов. Хотя это может показаться дорогим, это справедливая цена за самую важную часть вашей патентной заявки.
Распространенные ошибки
Многие изобретатели не уделяют достаточно времени и внимания своим чертежам. Это может привести к тому, что заявка на патент будет неполной, или у патентного ведомства может не хватить информации для принятия решения. Вот почему всегда важно включать столько рисунков, сколько необходимо для полного объяснения изобретения.
Другие изобретатели не хотят тратить лишние деньги на найма рисовальщика или патентного иллюстратора. Вместо этого они полагаются на свои собственные руки. Для умеренных и сильных художников это не плохая идея. Однако плохим чертежникам может быть отказано в патенте без помощи обученного эксперта.
Шаги для подачи заявки на патент с правильными патентными чертежами
После того, как вы заполнили основную заявку на патент и написали полное описание продукта, пришло время добавить чертежи. Помните, что без чертежа могут быть представлены только предварительные и химические формулы. Для всех других патентов включите как можно больше рисунков, показывающих, как работает продукт.
Если вам нужна помощь с правилами оформления патентов, вы можете опубликовать свой вопрос или проблему на торговой площадке UpCounsel. UpCounsel принимает на свой сайт только 5% лучших юристов. Юристы на UpCounsel приходят из юридических школ, таких как Гарвардский юридический и Йельский юридический, и в среднем имеют 14-летний юридический опыт, включая работу с такими компаниями, как Google, Menlo Ventures и Airbnb, или от их имени.
Draw — MTG Wiki
-
Чтобы узнать о других значениях, см. Draw (значения).
Содержимое
|
Карта взятие карты является обычной частью шага взятия карты игроком.
Это также механика, которая может привести к преимуществу по картам. [1] [2] [3] [4] [5]
Описание[]
Игрок берет карту, кладя верхнюю карту своей библиотеки в руку. Вытягивание карты также может быть сделано как часть стоимости или эффекта заклинания или способности. Если эффект перемещает карты из библиотеки игрока в руку этого игрока без использования слова «взять», значит, игрок не взял эти карты. Это имеет значение для способностей, которые срабатывают при взятии карт или заменяют взятие карт, а также если библиотека игрока пуста. Цвета цветового круга по-разному используют рисование карт. Механика первична в синем, вторична в черном и зеленом и третична в белом и красном. [6]
Правила[]
Из глоссария Всеобъемлющих правил (8 сентября 2022— Доминария Юнайтед )
- Розыгрыш
- 1. Положить верхнюю карту библиотеки игрока в руку в качестве пошагового действия или в результате эффекта, в котором используется слово «взять».
См. правило 121, «Вытягивание карты». - 2. Результат игры, в которой ни один из игроков не выиграл и не проиграл. См. правило 104.4.
Из сводных правил (8 сентября 2022 г. — Dominaria United )
- 121. Вытягивание карты
- 121.1. Игрок берет карту, кладя в руку верхнюю карту своей библиотеки. Это делается как пошаговое действие во время шага взятия карты каждым игроком. Это также может быть сделано как часть стоимости или эффекта заклинания или способности.
- 121.2. Карты можно брать только по одной. Если игроку дается указание взять несколько карт, этот игрок вытягивает столько же отдельных карт.
- 121.2a Инструкция взять несколько карт может быть изменена эффектами замены, которые относятся к количеству вытянутых карт. Эта модификация происходит перед рассмотрением любого из отдельных взятий карт. См. правило 616.1g.
- 121.2b Некоторые эффекты говорят, что игрок не может брать более одной карты за ход.
Такой эффект распространяется на отдельные розыгрыши карт. Инструкции по взятию нескольких карт могут быть частично выполнены. Однако, если эффект предлагает игроку выбрать несколько карт, затронутый игрок не может этого сделать. Точно так же игрок не может заплатить стоимость, включающую взятие нескольких карт. - 121.2c Если более чем одному игроку дано указание взять карты, активный игрок выполняет все свои взятия карт первым, затем каждый другой игрок в порядке очереди делает то же самое.
- 121.2d Если более чем одному игроку поручено брать карты в игре, в которой используется опция общего командного хода (например, в игре «Двухголовый гигант»), сначала каждый игрок активной команды в любом порядке, который нравится этой команде. , выполняет свои ничьи, то каждый игрок каждой неактивной команды в порядке очереди делает то же самое.
- 121.3. Если в библиотеке игрока нет карт, а эффект предлагает этому игроку взять карту, этот игрок может сделать это.
Однако, если эффект говорит, что игрок не может брать карты, а другой эффект предлагает этому игроку выбор взять карту, этот игрок не может этого сделать.- 121.3a Те же принципы применяются, если игрок, делающий выбор, не является игроком, который должен взять карту. Если у последнего игрока нет карт в библиотеке, выбор может быть сделан. Если эффект говорит, что последний игрок не может взять карту, выбор не может быть сделан.
- 121.4. Игрок, пытающийся взять карту из библиотеки, в которой нет карт, проигрывает в следующий раз, когда игрок должен получить приоритет. (Это действие зависит от состояния. См. правило 704.)
- 121.5. Если эффект перемещает карты из библиотеки игрока в руку этого игрока без использования слова «взять», значит, игрок не брал эти карты. Это имеет значение для способностей, срабатывающих при взятии карт, и эффектов, заменяющих взятие карт, а также в случае, если библиотека игрока пуста.
- 121.
6. Некоторые эффекты заменяют взятие карт.- 121.6a Эффект, заменяющий взятие карты, применяется, даже если карты не могут быть взяты из-за отсутствия карт в библиотеке затронутого игрока.
- 121.6b Если эффект заменяет взятие карты в последовательности взятий карт, эффект замены завершается до возобновления последовательности.
- 121.6c Некоторые эффекты выполняют дополнительные действия с картой после ее взятия. Если вытягивание заменяется, дополнительное действие не выполняется ни на каких картах, вытянутых в результате этого эффекта замещения или любых последующих эффектов замещения.
- 121.7. Некоторые эффекты замены и эффекты предотвращения приводят к взятию одной или нескольких карт. В таком случае, если есть какие-либо части исходного события, которые не были заменены, эти части происходят первыми, а затем вытягивание карт происходит по одному.
- 121.8. Если заклинание или способность вызывают взятие карты во время розыгрыша другого заклинания, вытянутая карта остается лицевой стороной вниз до тех пор, пока это заклинание не будет разыграно (см.
правило 601.2i) или пока процесс розыгрыша не будет обратным (см. правило 727, « Обработка незаконных действий»). То же самое верно и в отношении другой активируемой способности. Если эффект позволяет или предписывает игроку раскрыть карту во время ее взятия, она раскрывается после того, как заклинание будет разыграно или способность активирована. Вытянутая карта, лежащая лицом вниз, считается не имеющей характеристик и не может быть использована для оплаты какой-либо части стоимости заклинания или способности, которые требуют от карты определенных характеристик. - 121.9. Если эффект дает игроку возможность показать карту, когда он ее берет, этот игрок может посмотреть эту карту, когда берет ее, прежде чем решать, показывать ли ее.
По цвету[]
Все цвета[]
- Заговоры : возьмите карту при розыгрыше малого заклинания или срабатывающей способности перманента.
- Езда на велосипеде : сброс карты для взятия или поиска карты
Синий[]
Синий лучше всего подходит для розыгрыша карт.
В нем больше всего и никаких ограничений. [6] Рука и библиотека — это метафора знания (первое — это то, о чем вы сейчас думаете, а второе — все, что вы знаете), поэтому вытягивание карт идеально подходит для синего цвета.
- Колдовство : Синий получает лучшие колдовские заклинания. [7]
- Обычный розыгрыш карт : возьмите некоторое количество карт из вашей библиотеки и положите их в руку.
- Фильтрация карт : возьмите несколько карт, но вы не можете оставить их все. Остальные карты отправляются на кладбище или кладутся на верх или низ библиотеки.
- Мародерство : возьмите одну или несколько карт, а затем сбросьте число, равное тому, что вы вытянули. Мародерство почти всегда идет на кладбище.
- Любопытство : возьмите карту, когда существо наносит боевые повреждения другому игроку.
- Репетиторство : найдите в своей библиотеке определенную карту.
- Восстановление : верните карту из вашего кладбища в вашу руку.
В синем это обычно возвращает вам мгновенные заклинания, а иногда и волшебство.
Зеленый[]
Цвет со следующим наибольшим доступом к взятию карт — зеленый. Грин использует розыгрыш карт как метафору роста. Вытягивание карт Грина связано с существами. [6] Популярность формата «Командир» заставила разработчиков и разработчиков серьезно переосмыслить то, как каждый цвет вытягивает карты (поскольку в этом формате поток карт даже важнее). Они немного сократили количество зеленых карт (это все еще второстепенно, но в большей степени отражает стиль игры зеленых и больше не привязано к землям, просто к существам). [7]
- Заговоры: хотя все цвета могут иметь заклинания существ, это больше делается в зеленом цвете, особенно для более крупных существ. [7]
- Обычный розыгрыш : Большая часть розыгрыша зеленой карты напрямую связана с одним или несколькими существами. Заклинания зеленой вытягивания часто принимают форму условного вытягивания карт , т.
е. «Возьмите карту для каждого …» или «Возьмите карты, равные …». - Любопытство : зеленый цвет является второстепенным в этой способности.
- Обучение : кроме земель (см. ниже), зеленые наставники только для карт существ.
- Повторное выращивание : зеленый является основным в способности вернуть любой тип карты с кладбища.
- Получение земли : зеленый цвет может рисовать определенные земли.
Черный[]
Черный занимает третье место в розыгрыше карт. Это всегда связано с некоторыми затратами. [6] Черный цвет черных карт напоминает жадность или кровопролитие, а обучение черным цветом — демоническое знание.
- Обычное взятие карт : взятие черных карт всегда требует дополнительных затрат (оплата жизни, жертва).
- Обучение : черный, наряду с синим, является цветом, который может обучать любую карту из библиотеки.
- Восстановление : черный имеет возможность класть карты существ со своего кладбища в свою руку или на поле битвы ( Оживление ).

Красный[]
Красный — номер четыре в розыгрыше карт, он мало что делает. R&D сделал сознательный выбор, чтобы ограничить прямое рисование красного цвета на пустой руке. [8] Красные карты, связанные с добором карт, обычно имеют привкус судьбы или случайности. Красный не получает никакого преимущества по картам, за тремя исключениями — импульсивное вытягивание, перекатывание и эффекты наказания. [6] [7]
- Добыча : красный имеет свою форму мародерства, то, что R&D называет «красным грабежом», а многие игроки называют обшариванием , когда он сбрасывает до того, как возьмет. Большинство карт зависит от сброса карт, хотя некоторые более мощные заклинания позволяют получить преимущество по необработанным картам, если у них нет рук. Заклинания, которые начинаются с того, что один или несколько игроков сбрасывают свою руку, а затем берут несколько карт, почти всегда являются областью красного цвета.
- Эффекты колеса : эти эффекты заставляют каждого игрока сбрасывать свою руку и брать совершенно новую, чаще всего либо три карты, семь карт, либо карты, равные количеству сброшенных карт.

- Отрастание : красный иногда может отрастать волшебство. У некоторых заклинаний прямого урона есть условия, по которым игрок может вернуть их с кладбища. Во-вторых, некоторые наборы артефактов имеют красный цвет, возвращающий их с кладбища. В-третьих, у красного есть фениксы, которые могут вернуться сами.
- Импульсивный розыгрыш : красный изгоняет карты с верха библиотеки, чтобы разыграть их на этот ход. [6] [9] Неразыгранные карты остаются потерянными в изгнании. R&D иногда называет это «способностью Элкина», имея в виду Бутылку Элкина. [10] Есть несколько вариантов этого:
- Игрок может получить доступ до конца своего следующего хода (с возможностью одного разворота и двух выпадений с земли) до своего следующего завершающего шага (с возможностью одного разворота, если он выполняется с мгновенной скоростью, и одного выпадения с земли), или до тех пор, пока определенный перманент не будет удаленный. [7]
- Игрок может выбрать несколько, или игрок может только разыграть их (т.
е. не может разыгрывать никакие открытые земли). - Игрок может изгнать карты из библиотеки противника и смыть заклинание маной.
- Каратель эффекты: заклинания, заставляющие противника решать, как наказать себя. Для карателей разрешены различные разрывы или изгибы цвета, и поэтому они могут иметь форму разрешения заклинателю брать карты.
Белый[]
Существует очень мало монобелых заклинаний розыгрыша. Раньше он был сосредоточен на использовании определенной стратегии. [6] С 2020 года отдел исследований и разработок работал над тем, чтобы дать белым больше карт, чтобы помочь решить их проблемы в «Командире». [11] Несмотря на то, что белые по-прежнему занимают третье место в вытягивании карт, отдел исследований и разработок добавил некоторые новые возможности для вытягивания карт белыми. Большое ограничение заключается в том, что белые имеют тенденцию вытягивать карты со временем, а не все сразу, поэтому у них есть ограничение на вытягивание карт один раз за ход (многопользовательская игра позволяет белым иногда вытягивать несколько карт, привязанных к тому, сколько противников есть у игрока) .
[7]
- Обучение : иногда белые могут обучать чарам и реже артефактам, обычно Снаряжению.
- Выращивание : белые могут вернуть артефакты и чары с кладбища. Он также может реанимировать мелких существ.
- Симметричная ничья : белым разрешено давать карточную ничью (до трех карт) игроку и противнику. [12] В настоящее время основано только на колдовстве, но будет и дальше. [11]
- Механизмы колдовства : у белых есть много перманентов, которые превращают определенное подмножество карт в колдовство, как часть вознаграждения за определенный фокус. Белые получают лучшие колдовства на меньших существах. [7]
- Дро-установка правил : Поскольку белые могут устанавливать правила, если противник нарушает эти правила, вы можете взять карту (например, Мангара, Дипломат). [11]
Примеры[]
Пример
Возможность
Мгновенно
Целевой игрок берет четыре карты.
Ссылки []
- ↑ Марк Роузуотер (17 марта 2003 г.). «Опасность, Уилл Робинсон». magicthegathering.com . Волшебники побережья.
- ↑ Бен Блейвайс (21 марта 2003 г.). «50 лучших карт для розыгрыша карт» . magicthegathering.com . Волшебники побережья.
- ↑ Марк Роузуотер (26 марта 2012 г.). «Точка / контрапункт: целевое взятие карт?». magicthegathering.com . Волшебники побережья.
- ↑ Зак Хилл (30 марта 2012 г.). «Точка / контрапункт: целевое взятие карт?». magicthegathering.com . Волшебники побережья.
- ↑ Марк Роузуотер (14 октября 2013 г.). «Привлечение внимания». magicthegathering.com . Волшебники побережья.
- ↑ a b c d e f g Марк Роузуотер (5 июня 2017 г.
). «Механический цветной пирог 2017». magicthegathering.com . Волшебники побережья. - ↑ a b c d e f г Марк Роузуотер (18 октября 2021 г.). «Изменения механического цветового пирога 2021» . magicthegathering.com . Волшебники побережья.
- ↑ Марк Роузуотер (17 декабря 2018 г.). «Rix Maadi Reveler — красная карта с перебором, которая позволяет вытянуть карту на пустую руку». Блогатог . Тамблер.
- ↑ Марк Роузуотер (7 ноября 2016 г.). «Еще несколько слов о НИОКР». magicthegathering.com . Волшебники побережья. 901:60 ↑ Марк Роузуотер (28 июля 2017 г.). «Значит, способность «Бутылка Элкина» только сейчас стала красной, верно?». Блогатог . Тамблер.
- ↑ a b c Белые получают Flash Now!? Вот что ждет белых! (Видео).
Доброе волшебное утро . YouTube (17 февраля 2021 г.). - ↑ Марк Роузуотер (28 ноября 2020 г.). «Как работает белая симметричная ничья? Что она может и чего не может?». Блогатог . Тамблер.
Ничья в шахматах – Условия игры в шахматы
Ничья – важная часть шахмат. От спасения вас от проигрышной позиции до обеспечения первого места в турнире, каждый игрок должен понимать, как происходит ничья. Вот все, что вам нужно знать о ничьих в шахматах:
- Что такое ничья в шахматах?
- Типы розыгрыша
- Пат
- Мертвая позиция
- Взаимное соглашение
- Тройное повторение
- Правило 50 ходов
- Заключение
- Видео урок
Что такое ничья в шахматах?
В шахматах ничья происходит, когда ни один из игроков не выигрывает и не проигрывает — игра заканчивается вничью. Любой из двух игроков может потребовать ничью, и после ничьей каждый игрок получает пол-очка.
Розыгрыши чаще встречаются среди игроков с более высоким рейтингом, но даже если вы еще новичок или игрок среднего уровня, вы должны знать все правила розыгрыша, чтобы никто не застал вас врасплох.
Типы ничьей
Согласно правилам ФИДЕ существует пять различных сценариев, при которых игра может закончиться вничью. В большинстве случаев один игрок должен предложить или объявить ничью, но в некоторых конкретных ситуациях арбитр может принять решение об окончании игры и объявить ничью.
Пат
Ничья из-за пата происходит, когда у игрока, которому нужно сделать ход, нет разрешенных ходов, а его король не находится под шахом (иначе это был бы мат!). Для возникновения патовой ситуации ход, создавший позицию, должен быть законным.
Вот пример патовой позиции:
Белый ферзь отбирает все поля у черного короля. Поскольку у черных не осталось разрешенных ходов, игра заканчивается ничьей патом. Иногда гроссмейстеры находят творческие способы избежать проигрыша, используя правило пата.
Вы можете увидеть один пример этого на диаграмме ниже! В следующей партии легендарный гроссмейстер Гарри Каспаров, играя черными, нашел способ сыграть вничью с гроссмейстером Анатолием Карповым, воспользовавшись правилом пата.
Мертвая позиция
Мертвая позиция возникает, когда ни один из игроков не может законно поставить мат королю противника. Если игра доходит до этой ситуации и ход, создавший позицию, является допустимым, игра заканчивается вничью.
Посмотрите на этот пример мертвой позиции:
В этой позиции оба короля отрезаны от другой стороны доски и все пешки заблокированы. Невозможно добиться какого-либо прогрессаОдин из наиболее распространенных случаев мертвой позиции — это когда у одного из игроков недостаточно материала, чтобы поставить мат противнику. Этот тип ничьей может произойти, даже когда у одного из игроков заканчивается время, при условии, что у другого игрока недостаточно материала, чтобы поставить мат.
Вот комбинации фигур, которые приводят к ничьей из-за недостатка материала:
- Король против короля
- Король и слон против короля
- Король и конь против короля
- Король и слон против короля и слона того же цвета, что и слон противника
Как видите, это правило очень щедро относится к типам матов, которые могут быть достигнуты игроками.
Как правило, вы не смогли бы поставить мат противнику, если бы у вас были только король и слон. Однако, если у вашего противника есть другие фигуры на доске и он допускает зевки, его король может оказаться в ловушке и получить мат, как вы можете видеть в следующей позиции:
Это правило привело к тому, что арбитры присудили гроссмейстеру Магнусу Карлсену победу и звание чемпиона мира по блицу 2019 года. Некоторые утверждают, что партия должна была закончиться вничью, поскольку у Карлсена была только фигура, которую нужно было защищать. Но если гроссмейстер Алиреза Фируджа играл ужасно, он все равно мог получить мат от Карлсена, как показывает следующий пример:
Взаимное соглашение
Если по какой-либо причине оба игрока соглашаются на ничью, игра немедленно заканчивается, и оба получают пол-очка. Для такого типа ничьей один из игроков должен предложить ничью, а другой игрок должен ее принять.
Если другой игрок отказывается от предложения или продолжает играть, игра не считается равной.
В этой партии Карлсена и МГ Фабиано Каруаны в последнем контрольном раунде чемпионата мира по шахматам в 2018 году они оба согласились на ничью. Эта ничья привела к тай-брейку в матче и вызвала споры, потому что многие люди думали, что у Карлсена были хорошие шансы на победу с большим количеством времени на часах.
Трехкратное повторение
Игрок может запросить ничью, когда позиция достигнута (или вот-вот будет достигнута) не менее трех раз в одной игре. Это повторение возможно только тогда, когда все фигуры одного размера и цвета занимают те же клетки, что и раньше, и все возможные ходы также одинаковы. В результате, если взятие на проходе ранее было вариантом, который больше недоступен, эта позиция не считается повторением.
Когда происходит троекратное повторение, игра не обязательно должна заканчиваться немедленно. Игра заканчивается ничьей только в том случае, если игрок, сделавший ход, запрашивает ничью.
Чаще всего троекратное повторение происходит, когда игрок проигрывает и находит вечный шах, чтобы спасти свою игру.
Белые проигрывают, но все еще могут избежать поражения, сыграв вничью с вечным шахом.Правило 50 ходов
Если оба игрока делают 50 ходов подряд, не захватив ни одной фигуры и не переместив ни одной пешки, любой игрок может потребовать ничью, если настала его очередь играть. Это правило существует для того, чтобы игры не затягивались слишком долго, когда ни один из игроков не добился никакого прогресса.
Чтобы эффективно использовать этот вид ничьей, вам нужно изучить основные схемы матования. Нет ничего хуже, чем иметь достаточно фигур, чтобы поставить мат одинокому королю соперника, но быть не в состоянии сделать это.
Заключение
Шахматная партия может закончиться ничьей по многим причинам. Если вы хотите совершенствоваться в шахматах, знайте, как использовать правила, когда вы проигрываете, и предотвращать их использование против вас, когда вы выигрываете.


)
Г. Преображенской. – М.: Вентана-Граф, 2005.
д. не принимаем.
К монтажным чертежам также относят чертежи фундаментов, специально разрабатываемых для установки изделия
124-85
..
При этом для марок применяют прописные буквы (не более трех) русского алфавита, соответствующие, как правило, начальным буквам наименований основного комплекта рабочих чертежей
Устанавливает вторую структурную линию на 35 единиц документа справа, если длина меньше 2000, и на 65 единиц документа справа, если длина больше 2000.
View all Quick Tips




