Как правильно выполнять надписи на чертежах
Еще в школе каждому приходилось писать чертежным шрифтом. К главным недостаткам при выполнении надписей обычно относятся следующие:
- rn
- смесь прописного и строчного шрифтов; rn
- не совсем правильная конструкция (начертание) букв; rn
- потеря наклона при письме отдельных букв; rn
- неровность обводки букв и цифр. rn
Устранить отмеченные недостатки можно путем дополнительного изучения материала и приобретения навыков уверенного и четкого письма. ГОСТ 2.304—68 «Шрифты чертежные» устанавливает чертежные шрифты, которые наносятся от руки на чертежи и другие технические документы всех отраслей промышленности и строительства. Стандарт устанавливает следующие размеры шрифтов: 2,5; 3,5; 5; 7; 10; 14; 20; 28; 40. Размеры шрифтов определяются высотой h прописных букв в миллиметрах.
Надписи могут составляться из одних прописных, букв; первая буква в этом случае должна иметь ту же высоту, что и остальные. Исключение из последнего правила допускается при оформлении строительной документации. Более мелкие надписи рекомендуется составлять из строчных букв; при этом первая буква в начале предложения пишется как прописная, но без утолщения обводки. Допускается писать ее такой же ширины, какую имеют строчные буквы. Цифры, встречающиеся в тексте, должны иметь высоту прописных букв (рис. 1). Размеры букв и цифр, толщину их линий, расстояния между буквами, словами и строками следует брать из табл. 3, в которой h обозначает высоту прописных букв и цифр.
rn
Размеры букв и цифр
rn
TBegin–>
TEnd–>
rn
rn
TBegin–>
TEnd–>
rnrn
Рис. 1. Основной шрифт
rnrn
Нижние и боковые отростки букв Д, Ц, Щ, Ъ, цифры 4 и верхний знак буквы Й должны выполняться за счет промежутков между строками и буквами. Наклон букв к основанию строки должен быть около 75°; такой наклон при работе с обыкновенной или «плавающей» рейсшиной достигают прикладыванием к ней угольников с углами 45 и 30° (рис. 2), а при работе с механической рейсшиной — путем поворота головки на угол 75°. При кажущемся увеличении промежутков между некоторыми прописными буквами эти промежутки следует уменьшать до размера, равного толщине линий букв и цифр. Уменьшать промежутки следует при сочетании букв, имеющих неполный по ширине низ или верх: Г и А, Р и А, Т и А, Г и Л и т. п. Этим указанием можно пользоваться также при сочетании прописных букв со строчными, например в словах: Телефон, Рама, Гайка (рис. 2).
rn
TBegin–>TEnd–>
rn
Рис. 2. Сближение некоторых букв
polynsky.com.kg
Правильный порядок выполнения чертежей
Правила для выполнения чертежей в правильной последовательности.
Для начала необходимо нанести осевые и центровые линии на чертеже, затем нанести основные изображения. После нанесения основных изображений выполняют конструктивные детали чертежа (пазы, разрезы, отверстия и т.д.). Чтобы не возникало трудностей при исправлении чертежа, необходимо выполнять все линии тонкими. Сделать линии нужной толщины (как гласит ГОСТ 2.303 1968 года) можно будет после окончательной проверки верности всего чертежа. Нанося надписи необходимо руководствоваться государственным стандартом 2.304 1981 года.
После того, как чертеж выполнен, необходимо удалить все вспомогательные линии. Затем осуществляется простановка размеров, выполнение надписей. Обводку линий начинают с окружностей и дуг, затем горизонтальные линии, вертикальные, и наконец заполняется основная надпись.
Последовательность выполнения чертежа
1. Выбрать главное изображение, определить его содержание и расположение на чертеже.
3. Определить масштаб всех изображений, формат чертежа, оформление чертежа.
4. Выбрать размеры, которые будут нанесены на чертеже.
5. Ориентировочно определить шероховатость поверхностей детали, составить и нанести обозначения шероховатости на чертеже.
6. Выбрать материал детали, заполнить основную надпись на чертеже.
Комментарии к статье Правильная последовательность выполнения чертежа
techliter.ru
Правильный чертеж дома. Как сделать чертеж дома своими руками пошаговая инструкция
Основная цель: изучить проекты домов доступные в интернете и наиболее подходящие идеи, которые совпадут с моими критериями, обработать и нанести на план дома. Для создания плана дома своими руками были выделены основные направления разработки – количество этажей, наличие подвала, наличие мансардного этажа, форма кровли крыши, наличие камина, водоснабжение канализация, схема электропроводки.
В первую очередь для определения с проектом дома я выделил два аспекта – визуализация того что хотелось бы увидеть и техническую сторону. Я очень плотно засел за изучение готовых проектов(выбирал красивые дома), но очень скоро понял, что я хочу создать свое, индивидуальное и по возможности соизмеримое с моими финансовыми возможностями. Для того чтобы нарисовать проект дома меня полностью устроило приложение Visio от Microsoft, очень простое в использовании и достаточным функционалом для отображения технической стороны проекта. Для визуализации был выбран ArCon “Визуальная Архитектура” – проста и удобна в освоении и использовании. Очень быстро можно создать проект не только дома а и всего участка, визуализировать все это в трехмерном формате и в реальном времени путешествовать внутри и снаружи помещений. Все материалы данной статьи (проекты, чертежи, рисунки) можно назвать эскизами которые максимально просты по части детализации, для упрощения понимания самой сути индивидуального проекта дома.
План дома. Проект первого этажа дома.
Первое с чем необходимо определиться – это проект первого этажа, учитывая большое количество факторов: габариты строения, которые позволяет нам сам земельный участок и наши финансовые возможности, материал из которого мы собираемся строить(толщина стен), количество и тип помещений которые удовлетворят наши потребности, размеры помещений которые повлияют на возможные типы перекрытий между этажами, где то лестницу придумать необходимо чтоб вписалась в интерьер, вход в небольшой подвальчик он же винный погребок и.т.д.
Планируется построить дом из газобетона с толщиной стен 30 см. Предполагаемые размеры моего дома получились 850х830 см. а планировка дома следующей: кухня – прихожая 13-14 кв.м., спальня около 11кв.м., зал около 20 кв.м., санузел (ванная) совмещенная до 4 кв.м., поместилась лестница на второй этаж. Таким образом первый этаж можно сравнить с небольшой двухкомнатной квартирой, но с дополнительными 2-мя гостевыми комнатами на втором мансардном этаже. Под лестницей предполагается вход в погребок до 5 кв.метров. Мечта о камине размещена в зале и в будущем планируется как альтернативный источник отопления всего дома, для чего будет выполнена разводка воздуховодов по всем комнатам.

Нарисовать остальной план дома можно только после того как мы окончательно определимся с планировкой первого этажа. После определения с проектом первого этажа можно приступить к одной из самых важных составляющих дома – проекту фундамента.
Расчет фундамента дома. Фундамент ленточный. Фундаменты мелкого заложения.
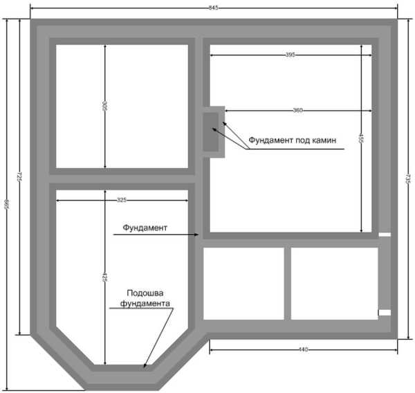
О проектировании и строительстве моего монолитного ленточного фундамента своими руками читаем в данной статье. Монолитный фундамент ленточный выбран мной как достаточно надежный и простой в самостоятельном изготовлении без применения строительной техники. Фундамент ленточный – это железобетонная конструкция ниже уровня земли, которая расположена под всеми внутренними и наружными стенами дома и имеет одинаковое поперечное сечение по всему периметру(я правда отошел от этого правила и сделал фундамент под внутренние стены немного тоньше). Так как уровень грунтовых вод на моем участке находится на глубине 2-х метров, то я рассматриваю только фундаменты мелкого заложения, к слову стоимость его исполнения достаточно низка. Пока правда я не знаю как фундаменты мелкого заложения совместимы с моей идеей изготовления небольшого винного погребка – но надеюсь на моем форуме появится пользователь который смог реализовать такую идею при строительстве своего дома а возможно и реализовать цокольный этаж. В связи со спецификой грунтов и глубиной промерзания (80-90см в Киевском регионе) на моем земельном участке выбранная форма фундамента выглядит в виде перевернутой буквы Т, поэтому как пример расчета фундамента дома я отобразил разрез (с отображением закладки арматурного каркаса) и вид с верху – который поможет определиться со структурой и автоматически с размерами разрабатываемых под фундамент траншей, которые будут равны ширине подошвы фундамента. Ниже изображено армирование фундамента и конструкция фундамента в разрезе.

Армирование фундамента
Основное армирование фундамента необходимо выполнить в нижней части (подошва) и в верхней части цоколя – тем самым мы избежим трещин на стенах дома при работе ленточного фундамента на излом. Один из факторов выбора, где подушка под фундамент является расширенной, было желание свести к минимуму влияние свойства грунтов на просадку и влияния морозного пучения грунтов. Расчет фундамента дома достаточно подробно изложен на просторах интернета, поэтому не буду зацикливаться на технических нюансах в рамках этой статьи, скажу только одно ширина подошвы фундамента в моем случае завышена примерно в 1,5 раза. На разрезе фундамента видно принцип закладки арматурного каркаса, но необходимо учитывать, что расстояние расположения арматуры до бетонной поверхности будет приблизительно на уровне не более двух диаметров закладываемой арматуры. Так выглядит мой ленточный фундамент вид с верху.

На плане фундамента вид с верху изображена подушка фундамента ширина которой равна ширине разрабатываемых траншей, что позволит залить фундамент (подушку) непосредственно в грунт, а уже затем выставить опалубку и залить фундамент – верхнюю часть с цоколем. При заливке фундамента необходимо учесть закладку гильз под ввод электрокабеля и водоснабжение канализацию. При проекте фундамента вид с верху я не показывал армирование фундамента дабы не загромождать план.
План дома. Монолитное перекрытие и Деревянное перекрытие – расчет перекрытия.
Между первым и мансардным эпатажем будет применено комбинированное частично монолитное перекрытие а частично деревянное перекрытие (перекрытие по деревянным балкам 100х200 мм.). Монолитное перекрытие я планирую применить там где будет санузел и балкон над эркером с целью борьбы с влагой. Деревянное перекрытие(балочное перекрытие) будет выполнено в остальной части дома между первым и мансардным этажем.
Для моего случая с максимальной шириной пролета до 4,1 метраи шаге установки деревянных балок перекрытия от 0,4 до 0,6 метра, при помощи таблиц или калькуляторов расчета балок перекрытия (поиск в интернете предлагает большой выбор) за основу выбирается деревянная балка шириной 100 мм. и высотой 200 мм.Монолитное перекрытие над санузлом будет заливаться как одно целое с монолитным поясом между этажами и будет высотой 14 см. с применением 12 арматуры в два слоя в верху плиты и в низу с шагом 15 см. Аналогичное монолитное перекрытие будет создано над эркером и со всех сторон связано с монолитным поясом между первым и мансардным этажем.

Так на плане дома совмещено монолитное перекрытие и деревянное перекрытие(балочное перекрытие).
План дома. Кровля крыши. Мансардный этаж.
Если взять за основу план первого этажа и убрать все лишнее то получим готовый мансардный этаж. В моем случае мансардный этаж будет состоять из маленькой спальни, которая возможно станет кладовой, второй спальни побольше, где обязательно необходимо не забыть о канале каминной трубы и небольшого зала с эркерным балконом.

Вот так будет выглядеть на плане дома мой мансардный этаж.
Теперь перейдем к чертежу кровли крыши. Материалом кровли крыши будет моя любимая металлочерепица, материал ст
blogdom.ru
ЧЕРЧЕНИЕ. Школьный интернет-учебник – Проецирование 2-3
Комплексным чертежом называют изображения предмета, составленные из двух или более связанных между собой ортогональных проекций изображаемого геометрического образа (рис. 1).

Рис. 1. Наглядное изображение предмета
Фронтальную проекцию называют видом спереди, или главным видом. Главный вид, получаемый на фронтальной плоскости проекций, является исходным, он должен давать наиболее полное представление о форме и размерах предмета. Предмет располагают так, чтобы на чертеже большая часть его элементов изображалась как видимая. Корпусные детали (кронштейны, передние и задние бабки, корпуса кранов и вентилей, трубопроводов, насосов, редукторов) на главном изображении (виде) показывают в рабочем положении, т. е. в положении, которое деталь занимает при эксплуатации. Детали, находящиеся при работе в различных положениях, вычерчивают в положении, которое преобладает в процессе изготовления. Поэтому такие детали, как валы, оси, шпиндели, шкивы, штифты и др., имеющие цилиндрическую или коническую форму и обрабатываемые на токарных станках в горизонтальном положении, изображают с горизонтально расположенной осью. (Можно посмотреть здесь). Как было сказано на прошлом уроке, горизонтальная проекция (вид сверху) располагается под фронтальной, а профильная (вид слева) – справа от фронтальной и на одном уровне с ней. Нарушать это правило расположения проекций нельзя. Такое расположение проекций называют проекционной связью.

Рис.2. Комплексный чертеж
Проекционная связь показана на рис. 2 тонкими сплошными линиями, которые называются линиями связи. При проведении линий связи между горизонтальной и профильной проекциями удобно пользоваться вспомогательной прямой, которую проводят под углом 45° от осей в правой нижней четверти. Линии связи, идущие от вида сверху, доводят до вспомогательной прямой. Из точек пересечения с нею восставляют перпендикуляры для построения вида слева.
Так строят чертежи в прямоугольных проекциях. Используя размеры детали и перенося их с имеющихся видов на достраиваемый, можно построить чертеж детали любой сложности.
Построение чертежа
В учебной практике иногда приходится выполнять задания, связанные с увеличением или уменьшением количества изображений на чертеже, например строить третий вид по двум имеющимся.
Построение третьего вида предмета сводится к построению третьих видов его отдельных элементов (точек, линий, плоских фигур) и отдельных частей. Для этой цели, изучая чертеж, определяют форму, размеры и положение этих частей на предмете. Таким образом, вначале осуществляется чтение чертежа. После этого приступают к графическим построениям, вычерчивая последовательно один за другим те или иные элементы предмета.
На рисунке 3 показана последовательность построения вида слева по двум заданным: главному и сверху. Перенос размеров с вида сверху на достраиваемый вид осуществлен с помощью постоянной прямой чертежа.

Рис. 3
Иногда при построении отсутствующего на чертеже вида применение постоянной прямой не обязательно. Для переноса размеров с одного вида на другой можно воспользоваться циркулем или линейкой (см. рис. 3, размер, обозначен звездочкой).
В заключение нужно удалить линии построения и обвести чертеж.
Компоновка чертежа
Компоновка чертежа (или композиция чертежа) выражается в гармоничном сочетании отдельных элементов изображения в выбранном масштабе с заданным форматом бумаги. Компоновкой чертежа также называется размещение изображений, размеров и надписей на поле чертежа (т.е. внутри рамки).
Начинающие чертежники строят чертеж, как правило, без учета площади листа бумаги. В итоге чертеж либо не помещается в отведенном ему поле, либо занимает только его часть.
Поскольку мы воспринимаем изображение не само по себе, не изолированно, а вместе с листом, на котором оно расположено, то между величинами изображения и листа должна существовать определенная пропорциональная зависимость, или, как говорят художники, композиционное равновесие.
Простейший способ достижения равновесия в чертеже – это равномерное распределение проекций (но не за счет нарушения проекционной связи!). Из рисунка 4 легко понять суть этого требования.

Рис.4. Компоновка проекций на чертеже
Но здесь могут быть и неожиданности. На рисунке 5 проекция валика размещена строго посередине листа. Несмотря на это, изображение кажется сдвинутым вниз.

Рис.5. Деталь на чертеже кажется смещенной
Это объясняется особенностью восприятия изображений нашим глазом: горизонтальные линии нам представляются длиннее вертикальных, верхняя половина предмета – больше нижней. Поэтому изображение валика следовало бы расположить несколько выше середины листа. По той же причине верхние части некоторых типографических знаков делают меньше нижних, но мы их видим равными (рис. 6).
Рис.6. Компоновка типографических знаков
Поверните рисунок и вы убедитесь в этом (посмотрите здесь).
Это относится и к ряду букв и цифр чертежного шрифта. Взгляните на рисунок 7.
Рис.7. Компоновка круга в квадрате
Кажется, будто небольшой черный круг расположен в глубине квадрата, большой круг выдвинут на первый план и только третий круг лежит в плоскости квадрата. Этот пример поможет вам определить соотношение толщины и размеров линий, цифр, надписей и других элементов чертежа при его выполнении, т. е. выдержать равновесие между черным и белым.
На рисунке 8 легко увидеть, какая компоновка чертежа выполнена композиционно правильно.
Рис.8. Компоновка размерных линий на чертеже
Стрелки чертежей на рис. 8, а) и в) несоизмеримы с проекциями: первые – велики, вторые – слишком малы, цифры – также. Кроме того, на рис. 8, а) они «прижаты» к своим проекциям, на рис. 8, в), напротив, «оторваны» от них. Правильно исполнен чертеж на рис. 8, б). В нем зрительно все уравновешено и создаются благоприятные условия для глаза при его движении по изображению.
Законы композиции проявляются во всех видах искусств: в архитектуре, скульптуре, живописи, музыке, фотографии и т. п.
Количество изображений
Выбор числа изображений является важным этапом выполнения чертежей. Он заключается в нахождении положения детали на главном изображении и необходимого числа видов, которые позволят полно и точно отобразить внешнюю и внутреннюю форму, а также размеры предмета.
Количество видов должно быть наименьшим, но полностью выявляющим форму предмета.
Выбор положения детали в главном изображении должен давать наиболее полное представление о форме и размерах детали: на главном виде должна быть максимально представлена информация о форме.
Обычно деталь показывают в положении, которое она занимает при обработке. Поэтому ось деталей, получаемых точением (например, валы), располагают горизонтально. Это облегчает рабочему изготовление детали по чертежу, так как и на чертеже и на станке он видит ее в одинаковом положении.
Выбор положения детали на главном изображении в значительной степени определяет количество изображений на чертеже. Предмет стараются располагать так, чтобы большая часть его элементов на главном виде изображалась как видимая.
Форма детали, представленной на рисунке 9 выявляется одним видом при правильном выборе главного изображения (главного вида).
Рис. 9.
Для передачи формы детали (рис. 10) необходимы два вида. Одним, главным видом не возможно показать глубину пазов утолщенной части детали.
Рис. 10.
Форму детали, показанной на рисунке 11 выявляют тремя изображениями. Даже два вида детали не будет полно определять форму.
Рис. 11.
cherch-ikt.ucoz.ru
Как научиться читать чертежи металлоконструкций?

Любое производство, любое строительство металлических конструкций нереально без предварительной разработки технической документации – монтажных схем, чертежей металлоконструкций. Практически все, что создал человек – одежда, которую носим, автомобили, в которых ездим, уличные фонари, которые освещают дороги, дома, в которых живем, здания из металлических конструкций – все это разрабатывали по схемам и чертежам.
Для чего крошечный карман на джинсах?
Выживаем в мегаполисе: как быть здоровым круглый год?
Как кошка может разрушить вашу жизнь
Схемы и чертежи передают идеи проектировщиков точно также как текст – мысли писателей. Чертежи конструкций из металла нельзя по-разному читать, их должны знать, как читать и понимать, одинаково все люди, которые берут участие в изготовлении изделий по чертежам, ремонте оборудования, его эксплуатации. Разрабатывать и оформлять чертежи КМД нужно с учетом правил оформления чертежей по ГОСТ, с учетом строительных норм и правил (СНиП), по требованиям «Системы проектной документации для строительства» — СПДС, по требованиям «Единой системы конструкторской документации» – ЕСКД, а также с условными обозначениями.
Поэтому данный чертежи проектируются конструкторским бюром КБ. В проектной документации должна быть графическая часть рабочих проектов и пояснительная текстовая записка. Текстовая записка состоит из результатов расчетов, которые обосновывают принятые решения, технических и нормативных документов, которые используются во время подготовки проектной документации, ссылок на ГОСТЫ, а также описания принятых технических решений и их пояснения. Графическая часть отображает принятые технические решения и делается в виде подробных планов, установочных чертежей, больших монтажных, сборочных схем металлоконструкций, исполнительных схем и чертежей. Так, на каждый объект строительства разрабатывают рабочую документацию, которая состоит из спецификаций изделий и оборудования, рабочих чертежей узлов и из документов в текстовой форме.
Выживаем в мегаполисе: как быть здоровым круглый год?
О чем больше всего сожалеют люди в конце жизни
Какие черты делают женщину привлекательной
Как научиться читать чертежи
1. Начинать читать чертеж нужно с изучения основных методов, правил, видов нанесения на бумагу предметов всевозможного размера и формы на плоскости, а также стандартов и условных обозначений, которые должны быть на любом чертеже, когда его оформляешь. Следует обучиться технологии обработки соответствующих изделий.
2. Чтобы правильно читать чертежи, необходимо придерживаться такой последовательности:
- Изучите содержания главной надписи на чертежах. При помощи нее вы узнаете масштаб чертежа, материал, который используется для их изготовления, а также название деталей.
- Определите изображения, с помощью которых представили детали чертежей.
- Проанализируйте изображения чертежа. Представленные формы изделия или детали. Если сразу не сможете увидеть деталь, можете ее мысленно разделить на пару частей и постараться представить их геометрическую форму.
- Изучите размеры детали – представленные ее величины.
Ознакомления с чертежом поможет представить детали, изображенные на нем: по каким принципам расположены, как взаимодействуют и прочее. Внимательное чтение чертежей поможет не только рассмотреть на нем детали, позволяющие точно представить будущую форму изделия уже в готовом виде, но и узнать массу изделия, количество одинаковых деталей, название, а также рассчитать масштаб, учитывая все стандарты и требования.
3. После этого подробно ознакомьтесь со всеми размерами, изображенными на чертеже, дабы узнать допустимое отклонение от установленных размеров.
4. В конце, нужно установить тип чистоты поверхности каждого элемента, дабы в будущем на основании информации, полученной в процессе прочтения чертежа, представить каждый этап обработки и производства изделия на всех циклах, а также проанализировать, как эта деталь или изделие будет применено в конечном продукте или узле, по какому принципу будет работать, в каких условиях будет эксплуатироваться, и, какое предназначение будет исполнять.
Видео уроки
uchieto.ru
Как правильно научиться читать чертежи?

Что форма носа может сказать о вашей личности?
9 самых жутких пыток древнего мира
Как вести себя если вас окружают хамы
Если у вас случилась ситуация, что вам нужно быстро научиться правильно читать чертежи, то вам придется потратить на это некоторое время. Вы будете много читать литературы, часто ненужной, искать в Интернете разные учебники и так далее.
Если же вы хотите быстро этому обучиться, тогда вам нужен опытный инженер, которые непосредственно покажет, как с ними работать. Для некоторых будет достаточно ознакомится с ГОСТами, самоучителя «Черчения для чайников» и электронной версией составления чертежей. Но обладать хорошим пространственным воображением – это самое главное для правильного понимания чертежа, иначе никакой опыт и знания не дадут нужного результата.
Десять привычек, которые делают людей хронически несчастливыми
Как найти свою вторую половинку: советы для женщин и мужчин
Какие черты делают женщину привлекательной
Уметь читать чертежи нужно для таких профессий: бетонник, каменщик, сметчик, слесарь, иногда сварщик, монтажник и прочее. Чтобы правильно их читать, необходимо с ними работать непосредственно. Если вы не получили соответствующего образования по гражданскому или промышленному строительству, то вам нужно знать упрощения, условности, правила и стандарты, характерные именно для области, которая вас интересует (строительства дома или изготовление детали). УчиЭто предоставит вам общие правила:
- Если вы представили себе модель объекта или изделия, то сможете точно узнать ее точные размеры в чертеже.
- Проведите анализ чертежного рисунка. Именно представления формы детали или изделия помогает понять суть данных, которые были в него внесены. Но если не выходит воссоздать деталь целиком в вашем воображении, попробуйте разделить на части и представить их геометрическую форму.
- Ознакомьтесь с заглавной надписью на чертеже. Именно этот шаг позволит узнать, из чего изготовлена деталь, масштаб и название.
- Обозначения изображений, послужившие прообразом детали, представленной на чертеже.
Изучайте чертеж, это позволит узнать массу изделия, его размер и масштабы, количество деталей, которые нужны для его создания, также вы увидите изображенные там детали, а это позволит вам более точно представить конфигурацию изделия в готов виде, если учитывать все стандарты и необходимые требования.
Чтобы у вас в свободном доступе была информация по технологическим требованиям и стандартизации для вашей отрасли (изготовление конструкцій, деталей, строительство трубопровода, дома), необходимо иметь в личном пользовании учебник или справочник по черчению, который содержит эту информацию. Можете также распечатать информацию с Интернета, чтобы они были у вас под рукой.
Подведем итог: чтения чертежа необходимо начинать с ознакомления всех методов и правил нанесения на бумаге изделий различных размеров и форм. Запомнить стандарты и условные обозначения, которые нужны при правильном составлении чертежа.
Видео уроки
uchieto.ru
